Renovierungsbedürftige 2-Zimmer-Etagenwohnung mit Balkon und Garagenstellplatz
Diese Etagenwohnung im 1. Obergeschoss eines 8-Parteien-Mehrfamilienhauses aus dem Baujahr 1963 bietet Ihnen eine solide Basis für Eigennutzer oder Kapitalanleger. Auf ca. 55 m² Wohnfläche überzeugt die Wohnung mit einem funktionalen Grundriss und einer angenehmen Raumaufteilung: zwei Zimmer (sowie Küche, Diele, sowie ein Badezimmer). Die Wohnung befindet sich in ruhiger Lage von Düsseldorf-Garath und ist ab sofort verfügbar.
Ein überdachter Balkon sorgt für zusätzlichen Freiraum im Alltag; darüber hinaus steht ein Gemeinschaftsgarten zur Mitnutzung bereit - ideal zum Entspannen oder für eine kurze Auszeit im Grünen. Die Immobilie ist unterkellert, zur Wohnung gehört eine praktische Nutzfläche von ca. 5 m² im Keller, die zusätzlichen Stauraum bietet.
Der Zustand der Wohnung erfordert eine oberflächliche Renovierung, wodurch Sie die Möglichkeit haben, Gestaltung und Ausstattung nach Ihren eigenen Vorstellungen zu modernisieren. Das monatliche Hausgeld beträgt 190,00 €.
Der Garagenstellplatz liegt bei 20.000 € - ein attraktiver Mehrwert, insbesondere in städtischer Lage.
Merkmale
Bezug: ab sofort
Keller
Balkon
Tiefgarage
- Überdachter Balkon, neu gestrichen - 2-Zimmer (sowie Küche, Diele, Bad ) - Kleine Abstellkammer innerhalb der Wohnung mit Einbauschrank - Badezimmer mit Badewanne und Waschmaschinenanschluss - Erneuerte Kunststofffenster, Doppel-Isolierverglast - Gegensprechanlage - Separater, großzügiger Kellerraum von 11 m² - Gemeinschaftsgarten - Trockenraum im Dachgeschoss - Heizungsart: Fernwärme - Garagenstellplatz für 20.000 € - geringes Hausgeld von derzeit 190,00 €/mtl.
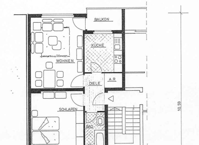
Grundrisse
Grundrisse
1 / 1
Realisiere Dein Projekt
Bausubstanz und Energie
Energieausweis
D
Baujahr1963
Zustand der Immobilierenovierungsbedürftig / sanierungsbedürftig
EnergieträgerFernwärme
Preisdetails
Kaufpreis
175000 €175.000 €
3.181,82 €/m²
Preis pro Stellplatz
20000 €20.000 €
Hausgeld
190 €190 €
Provision für Käufer
3,57 % des Kaufpreises inkl. 19 % ges. MwSt.
Weitere Preisinformationen
1 Tiefgaragenstellplatz, Kaufpreis: 20.000,00 EUR
Geschätzte Gesamtkosten
196.122 €1
Kaufpreis
175.000 €
Kaufnebenkosten
21.122 €
2
Notarkosten (1,5%)
2.625 €
Grunderwerbsteuer (6,5%)
11.375 €
Provision für Käufer (3,57%)
6.247 €
Grundbucheintrag (0,5%)
875 €
1Der angezeigte Wert ist eine automatisch berechnete Schätzung von immowelt.
2Bei den Angaben handelt es sich um ortsübliche Werte. Individuelle Kosten können abweichen.
Lage
Garath, Düsseldorf (40595)
Der Anbieter hat die genaue Adresse nicht freigegeben
Die Wohnung befindet sich in einer ruhigen und zugleich zentralen Wohnlage im Süden von Düsseldorf, im beliebten Stadtteil Garath. Sämtliche Einrichtungen des täglichen Bedarfs wie Supermärkte, Bäckereien, Apotheken und weitere Nahversorger sind in der direkten Umgebung bequem erreichbar.
Die Anbindung an den öffentlichen Nahverkehr ist hervorragend: Der S-Bahnhof Düsseldorf-Garath liegt nur wenige Gehminuten entfernt und ermöglicht eine schnelle Verbindung in die Düsseldorfer Innenstadt sowie in die umliegenden Stadtteile. Auch die überregionalen Verkehrswege sind gut erreichbar, wodurch sich der Standort ideal für Berufspendler und alle eignet, die eine ruhige Wohnatmosphäre mit urbaner Nähe verbinden möchten.
Weitere Informationen
Stichworte
Nutzfläche: 5,00 m², Anzahl der Schlafzimmer: 1, Anzahl der Badezimmer: 1, Anzahl Balkone: 1, 1 Etagen