

Dahler & Company Timmendorfer Strand
Herr Patrick Schröder
045 ···
Nr. anzeigenPreise & Kosten
Provision für Käufer
3 % inkl. gesetzlicher MwSt. vom Kaufpreis
Lage
Das Objekt befindet sich in einer der besten Lagen von Timmendorfer Strand. Das Ortszentrum mit der Flaniermeile sowie dem feinsandigem Ostseestrand befinden sich in unmittelbarer Nähe.
Die Lübecker Bucht um Timmendorfer Strand gelegen bietet Abwechslung und Erholung zugleich. Hier können Sie je nach Lust und Laune...
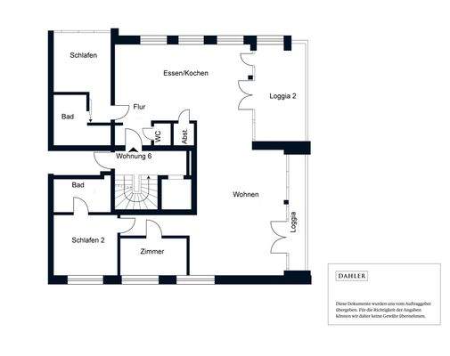
Die Wohnung
Wohnungslage
2. Geschoss
Wohnanlage
Energie & Heizung
Warum sehe ich diese Anzeige? – Du siehst diese Anzeige basierend auf Ihrer Navigation auf unserer Website und den Suchkriterien, die du verwendet hast.
Energieausweistyp
Verbrauchsausweis
Gebäudetyp
Wohngebäude
Baujahr laut Energieausweis
2017
Wesentliche Energieträger
GAS
Gültigkeit
bis 23.04.2034
Effizienzklasse
C
Endenergieverbrauch
77,30 kWh/(m²·a)
Weitere Energiedaten
Energieträger
Gas, Solar
Heizungsart
Zentralheizung
Details
Objektbeschreibung
Die helle und moderne Designwohnung wurde 2017 mit sehr hochwertigen Materialien erbaut und befindet sich in einer der beliebtesten Lagen von Timmendorfer Strand.
Das Herzstück der Wohnung ist der große, lichtdurchflutete Wohn-/Essbereich mit offener Küche der Marke Bulthaup und dem direkten Zugang zu dem großen...
Ausstattung
_Fahrstuhl bis in die Tiefgarage
_Fußbodenheizung in allen Räumen
_Eichenfußboden
_dreifachverglaste Holz/ Aluminiumfenster
_hochwertige Lamellen- Schiebeelemente
_ein großer Balkon mit Heizstrahlern
_ein weiterer, kleiner Balkon
_moderne Einbauküche mit Induktionsherd, Backofen auf Arbeitshöhe...
Preisinformation
3 Tiefgaragenstellplätze
Weitere Informationen
Stichworte
Tiefgarage vorhanden, Anzahl der Schlafzimmer: 3, Anzahl der Badezimmer: 2, Anzahl der separaten WCs: 1, Anzahl Balkone: 2
Anbieter der Immobilie

Online-ID: 2lw8w5p
Referenznummer: DC-TIM1115
Finde Angebote wie dieses
Weitere Immobilien
Hier geht es zu unserem Impressum, den Allgemeinen Geschäftsbedingungen, den Hinweisen zum Datenschutz und nutzungsbasierter Online-Werbung.