Version: 8.24.0Navigation überspringen
875.000 €
4 Zimmer  •  120 m²
Immowelt logo

Haus zum Kauf
875000 €
7.292 €/m²
4 Zimmer  •  120 m²

Haus 120m2 zum Kauf - Split-Dalmatia, Komiza

ZU VERKAUFEN, HAUS, KOMIZA, TOP-LAGE
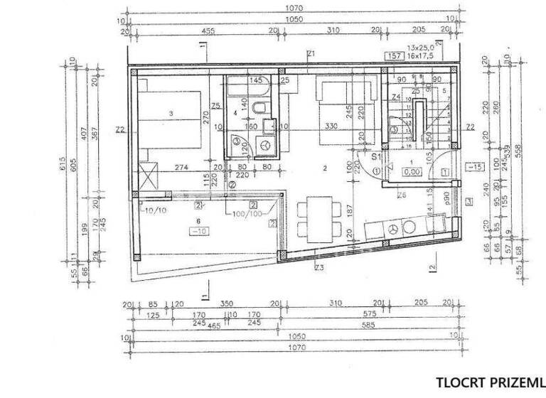
Wir bieten ein wunderschönes, modernes und luxuriöses Haus in Komiza an. Es besteht aus Erdgeschoss und zwei weiteren Etagen. Auf jeder Etage befindet sich eine Wohnung. Die Wohnung im Erdgeschoss hat eine Gesamtnettofläche von 41,40 m und besteht aus Eingangsbereich, Küche mit Esszimmer und Wohnzimmer, Schlafzimmer, Bad und Abstellraum. Die Wohnung verfügt außerdem über eine 8,3 m große Loggia. Im ersten und zweiten Obergeschoss befinden sich Wohnungen mit einer Nettofläche von 39,40 m. Die Wohnung im ersten Obergeschoss besteht aus Eingangsbereich, Küche mit Esszimmer und Wohnzimmer, Schlafzimmer und Bad. Die Wohnung verfügt außerdem über eine 8,3 m große Loggia. Die Wohnung im zweiten Obergeschoss besteht aus Eingangsbereich, Küche mit Esszimmer und Wohnzimmer, Schlafzimmer und Bad. Die Wohnung verfügt außerdem über eine 8,3 m große Terrasse. Ausgezeichnete Gelegenheit in bester Lage!
Komiza ist eine typische mediterrane Stadt mit engen Gassen, dicht gedrängten Häusern rund um den Hafen, zahlreichen Stränden und einem milden mediterranen Klima, das einen Aufenthalt in Komiza auch in den Wintermonaten angenehm macht. Entlang der gesamten Ostküste der Bucht von Komiza gibt es Kiesstrände mit Trinkwasserquellen Gusarica, Nova Posta, Kamenice und Velo zalo.

Merkmale

  • 1 Geschoss

Grundrisse

Grundrisse
1 / 3

Realisiere Dein Projekt

Bausubstanz und Energie

Der Anbieter hat keine Informationen zu Energieverbrauch oder Zustand der Immobilie bereit gestellt.
Immowelt logo

Preisdetails

Kaufpreis
875000 €
7.291,67 €/m²
Provision für Käufer
Bitte beachte, das Angebot kann bei Vertragsabschluss die Zahlung einer Provision beinhalten. Weitere Informationen erhältst Du vom Anbieter.

Lage

address-icon
Komiza
Der Anbieter hat die genaue Adresse nicht freigegeben

Weitere Informationen

Stichworte Anzahl der Schlafzimmer: 3, Anzahl der Badezimmer: 3, 1 Etagen

Weitere Services

Lust auf eine Besichtigung?
Eine Frage zur Immobilie?
Nachricht hinzufügen
Mit der Nutzung der oben angegebenen Telefonnummer oder durch Klicken auf „Kontaktieren“ akzeptierst Du die Allgemeinen Nutzungsbedingungen, denen Du jederzeit widersprechen kannst. Weitere Informationen zum Datenschutz

Über den Anbieter

Crozilla.com
Crozilla.comMaklerbüro
Nova cesta 60, 10000 ZAGREB
OperetaDein Kontakt
Online-ID: 2nkhv5g
Referenznummer: 19356575_0
Crozilla.com
Crozilla.com
Nachricht hinzufügen
Mit der Nutzung der oben angegebenen Telefonnummer oder durch Klicken auf „Kontaktieren“ akzeptierst Du die Allgemeinen Nutzungsbedingungen, denen Du jederzeit widersprechen kannst. Weitere Informationen zum Datenschutz
Wie zufrieden bist du mit dieser Seite (nicht mit der Immobilie selbst)?