Version: 8.25.1Navigation überspringen
Raiffeisen Immobilien Vermittlung GmbH
990.000 €
3 Zimmer  •  118 m²  •  4. Geschoss

Wohnung zum Kauf
990000 €
8.390 €/m²
3 Zimmer  •  118 m²  •  4. Geschoss

City, Sonne & Dachterrasse

Urbanes Wohnen im Dachgeschoß mit TerrasseFür Paare, Kleinfamilien oder Anleger!
Diese lichtdurchflutete Wohnung liegt im Dachgeschoß eines schönen Wiener Altbaus. Mit dem Lift erreicht man bequem die Wohnung, die auf zwei Ebenen aufgeteilt ist.
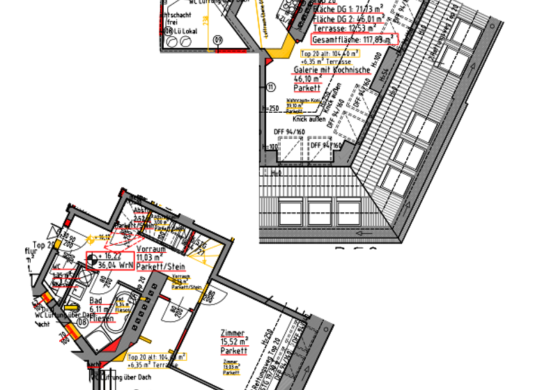
Ebene 1: Großzügiger Eingangsbereich, 2 Zimmer (35m²! und 15m²), großes Bad mit Fenster, Wanne, Dusche, separate Toilette, Abstellraum
Ebene 2: Wohnbereich mit offener Küche und Ausgang auf die hofseitige Terrasse (ca. 12,5m²)
Ausstattung:
  • Klimaanlage in allen Wohn- und Schlafbereichen
  • elektrische Außenbeschattung
  • Gasetagenheizung
  • Fußbodenheizung im Bad
  • Handtuchheizkörper
  • Notkamin
  • Naturstein und Massivparkettböden
  • Videosprechanlage
  • Holzzargen
  • Markensanitärausstattung
  • Komplettküche

Ein begehrter Bezirk, die Innenstadtnähe, eine ausgezeichnete Infrastruktur, lichtdurchflutete Räume und eine gemütliche Terrassen garantieren hohe Lebensqualität!

Merkmale

  • Dachgeschoss, 4. Geschoss
  • Terrasse

Grundrisse

Grundrisse
1 / 1

Realisiere Dein Projekt

Bausubstanz und Energie

Heizwärmebedarf (HWB)

D

Gesamtenergieeffizienz (fGEE)

  • Baujahr2012
MediumRectangleTop

Preisdetails

Kaufpreis
990000 €
8.389,83 €/m²
Provision für Käufer
3% des Kaufpreises plus 20% USt.

Lage

address-icon
Wien (1090)
Der Anbieter hat die genaue Adresse nicht freigegeben
Citynähe im beliebten 9. Bezirk
Der neunte Bezirk ist der Standort vieler Universitätsinstitute und ein sehr beliebter Wohnbezirk für Jung und Alt.
Schöne, trendige Geschäfte, gemütliche Cafés und abwechslungsreiche Restaurants prägen diese Gegend.
Kultur wie Volksoper, WUK, Museen sind vor der Tür.
Das beliebte und angesehene Lycée français de Vienne ist ebenso hier angesiedelt.
Der 1. Bezirk ist in Kürze bestens erreichbar:
  • 6 Minuten mit dem Fahrrad
  • 6 Minuten mit den Öffis
  • 19 Minuten zu Fuß

Alle Lagevorteile auf einem Blick:
  • Sehr gute öffentliche Verkehrsanbindung
(U6, Straßenbahn37,38,40,41, Bus)
  • Ausgezeichnete Anbindung an City & Universitätsviertel

  • Vielfältige Einkaufsmöglichkeiten & gastronomische Angebote

  • Verschiedene Bildungs- und Betreuungseinrichtungen fußläufig erreichbar

  • Kunst & Kultur

  • Parks für erholsame Auszeiten

Weitere Informationen

Stichworte Anzahl der Schlafzimmer: 2, Anzahl der Badezimmer: 1, Anzahl der separaten WCs: 1, Anzahl Terrassen: 1, Bundesland: Wien

Weitere Services

Lust auf eine Besichtigung?
Eine Frage zur Immobilie?
Nachricht hinzufügen
Mit der Nutzung der oben angegebenen Telefonnummer oder durch Klicken auf „Kontaktieren“ akzeptierst Du die Allgemeinen Nutzungsbedingungen, denen Du jederzeit widersprechen kannst. Weitere Informationen zum Datenschutz

Über den Anbieter

F.-W.-Raiffeisen-Platz 1/ 4.OG, 1020 WIEN, STADT
partner badge
Partnerschaft
Frau Beate BernleithnerDein Kontakt
Online-ID: 26G7SN8QXRPY
Referenznummer: 0001011397
Raiffeisen Immobilien Vermittlung GmbH
Raiffeisen Immobilien Vermittlung GmbH
Bewertung: 4,3 von 5 Sternen
Nachricht hinzufügen
Mit der Nutzung der oben angegebenen Telefonnummer oder durch Klicken auf „Kontaktieren“ akzeptierst Du die Allgemeinen Nutzungsbedingungen, denen Du jederzeit widersprechen kannst. Weitere Informationen zum Datenschutz
MediumRectangleTop
MediumRectangleBottom
MediumRectangleTop
Wie zufrieden bist du mit dieser Seite (nicht mit der Immobilie selbst)?