Mehrfamilienhaus zum Kauf325000 €1.083 €/m²300 m² • 635 m² Grundstück • frei ab sofort
325000 €
1.083 €/m²
300 m² • 635 m² Grundstück • frei ab sofort
Saniertes Wohn- u. Geschäftshaus mit fachwerklich historischer Substanz, Weinkeller, Festscheune, Sonnenterrasse und Garten
Merkmale
- 3 Geschosse
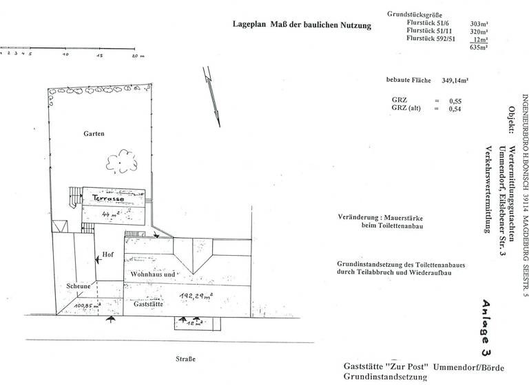
- 635 m² Grundstück
- Einbauküche, offene Küche
- Keller
- 2 Stellplätze: Garage
- Bad/WC getrennt, Gäste-WC
- Balkon
- Gartenanteil, Garten
Grundrisse
Grundrisse
1 / 8
Bausubstanz und Energie
Energieausweis
- Baujahr1855
- HeizungsartZentralheizung
- EnergieträgerGas, Solar
Preisdetails
Kaufpreis
325000 €
1.083,33 €/m²
Provision für Käufer
7,14 % vom Kaufpreis inkl. MwSt.
Geschätzte Gesamtkosten
359.352 €1
Kaufpreis
325.000 €
Kaufnebenkosten
34.352 €
2Notarkosten (1,5%)
4.875 €
Grunderwerbsteuer (5%)
16.250 €
Provision für Käufer (3,57%)
11.602 €
Grundbucheintrag (0,5%)
1.625 €
1Der angezeigte Wert ist eine automatisch berechnete Schätzung von immowelt.
2Bei den Angaben handelt es sich um ortsübliche Werte. Individuelle Kosten können abweichen.
Lage

Eilslebener Straße 3, Ummendorf (39365)
Weitere Informationen
Weitere Services
Lust auf eine Besichtigung?
Eine Frage zur Immobilie?
Über den Anbieter
Bernburger Str. 10, 39240 Calbe (Saale)
6 Jahre Partnerschaft

Frau Stephanie SabrowskiDein Kontakt
Weitere Unterlagen
Online-ID: 25Q2BZQ8G1W9
Wie zufrieden bist du mit dieser Seite (nicht mit der Immobilie selbst)?