Version: 8.24.0Navigation überspringen
399.000 €
16 Zimmer  •  322,5 m²  •  421 m² Grundstück
Immowelt logo

Mehrfamilienhaus zum Kauf
399000 €
1.237 €/m²
16 Zimmer  •  322,5 m²  •  421 m² Grundstück

DIETZ: REDUZIERT! 2 Häuser auf einem Grundstück mit 3-4 Wohneinheiten inklusive Ausbaupotenzial!

DIETZ: 2 Häuser auf einem Grundstück mit insgesamt 3 Wohneinheiten inklusive Ausbaupotenzial!

Auf dem 421qm großen Grundstück befinden sich Mitten in dem schönen Münsterer Ortsteil Altheim zwei Häuser einer denkmalgeschützten Gesamtanlage mit insgesamt drei Wohneinheiten.

Das Vorderhaus erstreckt sich über 3 Etagen und insgesamt ca. 175qm Wohnfläche. Zu diesem Gebäude gehört ein kleiner Garten welcher sich direkt vor dem Haus befindet. Die Grundrisse im Exposé zeigen die Raumaufteilung gemäß Bauunterlagen. Im Gebäude wurden kleinere Änderungen der Raumaufteilung vorgenommen. Das Vorderhaus ist zudem teilunterkellert. Hier befinden sich der Heizungsraum mit einer Gas-Zentralheizung auf Jan. 2023 sowie ein geräumiger Abstellraum.

Das ehemalige Stallgebäude (Hinterhaus) wurde gemäß Bauantrag von 1994 zu einem Wohnhaus mit zwei Wohnungen umgenutzt. Hier finden Sie im Erdgeschoss eine ca. 70 qm große 2 Zimmer Wohnung vor sowie eine Garage / Unterstand.
Im Dachgeschoss befindet sich eine ca. 64,7 qm große Maisonette Wohnung mit insgesamt vier Zimmern. Da die zwei Räume im Dachgeschoss nachträglich ausgebaut wurden, haben wir diese Flächen nicht zur Wohnfläche hinzugerechnet. Darüber hinaus wurde auf dieser Etage der Ausbau einer weiteren 1-2 Zimmer Wohnung begonnen. Hier wurde bereits ein Badezimmer installiert und die Elektrorohinstallationen im Wohn-/Schlafraum sowie Heizkörper vorgesehen. Über eine bereits vorhandene Wendeltreppe könnte noch ein weiterer Raum auf dem Spitzboden erschlossen und ausgebaut werden.

Zur Immobilie gehört außerdem ein geräumiger geschlossener Innenhof. Hier ist ausreichend Platz für bis zu 5 PKWs.


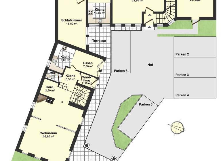
A U F T E I L U N G: VORDERHAUS (eine Wohneinheit, ca. 175qm Fläche):
ERDGESCHOSS:
* großes Schlafzimmer
* Kinderzimmer
* Badezimmer mit Wanne
* Durchgangszimmer
* Flur

OBERGESCHOSS:
* Wohnzimmer
* Schlafzimmer
* Küche
* Badezimmer
* Flur
* Balkon

DACHGESCHOSS:
* 2 Schlafzimmer
* WC

KELLERGESCHOSS:
* 2 Kellerräume

--------------------------------------------------------

HINTERHAUS (zwei Wohneinheiten):
ERDGESCHOSS:
* Wohn und Essbereich
* Küche
* Schlafzimmer
*Tageslichtbad mit Wanne und Waschmaschinenanschluss

OBERGESCHOSS links:
* Wohnzimmer
* Küche (Durchgangszimmer)
* Schlafzimmer
* Badezimmer mit Wanne
* innerhalb der Wohnung befindliche Treppe mit Zugang ins Dachgeschoss

DACHGESCHOSS: (nachträglich ausgebaut)
* 2 Zimmer

OBERGESCHOSS rechts:
* Badezimmer
* 1 Raum mit Wendeltreppe zum Spitzboden

Wir haben Ihr Interesse wecken können? Dann vereinbaren Sie jetzt Ihren persönlichen Besichtigungstermin! unter 06073 723570!

Merkmale

  • Bezug: 2 Wohnungen vermietet
  • vermietet
  • 421 m² Grundstück
  • Keller
  • Denkmalschutz-Afa
Gas-Zentralheizung (Jan. 2023) mit zentraler Warmwasseraufbereitung
Hinterhaus umfangreich modernisiert
Vorderhaus renovierungsbedürftig
Vorderhaus teilunterkellert
derzeitige monatliche Mieteinnahmen: 1375€ (Vorderhaus + Hinterhaus EG Wohnung | DG zurzeit nicht vermietet)
5 PKW-Stellplätze
Garten
Innenhof

Grundrisse

Grundrisse
1 / 5

Realisiere Dein Projekt

Bausubstanz und Energie

Der Anbieter hat keine Informationen zum Energieverbrauch bereit gestellt.
  • HeizungsartZentralheizung
  • EnergieträgerGas
Immowelt logo

Preisdetails

Kaufpreis
399000 €
1.237,36 €/m²
Provision für Käufer
3,0 % vom Kaufpreis inkl. MwSt. inkl. MwSt.
Geschätzte Gesamtkosten
442.890 €1
Kaufpreis
399.000 €
Notarkosten (1,5%)
5.985 €
Grunderwerbsteuer (6%)
23.940 €
Provision für Käufer (3%)
11.970 €
Grundbucheintrag (0,5%)
1.995 €
1Der angezeigte Wert ist eine automatisch berechnete Schätzung von immowelt.
2Bei den Angaben handelt es sich um ortsübliche Werte. Individuelle Kosten können abweichen.

Lage

address-icon
AltheimMünster (64839)
Der Anbieter hat die genaue Adresse nicht freigegeben
Zentrale Lage von Münster - Altheim

INFOS zu Münster:
Eine sehr gute Infrastruktur ist vorhanden. Es gibt sowohl Kindergärten, als auch Schulen. Ärzte, Einkaufsmöglichkeiten sind in vielfältiger Form gegeben.

Zur Gestaltung Ihrer Freizeit und zur Entspannung stehen das Hallenschwimmbad, das Freizeitgelände im Westen von Münster mit Pavillons, Liegewiesen, Spiel- und Grillplätzen sowie Wanderwegen, die Freizeitanlage beim Sportplatz Altheim sowie die teilweise bis an die Ortslagen heranreichenden Waldungen mit Rundwanderwegen zur Verfügung. Für die Kleinen wurde eine Vielzahl von Kinderspielplätzen und für die etwas Größeren je eine Skateboardanlage beim Festplatz in Münster sowie in der Freizeitanlage in Altheim errichtet. Für Jugendliche steht ein Jugendzentrum in der Kerngemeinde Münster zur Verfügung.

Ein Bahnhof mit sehr guten Anschlussmöglichkeiten nach Frankfurt, Darmstadt, Offenbach, Hanau und Aschaffenburg ist in wenigen Minuten erreichbar.

Weitere Informationen

Sonstiges Viele weitere Angebote, die teilweise nicht in diesem Portal geschaltet sind, finden SIE unter:

WWW.IMMOPROFI-DIETZ.DE

Sie möchten eine Immobilie verkaufen oder kaufen, vermieten oder mieten ?

Nützliche LINKS:

www.mietspiegel24.de
www.sie-möchten-verkaufen.de
www.sie-möchten-vermieten.de
www.aktuelle-maklerinfos.de
www.my-referenzen.de
www.dietz-referenzen.de
www.dietz-tv.de

Wir verfügen über eine mehr als 25 jährige Erfahrung in der Immobilienbranche, wir sind ein von der Dualen Hochschule Mannheim zertifizierter Ausbildungsbetrieb für den Studiengang: Betriebswirtschaft in der Immobilienwirtschaft.

Unser 15 köpfiges TEAM freut sich auf Ihren Anruf. Stichworte Nutzfläche: 53,48 m²

Weitere Services

Lust auf eine Besichtigung?
Eine Frage zur Immobilie?
Nachricht hinzufügen
Mit der Nutzung der oben angegebenen Telefonnummer oder durch Klicken auf „Kontaktieren“ akzeptierst Du die Allgemeinen Nutzungsbedingungen, denen Du jederzeit widersprechen kannst. Weitere Informationen zum Datenschutz

Über den Anbieter

Bettina Dietz Immobilien GbR
Amtsgasse 2, 64832 Babenhausen
partner badge
3 Jahre Partnerschaft
Online-ID: 2h9jt5w
Referenznummer: 7131
Bettina Dietz Immobilien GbR
Bettina Dietz Immobilien GbR
Bewertung: 4,1 von 5 Sternen
Nachricht hinzufügen
Mit der Nutzung der oben angegebenen Telefonnummer oder durch Klicken auf „Kontaktieren“ akzeptierst Du die Allgemeinen Nutzungsbedingungen, denen Du jederzeit widersprechen kannst. Weitere Informationen zum Datenschutz
Wie zufrieden bist du mit dieser Seite (nicht mit der Immobilie selbst)?