

Reihenendhaus zum Kauf - Erstbezug480000 €5.152 €/m²4 Zimmer • 93,2 m²
480000 €
5.152 €/m²
4 Zimmer • 93,2 m²
Modernes Reihen-Eckhaus mit Garten // Terrassen // Stellplätze - Wohnen in Gänserndorf
Merkmale
- 2 Stellplätze: 2 Außen-Stellplätze
- Balkon
- Terrasse
- Badezimmer: Badewanne, Bad mit Dusche, Bad mit Fenster
- Bodenbelag: Fliesen, Parkett
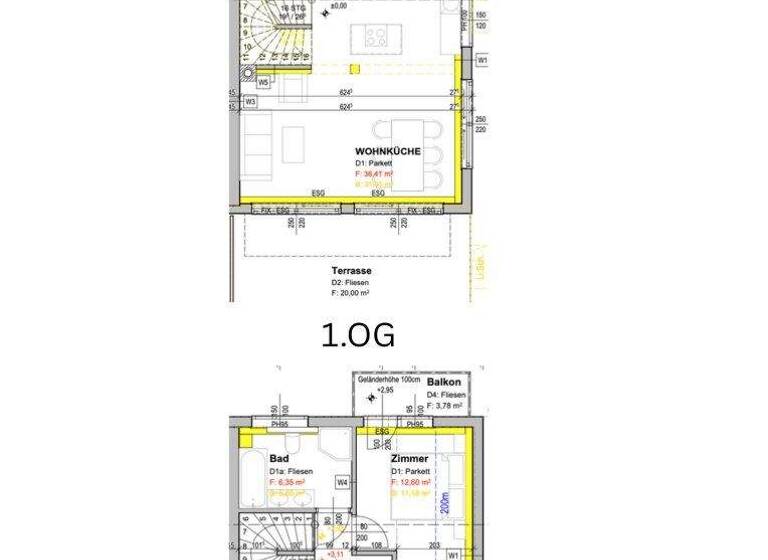
Grundrisse
Grundrisse
1 / 1
Virtueller Rundgang
3D tour

Realisiere Dein Projekt
Bausubstanz und Energie
Heizwärmebedarf (HWB)
B
Gesamtenergieeffizienz (fGEE)
A
- Baujahr2017
- Zustand der ImmobilieNeubau, Massivhaus, Erstbezug
- HeizungsartFuĂźbodenheizung
- EnergieträgerLuft-/Wasser-Wärmepumpe
Preisdetails
Kaufpreis
480000 €
5.151,87 €/m²
Provision für Käufer
3% des Kaufpreises zzgl. 20% USt.
Weitere Preisinformationen
2 Stellplätze
Lage

Gänserndorf (2230)
Weitere Informationen
Weitere Services
Lust auf eine Besichtigung?
Eine Frage zur Immobilie?
Ăśber den Anbieter
WOLF & SOHN Immobilien GmbHMaklerbĂĽro
Herbeckstrasse 57/4, 1180 WIEN
Partnerschaft
Herr Amir Oliver TarabDein Kontakt
Online-ID: 2mf445k
Referenznummer: OBGC20250918131400192d4825f4d4d
WOLF & SOHN Immobilien GmbH
Wie zufrieden bist du mit dieser Seite (nicht mit der Immobilie selbst)?

