
Andreas Vogt - Bauplanung -Beratung - Verkauf - Immobilien
Herr Andreas Vogt
+49 ···
Nr. anzeigenPreise & Kosten
Provision für Käufer
3570 € auf das Grundstück
Lage
Es handelt sich um ein sonniges, schönes Grundstück im Ortsteil Freihalden.
Kanal, Wasser, Strom und das Leerrohrt für Telekom liegen auf dem Grundstück.
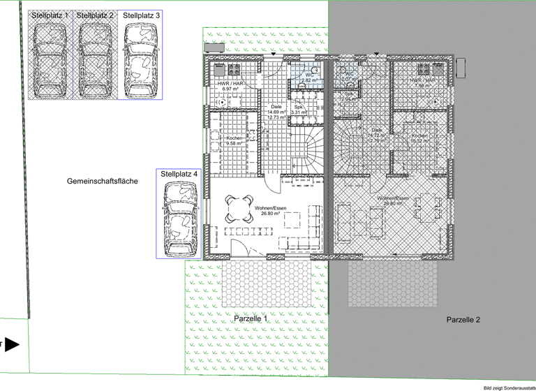
Zum Grundstück gehört die eingezeichnete Parzelle 1, sowie 50 % Anteil an der Gemeinschaftsfläche, und 25 % Anteil an der Zufahrt. Die Stellplätze 3 und 4...
Das Haus
Kategorie
Doppelhaushälfte
Baujahr
2026
Bezug
2026
Details
Objektbeschreibung
Bei diesem Angebot handelt es sich um eine Doppelhaushälfte mit Putzfassade im EG und Blockwandverschalung im OG. Das Haus istmit folgender Ausstattung:
- Riegelwandaufbau mit Putzfassade im EG
- Riegelwandaufbau mit vorgesetzten Blockbohlen im OG
- Innentreppe Eiche
- Holzhaustüre
- Kunststoff-/Alu Fenster mit...
Weitere Informationen
Tiroler Holzhaus
Tradition in Perfektion. Wir setzten bewusst auf hochwertiges Handwerk. Jedes Tiroler Holzhaus wird ausschließlich nach den Bedürfnissen unserer Kunden gefertigt. Die hohe Ausführungsqualität jedes Tiroler Holzhauses garantiert ein wertbeständiges Objekt das auch noch den nachfolgenden Generationen viel...
Anbieter der Immobilie
Andreas Vogt - Bauplanung -Beratung - Verkauf - Immobilien
Bgm.-Bals-Str. 5, 86492 Egling a.d.Paar
Online-ID: 2mkyj5h
Finde Angebote wie dieses
Hier geht es zu unserem Impressum, den Allgemeinen Geschäftsbedingungen, den Hinweisen zum Datenschutz und nutzungsbasierter Online-Werbung.