Version: 8.25.1Navigation überspringen
324.500 €
3 Zimmer  •  130 m²  •  720 m² Grundstück
Immowelt logo

Einfamilienhaus zum Kauf • provisionsfrei
324500 €
2.496 €/m²
3 Zimmer  •  130 m²  •  720 m² Grundstück

Maximaler Komfort, minimaler Aufwand.

BUILD YOUR WAY. OWN YOUR SPACE.

Dein Traum vom Eigenheim beginnt hier. White&Black bringt dich dorthin - einfach, erschwinglich, zukunftssicher.

THE RIGHT MATCH.
Finanzierung, Grundstück, Haus - wir bringen alles zusammen.

FEELS LIKE HOME.
Dein Stil, dein Design, dein Zuhause.

MORE HOME. LESS WORRY.
Klare Prozesse, smarte Lösungen, stressfreier Hausbau.

SIMPLE IST THE NEW LUXURY.
Durchdachte Architektur, hochwertige Ausstattung, flexibles Design.

Es gibt nie den perfekten Moment - aber den richtigen Schritt. Warum warten?
START YOUR HOME JOURNEY TODAY.

Merkmale

  • 720 m² Grundstück
  • Gäste-WC
THINK FAST-VOLLENDET PLUS - Bereit für dein Finish.

- Technik, Heizung & Sanitärinstallation sind drin - du kümmerst dich nur um den Feinschliff
- Das Plus mit hochwertigen Sanitärobjekten und Fliesen
- Streichen, Böden verlegen, Türen setzen - du machst, was du willst
- Kein Stress mit Rohbau oder Technik - Fokus nur noch auf den Feinschliff
- Smartes Sparpotenzial - fertig gebaut, individuell finalisiert
- Ideal für Macher mit Anspruch - hochwertige Basis für deinen Stil

Für alle, die mitgestalten wollen - ohne auf Komfort zu verzichten.

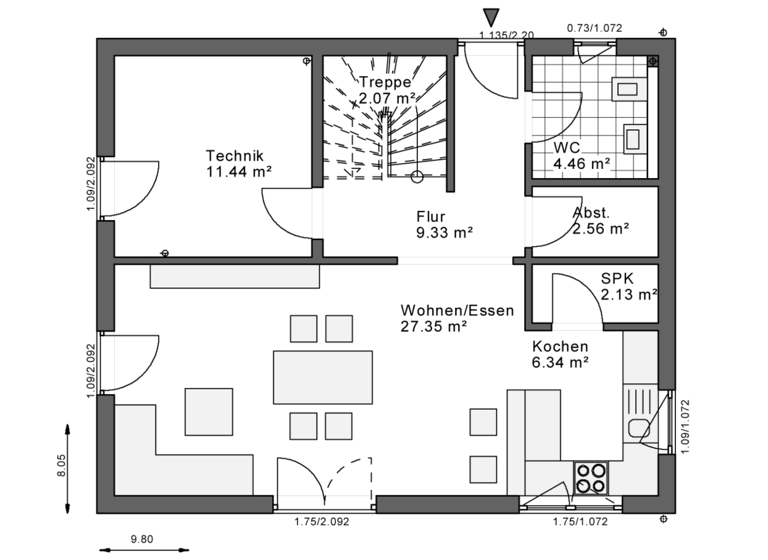
Grundrisse

Grundrisse
1 / 2

Realisiere Dein Projekt

Bausubstanz und Energie

Möchtest du Details zum Energieverbrauch?info_energy_calculation-icon
  • Zustand der ImmobilieNeubau, Projektiert
  • HeizungsartFußbodenheizung
Immowelt logo

Preisdetails

Kaufpreis
324500 €
2.496,15 €/m²
Provision für Käufer
provisionsfrei
Geschätzte Gesamtkosten
347.216 €1
Kaufpreis
324.500 €
Notarkosten (1,5%)
4.868 €
Grunderwerbsteuer (5%)
16.225 €
Grundbucheintrag (0,5%)
1.623 €
1Der angezeigte Wert ist eine automatisch berechnete Schätzung von immowelt.
2Bei den Angaben handelt es sich um ortsübliche Werte. Individuelle Kosten können abweichen.

Lage

address-icon
Uslar (37170)
Der Anbieter hat die genaue Adresse nicht freigegeben
Uslar bietet ideale Voraussetzungen, um den Traum vom Eigenheim zu verwirklichen - ruhig, grün und dennoch bestens angebunden. Die Stadt überzeugt mit einer hervorragenden Infrastruktur: Schulen, Kindergärten, Ärzte und vielfältige Einkaufsmöglichkeiten sind direkt vor Ort. Dank der attraktiven Lage zwischen Göttingen und Northeim entwickelt sich Uslar stetig weiter, was langfristig stabile und steigende Immobilienwerte erwarten lässt. Wer hier baut, investiert in Lebensqualität, Familienfreundlichkeit und eine zukunftssichere Wohnlage im Herzen Südniedersachsens.

Weitere Informationen

Sonstiges Das Haus ist projektiert inkl. Grundstück. Das Grundstück wird in Kommission angeboten bzw. direkt von Dritten verkauft. Daher kann der genannte Preis aufgrund aktueller Marktsituationen schwanken.
Die Bauabwicklung kann kurzfristig nach Grundstückserwerb begonnen werden. Bilder zeigen möglicherweise Sonderausstattungen, die auf Wunsch gegen Aufspreis zusätzlich angeboten werden können.

Erhalte in deinem persönlichen Beratungsgespräch kostenlos alle wichtigen Informationen zu diesem Projekt, insbesondere: Lage und Bebauungsmöglichkeiten des Baugrundstücks, Baukosten-Kalkulation, Finanzierungs- u. Förderungsmöglichkeiten sowie detaillierte Architektur- uund Grundrissplanung.

Wir freuen uns darauf, dich beraten zu dürfen! Stichworte Anzahl der Schlafzimmer: 3, Anzahl der Badezimmer: 1, Anzahl der separaten WCs: 1

Weitere Services

Lust auf eine Besichtigung?
Eine Frage zur Immobilie?
Nachricht hinzufügen
Mit der Nutzung der oben angegebenen Telefonnummer oder durch Klicken auf „Kontaktieren“ akzeptierst Du die Allgemeinen Nutzungsbedingungen, denen Du jederzeit widersprechen kannst. Weitere Informationen zum Datenschutz

Über den Anbieter

Leipziger Straße 7, 34359 Veckerhagen
partner badge
Partnerschaft
Uwe WilhelmyDein Kontakt
Keine Telefonnummer hinterlegt
Keine Telefonnummer hinterlegt
Online-ID: 265EB5FCMMFN
Referenznummer: WB-33343
Danhaus Vertriebsbüro Kassel - Uwe Wilhelmy -  Handelsvertretung für die Danhaus GmbH
Danhaus Vertriebsbüro Kassel - Uwe Wilhelmy - Handelsvertretung für die Danhaus GmbH
Nachricht hinzufügen
Mit der Nutzung der oben angegebenen Telefonnummer oder durch Klicken auf „Kontaktieren“ akzeptierst Du die Allgemeinen Nutzungsbedingungen, denen Du jederzeit widersprechen kannst. Weitere Informationen zum Datenschutz
Wie zufrieden bist du mit dieser Seite (nicht mit der Immobilie selbst)?