
Florian Mayr Immobilien e.U.
Herr Florian Mayr
004 ···
Nr. anzeigenPreise & Kosten
Provision für Käufer
3 % zzgl. 20% USt. inkl. MwSt.
Die Wohnung
Wohnanlage
Energie & Heizung
Warum sehe ich diese Anzeige? – Du siehst diese Anzeige basierend auf Ihrer Navigation auf unserer Website und den Suchkriterien, die du verwendet hast.
Heizwärmebedarf (HWB)
59,00 kWh/(m²·a)
Gesamtenergieeffizienz (fGEE)
1,04
Details
Objektbeschreibung
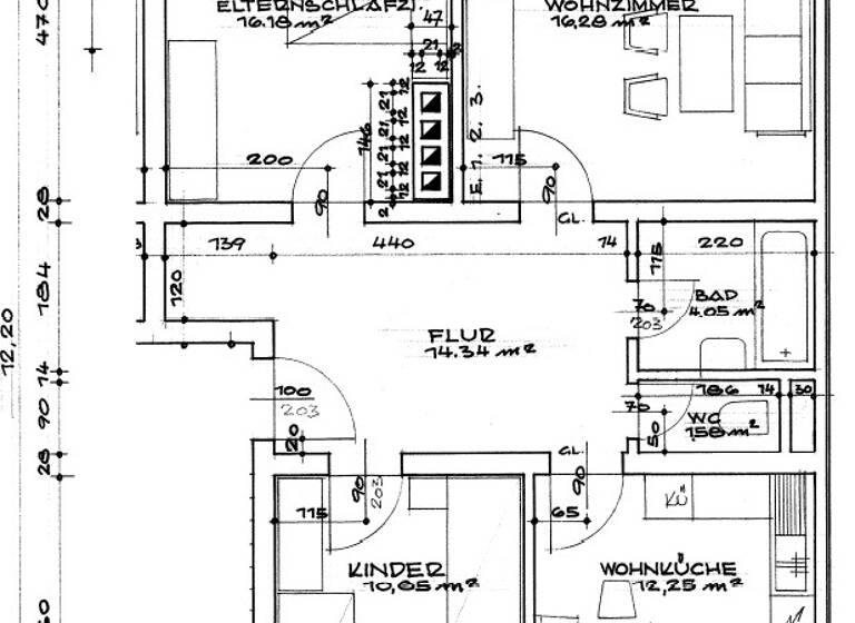
In einer angenehm ruhigen Wohnlage von Feldkirch-Altenstadt erwartet Sie diese charmante 3 1/2 Zimmer-Wohnung mit ca. 75?m² Wohnfläche im 1. Obergeschoss eines gepflegten Mehrparteienhauses.
Dank der durchdachten Raumaufteilung und der sonnigen Süd-Ost-Ausrichtung genießen Sie hier helle, freundliche Wohnräume und ein...
Weitere Informationen
Sonstiges
Gebührenbefreiung beim Immobilienkauf (ab 1. April 2024)
Beim Kauf von Wohnimmobilien bis € 500.000,- entfällt vorübergehend die Grundbuch- und Pfandrechtsgebühr.
Voraussetzungen:
Kaufpreis: max. € 500.000,- (bei mehr nur anteilige Befreiung; ab € 2 Mio. keine Befreiung)
Antragsfrist: 1...
Anbieter der Immobilie
Online-ID: 2labu59
Referenznummer: MAYRIMMO-261
Finde Angebote wie dieses
Günstige Immobilienfinanzierung einfach online berechnen
Persönliches Angebot berechnenWarum sehe ich diese Werbung? – Du siehst diese Werbung basierend auf Deiner Navigation auf unserer Website und der von Dir verwendeten Suchkriterien.
Diese Werbung wird bezahlt von durchblicker
Werbung melden
Hier geht es zu unserem Impressum, den Allgemeinen Geschäftsbedingungen, den Hinweisen zum Datenschutz und nutzungsbasierter Online-Werbung.