Version: 8.22.5Navigation überspringen
Mietkosten auf Anfrage
Immowelt logo

Ladenfläche zur Miete

TOP-Lage / Geschäftslokal mit Großraum-Büro sowie ca. 1 Dutzend Garagen-Plätzen

Obj. Nr. 1892

360° Besichtigung *HIER KLICKEN* [https://ths.li/WLE4Lo]

Mitten in der Innenstadt und gleichzeitig an einer beliebten und entsprechend frequentierten Durchzugsstraße, welche direkt zum Hauptbahnhof führt, befindet sich dieses moderne Eck-Geschäftslokal mit barrierefreiem Zugang im Erdgeschoss und zusätzlichen Büroflächen im Obergeschoss.

Das Gewerbeobjekt verfügt beim Eingangsbereich über ein überdachtes Portal sowie eine angrenzende Bushaltestelle, welche eine direkte Erreichbarkeit über öffentliche Verkehrsmittel möglich macht und somit beste infrastrukturelle Gegebenheiten schafft.

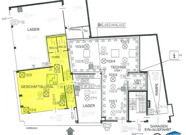
Bisher wurden die Räumlichkeiten seitens eines großen Konzerns zur Gänze genutzt und sind nunmehr ein Großteil dieser Flächen (siehe Planskizzen) laut individueller Vereinbarung wieder verfügbar.

An möglicher Gesamtnutzfläche, auf zwei Etagen verteilt, stehen bis zu maximal ca. 300 m², davon im Erdgeschoss ca. 70-80 m² sowie im Obergeschoss ca. 230 m², zur Verfügung.

Zusätzlich besteht die Option bis zu ca. 12-14 PKW-Abstellplätze in der bestehenden Tiefgarage desselben Gebäudes anzumieten.

 

mtl. Miete (Erd- und Obergeschoss mit insgesamt  ca. 300 m²):

_Konditionen sowie eine allfällige Teilanmietung gerne auf Anfrage!_

 

Parkplätze: auf Anfrage sowie je nach Verfügbarkeit (ca. mehr als 1 Dutzend verfügbar)

 

Kaution: auf Anfrage

Vergebührung: je nach Bemessungsgrundlage & Befristung

Mietvertragserrichtung: je nach Tarif des jeweiligen Vertragserrichters

Vermittlungsprovision: lt. § 12 Abs. 2 gemäß Immobilienmaklerverordnung

Hinweis gemäß Energieausweisvorlagegesetz: Ein Energieausweis wurde vom Eigentümer bzw. Verkäufer, nach unserer Aufklärung über die generell geltende Vorlagepflicht, sowie Aufforderung zu seiner Erstellung noch nicht vorgelegt. Daher gilt zumindest eine dem Alter und der Art des Gebäudes entsprechende Gesamtenergieeffizienz als vereinbart. Wir übernehmen keinerlei Gewähr oder Haftung für die tatsächliche Energieeffizienz der angebotenen Immobilie.

Der Vermittler ist als Doppelmakler tätig.

Infrastruktur / Entfernungen

Gesundheit
Arzt <500m
Apotheke <500m
Klinik <1.000m
Krankenhaus <1.000m

Kinder & Schulen
Schule <500m
Kindergarten <1.000m
Höhere Schule <500m
Universität <3.500m

Nahversorgung
Supermarkt <500m
Bäckerei <500m
Einkaufszentrum <2.000m

Sonstige
Bank <500m
Geldautomat <500m
Post <1.000m
Polizei <500m

Verkehr
Bus <500m
Autobahnanschluss <2.500m
Bahnhof <1.000m
Flughafen <3.000m

Angaben Entfernung Luftlinie / Quelle: OpenStreetMap

Merkmale

  • Bezug: ab sofort / nach Vereinbarung
  • Teeküche
  • 12 Stellplätze: 12 Außen-Stellplätze
  • teilweise möbliert
  • Raumaufteilung flexibel
  • voll klimatisiert
  • Bodenbelag: Fliesen, Teppich

Grundrisse

Grundrisse
1 / 3

Realisiere Dein Projekt

Bausubstanz und Energie

Der Anbieter hat keine Informationen zu Energieverbrauch oder Zustand der Immobilie bereit gestellt.
Immowelt logo

Mietkosten

Miete auf Anfrage
Provision für Mieter
lt. § 12 Abs. 2 gemäß Immobilienmaklerverordnung
Kaution
3 Bruttomonatsmieten
Weitere Preisinformationen

Mietvertragserrichtungskosten: je nach Tarif / auf Anfrage
Alle Preise sind zzgl. MWST., 12 Stellplätze

Lage

address-icon
Wiener Neustadt (2700)

Weitere Informationen

Stichworte Stellplatz vorhanden, Nutzfläche: 300,00 m², Anzahl der separaten WCs: 5, Bundesland: Niederösterreich, 2 Etagen

Weitere Services

Lust auf eine Besichtigung?
Eine Frage zur Immobilie?
Nachricht hinzufügen
Mit der Nutzung der oben angegebenen Telefonnummer oder durch Klicken auf „Kontaktieren“ akzeptierst Du die Allgemeinen Nutzungsbedingungen, denen Du jederzeit widersprechen kannst. Weitere Informationen zum Datenschutz

Über den Anbieter

Schottleitner GesmbH
Bahngasse 14, 2700 WIENER NEUSTADT
partner badge
6 Jahre Partnerschaft
Online-ID: 2ku3w57
Referenznummer: OBGC20201207110446342a3ca87fd0e
Schottleitner GesmbH
Schottleitner GesmbH
Nachricht hinzufügen
Mit der Nutzung der oben angegebenen Telefonnummer oder durch Klicken auf „Kontaktieren“ akzeptierst Du die Allgemeinen Nutzungsbedingungen, denen Du jederzeit widersprechen kannst. Weitere Informationen zum Datenschutz
Wie zufrieden bist du mit dieser Seite (nicht mit der Immobilie selbst)?