




Doppelhaushälfte zum Kauf450000 €3.846 €/m²5 Zimmer • 117 m² • 459 m² Grundstück
450000 €
3.846 €/m²
5 Zimmer • 117 m² • 459 m² Grundstück
Naturverbunden wohnen: Familienfreundliches Anwesen im ruhigen Irenental
Merkmale
- Bezug: n.V.
- 459 m² Grundstück
- Einbauküche
- Garage
- Balkon
- Terrasse
- Badezimmer: Badewanne, Bad mit Dusche, Bad mit Fenster
- Bodenbelag: Fliesen, Parkett
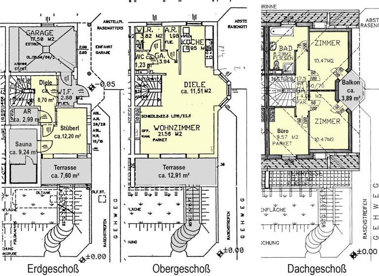
Grundrisse
Grundrisse
1 / 1
Realisiere Dein Projekt
Bausubstanz und Energie
Heizwärmebedarf (HWB)
D
Gesamtenergieeffizienz (fGEE)
F
- Baujahr1989
- Zustand der ImmobilieMassivhaus
- EnergieträgerElektro, Holz
Preisdetails
Kaufpreis
450000 €
3.846,15 €/m²
Provision für Käufer
3% des Kaufpreises zzgl. 20% USt.
Weitere Preisinformationen
1 Garagenstellplatz
Lage

Irenental (3011)
Der Anbieter hat die genaue Adresse nicht freigegeben
Weitere Informationen
Weitere Services
Lust auf eine Besichtigung?
Eine Frage zur Immobilie?
Über den Anbieter
Albert-Schweitzer-Gasse 6, 1140 WIEN
Partnerschaft
Herr Maximilian CyprisDein Kontakt
Keine Telefonnummer hinterlegt
Keine Telefonnummer hinterlegt
Online-ID: 25PL98STE7UN
Referenznummer: OBGC2025050515083645951989c06f9
Wie zufrieden bist du mit dieser Seite (nicht mit der Immobilie selbst)?




