

Rustler Immobilientreuhand GmbH
Frau Ulrike Rösch
+43 ···
Nr. anzeigenPreise & Kosten
Provision für Käufer
Bitte beachte, das Angebot kann bei Vertragsabschluss die Zahlung einer Provision beinhalten. Weitere Informationen erhältst Du vom Anbieter.
Die Wohnung
Wohnungslage
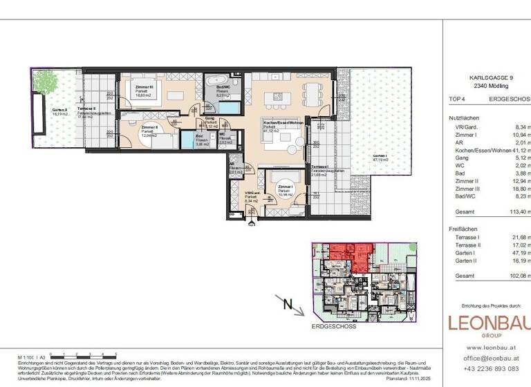
Erdgeschoss
Wohnanlage
Energie & Heizung
Warum sehe ich diese Anzeige? – Du siehst diese Anzeige basierend auf Ihrer Navigation auf unserer Website und den Suchkriterien, die du verwendet hast.
Weitere Energiedaten
Energieträger
Fernwärme
Heizungsart
Fußbodenheizung
Details
Objektbeschreibung
Leon Bau steht seit 2006 für höchsten Komfort, was sich auch in diesem Projekt erneut widerspiegelt. Das Neubauprojekt „Karl9 steht für modernes Wohnen auf höchstem Niveau. Die Architektur mit klaren Linien und offen gestalteten Grundrissen schafft ein einzigartiges Wohngefühl. Große Fensterflächen sorgen für...
Weitere Informationen
Stichworte
Anzahl der Badezimmer: 2, Anzahl der separaten WCs: 2, Anzahl Terrassen: 2, Balkon-Terrassen-Fläche: 38,70 m², Gartenfläche: 63,38 m², Wohnungsnr.: 4
Dokumente
Anbieter der Immobilie

Online-ID: 2h6y95x
Referenznummer: 141/82015
Finde Angebote wie dieses
Günstige Immobilienfinanzierung einfach online berechnen
Persönliches Angebot berechnenWarum sehe ich diese Werbung? – Du siehst diese Werbung basierend auf Deiner Navigation auf unserer Website und der von Dir verwendeten Suchkriterien.
Diese Werbung wird bezahlt von durchblicker
Werbung melden
Hier geht es zu unserem Impressum, den Allgemeinen Geschäftsbedingungen, den Hinweisen zum Datenschutz und nutzungsbasierter Online-Werbung.