Version: 8.26.0Navigation überspringen
1.633.000 €
3 Zimmer  •  130,3 m²  •  6. Geschoss
Immowelt logo

Wohnung zum Kauf - Erstbezug
1633000 €
12.535 €/m²
3 Zimmer  •  130,3 m²  •  6. Geschoss

VERKAUFSSTART - ATEMBERAUBENDE DACHGESCHOSSWOHNUNG MIT DREI TERRASSEN UND TRAUMHAFTEN FERNBLICK IN TOPLAGE

EXKLUSIVES WOHNEN MIT WEITBLICK UND MEHRWERT

Am Rande von Dornbach, dem exklusiven und charmanten Stadtteil am westlichen Stadtrand von Wien, steht ein einzigartiges Neubauprojekt kurz vor der Fertigstellung. Genießen Sie eine urbane Oase mit perfekter Infrastruktur und Verkehrsanbindung und die Nähe zu den schönsten Grünoasen Wiens mit all seinen Freizeitmöglichkeiten. Die "SANDLEITEN - Signature Homes" liegen in unmittelbarer Nähe zum wunderschönen Kongresspark und verbinden energieeffiziente Bauweise, modernes Design, exklusive Ausstattung und durchdachte Raumkonzepte mit höchster Wohnqualität zu einem harmonischen Gesamtbild.

 

WOHNVIELFALT MIT FREIRAUM FÜR JEDES LEBENSKONZEPT

Insgesamt entstehen 29 hochwertige Eigentumswohnungen mit großzügigen Freiflächen von bis zu 80 m², sowie ein kleines Geschäftslokal. Die den oberen Geschoße begeistern mit einem beeindrucken Fernblick. 

Die Bandbreite der Wohnungen reicht von kompakten 2-Zimmerr-Einheiten ab ca. 45 m² bis hin zu großzügigen 5-Zimmer-Familienwohnungen mit bis zu 130 m² Wohnfläche - ein durchdachtes Angebot für Singles, Paare und Familien gleichermaßen.

Jeder Wohnung ist ein eigener Einlagerungsraum zugeordnet. Für zusätzlichen Komfort stehen den Bewohnern ein Fahrradraum, ein Kinderwagenabstellraum sowie ein Kleinkinderspielplatz zur gemeinschaftlichen Nutzung zur Verfügung.

Die Kaufpreise beginnen bei EUR 349.000 für eine 2-Zimmer-Wohnung und reichen bis EUR 1.633.000 für das exklusive Dachgeschoss-Penthouse.

 

13 Tiefgaragenstellplätze im Haus - mit E-Ladevorbereitung 

Bei Bedarf kann ein Pkw-Stellplatz in der hauseigenen Tiefgarage zum Kaufpreis von EUR 45.000 erworben werden.

Insgesamt stehen 13 Stellplätze zur Verfügung. Sämtliche Stellplätze sind bereits für die Installation einer E-Ladestation vorbereitet.

 

ENERGIEEFFIZIENTE BAUWEISE & HOCHWERTIGE AUSSTATTUNG - DIE FAKTEN ÜBERZEUGEN

* Tiefgarage mit modernen E-Ladestationen für nachhaltige Mobilität
* Fußbodenheizung und Warmwasseraufbereitung mit energieeffizienter Luft-Wasser-Wärmepumpe.
* Photovoltaikanlage, die den allgemeinen Stromverbrauch umweltfreundlich deckt
* Vorbereitung für Klimaanlage, die selbst an heißen Tagen ein angenehmes Raumklima schafft
* Großzügige und bodentiefe Fensterfronten für lichtdurchflutete und einzigartige Räume
* 3-fach verglaste Wärmeschutzfenster mit Aludeckschale in bronze- maximale Energieeffizienz und langlebige Qualität
* Elektrische, außenliegende Raffstores in bronze und solargesteuerte Außenbeschattung bei Dachflächenfenstern
* Sicherheitstüren der Klasse WK III - reduziert Risiko und Versicherungskosten
* Videotürsprechanlage mit App-Steuerung
* exklusive Innentüren - flächenbündig mit Holzzargen - Klimaklasse A, und einer Höhe von 2,20 m 
* hochwertiger Mehrschicht Markenparkett "Landhausdiele" in Eiche 
* hochwertige und stilvolle Sanitärausstattung, die sich deutlich vom Standard abhebt
* WC-System von Fa. Tece - d.h. vorbereitet für WC-Dusche als Alternative zu Bidet uvm.
* Terrassengeländer aus Echtglas mit Edelstahlprofilen
* Innenwände mit doppelten Gipskartonplatten für bessere Geräuschdämmung und Stabilität
* Video-Gegensprechanlage

 

ALLES AUS EINER HAND - FÜR MEHR QUALITÄT, FLEXIBILITÄT UND SICHERHEIT

Dem Bauträger ist es ein Anliegen, sich deutlich von allen anderen Anbietern zu unterscheiden und Ihnen das Beste zu bieten. Hier vereinen sich die höchsten Ansprüche an Qualität, Design und Funktionalität mit nachhaltiger und energieeffizienter Bauweise. Die Referenzprojekte sprechen für sich.

Durch die Integration der Bauleistung in das eigene Unternehmen bestehen ein hohes Eigeninteresse an einer mängelfreien und termingerechten Umsetzung und viele weitere Vorteile für die Kunden:

* Mehrwert durch höhere Ausstattungsqualität zu konkurrenzfähigen Preisen
* Qualitätssicherung durch kontinuierlicher Bauüberwachung
* Mehr Klarheit bei Verantwortlichkeit und Haftung
* Mehr Flexibilität und einen Ansprechpartner bei allfälligen Sonderwünschen (nur noch kurze Zeit möglich!)
* Sichtbare Expertise - Referenzobjekte des Bauträgers ermöglichen auch die Prüfung der Qualität der tatsächlichen Bauausführung bei früheren Projekten

 

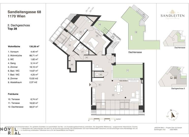
ATEMBERAUBENDE, RUHIGE 3-ZIMMER DACHGESCHOSSWOHNUNG MIT DREI TERRASSEN UND TRAUMHAFTEN FERNBLICK

TOP 28 - 2. Dachgeschoss

Diese Wohnung verkörpert den absoluten Luxus an Ausstattung, Großzügigkeit, Ambiente und besticht durch drei hofseitige Terrassen mit einzigartigen Fernblick!

Zwei tolle Terrassen liegen hof- und ostseitig auf Wohnebene und sind direkt von der Wohnküche bzw. vom Master Bedroom erreichbar. Von der Wohnküche gelangt man weiters über eine Treppe auf die darüberliegende traumhafte 58 m² große Dachterrasse mit Blick über Wien.

Das Herzstück der Wohnung ist der imposante 66 m² große Wohn-/Essbereich mit offener Küche und seinen großen Fensterfronten mit einem beeindruckenden Fernblick. Der direkte Zugang zur sonnigen, hofseitigen Terrasse und ein abgetrennter Bereich für ein Home Office oder mehr Stauraum runden sind bedeutender ein Mehrwert für diesen Raum.

Nicht weniger beeindruckend ist der ruhige, hofseitige Master-Bedroom mit einer Fläche von rd 18 m² plus einem angrenzenden Badezimmer mit rd. 15 m² und einer eigenen, kleinen Terrasse.

Für Kinder oder Gäste bietet diese Wohnung ein weiteres schönes Zimmer, sowie ein zentral gelegenes, kleineres Badezimmer mit Walk In-Dusche und Toilette. Zu Wahrung der Privatsphäre gibt es zusätzlich noch eine Gästetoilette und für mehr Staufläche einen Abstellraum.

 

Dieser luxuriöse und großzügige Wohntraum ist perfekt für anspruchsvolle Paare und kleine Familien, die etwas Einzigartiges suchen!

Raumaufteilung im Überblick:

* 66 m² Wohn-/Essbereich mit offener Küche und Zugang zur hofseitigen Terrasse mit 16 m²
* 18 m² Master Bedroom mit Ausgang auf die hofseitige Terrasse mit 7 m² und angrenzendes
* 15 m² Badezimmer mit Badewanne, Walk In-Dusche und Toilette
* 13 m² Zimmer für Kinder, Gäste, Home Office o.ä.
* zentral begehbares Badezimmer mit Walk In-Dusche und Toilette
* Gästetoilette mit Handwaschbecken
* Abstellraum
* 58 m² Dachterrasse mit Rundumblick und zentralem Aufgang von der Wohnküche

_(Flächenangaben gerundet, Angaben ohne Gewähr)_

 

IHRE ANLAGE MIT ZUKUNFT

Dieses Neubauprojekt kombiniert hochwertige Ausstattung und Bauweise, nachhaltige Planung und eine hervorragende Infrastruktur und Verkehrsanbindung in einer urbanen und begehrten Lage im grünen Westen von Wien - in fußläufiger Entfernung zu zwei namhaften Krankenhäusern und renommierten Unternehmen.

Dies schafft ideale Voraussetzungen für eine langfristig erfolgreiche Vermietung und stabile Wertentwicklung.

 

URBANES WOHNEN AM RANDE VON DORNBACH - EINE LAGE DIE ÜBERZEUGT

Die "SANDLEITEN - Signature Homes" liegen in unmittelbarer Nähe zum wunderschönen Kongresspark am Rand von Dornbach, einer der begehrten und exklusiven Lagen im Westen von Wien.

Diese Lage ist nicht nur ein Paradies für Erholungssuchende, Sportler und Familien, sondern bietet auch eine unvergleichbare Infrastruktur und Verkehrsanbindung.

Hier finden Sie in fußläufiger Entfernung große Einkaufsmärkte, ebenso wie einen charmanten Grünmarkt und kleine Fachgeschäfte und eine Vielfalt von Gastronomiebetrieben - von charmanten Heurigen, guten Restaurants bis zu Fast Food Lokalen.

Unmittelbar vor der Haustüre oder in fußläufiger Entfernung haben Sie ein so breites und einzigartiges Angebot an öffentlichen Verkehrsmitteln, die Sie nicht nur direkt in die Innenstadt bringen, sondern quer durch ganz Wien und in alle Himmelsrichtungen - dies ist einzigartig und der Grund, weshalb die U-Bahnlinie U5 genau dorthin gebaut wird.

Nach Ihrer Anfrage übermitteln wir Ihnen gerne ein detailliertes Lage-Exposé, aber hier schon mal vorweg ein Einblick in diese unbeschreiblich tolle Lage:

Öffentliche Verkehrsmittel in fußläufiger Entfernung

Straßenbahnlinie 2: Dornbach - Josefstadt (U6) - Rathaus bis Schwedenplatz (U2, U3, U4) - Taborstraße - Brigittenau

Straßenbahnlinie 10: Dornbach - Ottakring (U3) - Hietzing - Unter St. Veit

Straßenbahnlinie 43: Neuwaldegg - Alser Straße (U6) - Josefstadt (5, 13A) - Schottentor (U2)

Buslinie 10A: Heiligenstadt (U4/S) - Döbling - Gersthof - Schmelz - Schönbrunn - Meidling

Schnellbahn S45: Handelskai - Heiligenstadt (U4/S) - Döbling - Gersthof - bis Hütteldorf Bhf.

Die U-Bahnlinie U3 erreichen Sie innerhalb von 20 Gehminuten oder 13 Minuten mit der Straßenbahn.

Einkaufsparadies in fußläufiger Entfernung

Interspar, Hofer, Lidl, Billa, Spar Gourmet, Bipa, Baumarkt, Apotheken, Trafiken, Bäcker, Drogerie, Blumen, Fleischer, sowie Post und Bank. Nach einem kleinen Spaziergang erreichen Sie auch den Ottakringer Bahnhof Markt bei der Station der Linie U3.

Freizeitangebot für fast alle Bedürfnisse

Die Sport & Fun Halle Ottakring (Basketball, Beachvolleyball, Badminton, Tischtennis uvm) liegt fast vor der Haustüre, ebenso wie das Kongressbad und der weitläufige Kongresspark.

Weiters finden Sie im näheren Umfeld Fitnessstudios, das berühmte Sportzentrum Marswiese (Tennis, Klettern, Teamsport), das Schafbergbad, sowie die den Pötzleinsdorfer Schloßpark und den Schwarzenbergpark. Sie können aber auch einfach mal einen kleinen Spaziergang zum Schloss Wilhelminenberg machen.

Schulen und Kindergärten

In fußläufiger Entfernung finden Sie zahlreiche private und städtische Kindergärten, ebenso wie Volksschulen, aber auch die HTL Ottakring.

Medizinische Versorgung

Krankenhaus Göttlicher Heiland, Klinikum Ottakring und zahlreiche Ärzte und Therapeuten liegen ebenfalls in fußläufiger Entfernung.

 

 

_Aus rechtlichen Gründen bitten wir um Verständnis, dass wir nur Anfragen per Mail beantworten, wenn Sie uns Ihren vollständigen Namen samt Mailadresse und Mobilnummer bekanntgeben._

_Für die Vereinbarung eines Termins kontaktieren Sie Frau Ulrike Krempl telefonisch unter +43 664 426 40 22 oder per E-Mail: uk@novel-real.at._

 

_Alle Angaben basieren alleinig auf Informationen, die uns von unserem Auftraggeber übermittelt wurden. Trotz aller Sorgfalt können wir für die Richtigkeit, Vollständigkeit und Aktualität dieser Angaben keine Gewähr übernehmen. Jegliche Weitergabe der übermittelten Daten an Dritte ist nicht gestattet. Der Maklervertrag kommt durch schriftliche Vereinbarung oder Inanspruchnahme unserer Maklertätigkeit zustande. Der Makler kann als Doppelmakler tätig werden. Sollte das von uns nachgewiesene Objekt bereits bekannt sein, teilen sie uns dies bitte unverzüglich mit._

_Die Maklergebühr ist ausschließlich bei Zustandekommen eines gültigen Rechtsgeschäfts fällig. Es wird ausdrücklich auf die Nebenkostenübersicht hingewiesen. Bei den Visualisierungen und Abbildungen der Immobilie (insbesondere von Inneneinrichtungen) kann es sich um Symbolfotos bzw. fototechnisch optimierte Fotos handeln. Hiermit weisen wir auf das Bestehen eines familiären und/oder wirtschaftlichen Naheverhältnisses zum Vermieter/Verkäufer hin. _

 

Wir weisen darauf hin, dass zwischen dem Vermittler und dem zu vermittelnden Dritten ein familiäres oder wirtschaftliches Naheverhältnis besteht.

Der Vermittler ist als Doppelmakler tätig.

Infrastruktur / Entfernungen

Gesundheit
Arzt <500m
Apotheke <500m
Klinik <1.500m
Krankenhaus <1.000m

Kinder & Schulen
Schule <500m
Kindergarten <500m
Universität <2.000m
Höhere Schule <2.000m

Nahversorgung
Supermarkt <500m
Bäckerei <500m
Einkaufszentrum <500m

Sonstige
Geldautomat <500m
Bank <500m
Post <500m
Polizei <1.000m

Verkehr
Bus <500m
U-Bahn <1.000m
Straßenbahn <500m
Bahnhof <1.000m
Autobahnanschluss <5.000m

Angaben Entfernung Luftlinie / Quelle: OpenStreetMap

Merkmale

  • Bezug: 1. Quartal 2027
  • Dachgeschoss, 6. Geschoss
  • offene Küche
  • Personenaufzug
  • Gäste-WC
  • Terrasse

Grundrisse

Grundrisse
1 / 1

Bausubstanz und Energie

Heizwärmebedarf (HWB)

A

Gesamtenergieeffizienz (fGEE)

A
  • Baujahr2026
  • Zustand der ImmobilieNeubau, Massivhaus, Erstbezug
  • HeizungsartFußbodenheizung
  • EnergieträgerLuft-/Wasser-Wärmepumpe
Immowelt logo

Preisdetails

Kaufpreis
1633000 €
12.534,54 €/m²
Provision für Käufer
3% des Kaufpreises zzgl. 20% USt.

Lage

address-icon
Wien (1170)
DORNBACH / KONGRESSPARK

Weitere Informationen

Stichworte Duplex-Stellplatz vorhanden, Tiefgarage vorhanden, Ost-Süd-West-Balkon/Terrasse, Fahrradraum, Rolladen, Anzahl der Badezimmer: 2, Anzahl der separaten WCs: 3, Anzahl Terrassen: 3, Balkon-Terrassen-Fläche: 80,83 m², Bundesland: Wien, 7 Etagen Sonstiges/Wohnen: seniorengerechtes Wohnen

Weitere Services

Lust auf eine Besichtigung?
Eine Frage zur Immobilie?
Nachricht hinzufügen
Mit der Nutzung der oben angegebenen Telefonnummer oder durch Klicken auf „Kontaktieren“ akzeptierst Du die Allgemeinen Nutzungsbedingungen, denen Du jederzeit widersprechen kannst. Weitere Informationen zum Datenschutz

Über den Anbieter

Dorotheergasse 6-8/8-9, 1010 Wien
partner badge
Partnerschaft
Frau Ulrike KremplDein Kontakt
Online-ID: 26JL4MLR9GQC
Referenznummer: OBGC2025103012073861277bcf9a286
Wie zufrieden bist du mit dieser Seite (nicht mit der Immobilie selbst)?