


1 / 16



1 / 16
Wohnung zum Kauf - Erstbezug769000 €769.000 €8.994 €/m²3 Zimmer • 85,5 m² • 3. Geschoss
769000 €769.000 €
8.994 €/m²
3 Zimmer • 85,5 m² • 3. Geschoss
VERKAUFSSTART - EXKLUSIVES WOHNEN MIT WEITBLICK IN TOPLAGE
EXKLUSIVES WOHNEN MIT WEITBLICK UND MEHRWERT
Am Rande von Dornbach, dem exklusiven und charmanten Stadtteil am westlichen Stadtrand von Wien, steht ein einzigartiges Neubauprojekt kurz vor der Fertigstellung. Genießen Sie eine urbane Oase mit perfekter Infrastruktur und Verkehrsanbindung und die Nähe zu den schönsten Grünoasen Wiens mit all seinen Freizeitmöglichkeiten. Die "SANDLEITEN - Signature Homes" liegen in unmittelbarer Nähe zum wunderschönen Kongresspark und verbinden energieeffiziente Bauweise, modernes Design, exklusive Ausstattung und durchdachte Raumkonzepte mit höchster Wohnqualität zu einem harmonischen Gesamtbild.
WOHNVIELFALT MIT FREIRAUM FÜR JEDES LEBENSKONZEPT
Insgesamt entstehen 29 hochwertige Eigentumswohnungen mit großzügigen Freiflächen von bis zu 80 m², sowie ein kleines Geschäftslokal. Die den oberen Geschoße begeistern mit einem beeindrucken Fernblick.
Die Bandbreite der Wohnungen reicht von kompakten 2-Zimmerr-Einheiten ab ca. 45 m² bis hin zu großzügigen 5-Zimmer-Familienwohnungen mit bis zu 130 m² Wohnfläche - ein durchdachtes Angebot für Singles, Paare und Familien gleichermaßen.
Jeder Wohnung ist ein eigener Einlagerungsraum zugeordnet. Für zusätzlichen Komfort stehen den Bewohnern ein Fahrradraum, ein Kinderwagenabstellraum sowie ein Kleinkinderspielplatz zur gemeinschaftlichen Nutzung zur Verfügung.
Die Kaufpreise beginnen bei EUR 349.000 für eine 2-Zimmer-Wohnung und reichen bis EUR 1.633.000 für das exklusive Dachgeschoss-Penthouse.
13 Tiefgaragenstellplätze im Haus - mit E-Ladevorbereitung
Bei Bedarf kann ein Pkw-Stellplatz in der hauseigenen Tiefgarage zum Kaufpreis von EUR 45.000 erworben werden.
Insgesamt stehen 13 Stellplätze zur Verfügung. Sämtliche Stellplätze sind bereits für die Installation einer E-Ladestation vorbereitet.
ENERGIEEFFIZIENTE BAUWEISE & HOCHWERTIGE AUSSTATTUNG - DIE FAKTEN ÜBERZEUGEN
* Tiefgarage mit modernen E-Ladestationen für nachhaltige Mobilität
* Fußbodenheizung und Warmwasseraufbereitung mit energieeffizienter Luft-Wasser-Wärmepumpe.
* Photovoltaikanlage, die den allgemeinen Stromverbrauch umweltfreundlich deckt
* Vorbereitung für Klimaanlage, die selbst an heißen Tagen ein angenehmes Raumklima schafft
* Großzügige und bodentiefe Fensterfronten für lichtdurchflutete und einzigartige Räume
* 3-fach verglaste Wärmeschutzfenster mit Aludeckschale in bronze- maximale Energieeffizienz und langlebige Qualität
* Elektrische, außenliegende Raffstores in bronze und solargesteuerte Außenbeschattung bei Dachflächenfenstern
* Sicherheitstüren der Klasse WK III - reduziert Risiko und Versicherungskosten
* Videotürsprechanlage mit App-Steuerung
* exklusive Innentüren - flächenbündig mit Holzzargen - Klimaklasse A, und einer Höhe von 2,20 m
* hochwertiger Mehrschicht Markenparkett "Landhausdiele" in Eiche
* hochwertige und stilvolle Sanitärausstattung, die sich deutlich vom Standard abhebt
* WC-System von Fa. Tece - d.h. vorbereitet für WC-Dusche als Alternative zu Bidet uvm.
* Terrassengeländer aus Echtglas mit Edelstahlprofilen
* Innenwände mit doppelten Gipskartonplatten für bessere Geräuschdämmung und Stabilität
* Video-Gegensprechanlage
ALLES AUS EINER HAND - FÜR MEHR QUALITÄT, FLEXIBILITÄT UND SICHERHEIT
Dem Bauträger ist es ein Anliegen, sich deutlich von allen anderen Anbietern zu unterscheiden und Ihnen das Beste zu bieten. Hier vereinen sich die höchsten Ansprüche an Qualität, Design und Funktionalität mit nachhaltiger und energieeffizienter Bauweise. Die Referenzprojekte sprechen für sich.
Durch die Integration der Bauleistung in das eigene Unternehmen bestehen ein hohes Eigeninteresse an einer mängelfreien und termingerechten Umsetzung und viele weitere Vorteile für die Kunden:
* Mehrwert durch höhere Ausstattungsqualität zu konkurrenzfähigen Preisen
* Qualitätssicherung durch kontinuierlicher Bauüberwachung
* Mehr Klarheit bei Verantwortlichkeit und Haftung
* Mehr Flexibilität und einen Ansprechpartner bei allfälligen Sonderwünschen (nur noch kurze Zeit möglich!)
* Sichtbare Expertise - Referenzobjekte des Bauträgers ermöglichen auch die Prüfung der Qualität der tatsächlichen Bauausführung bei früheren Projekten
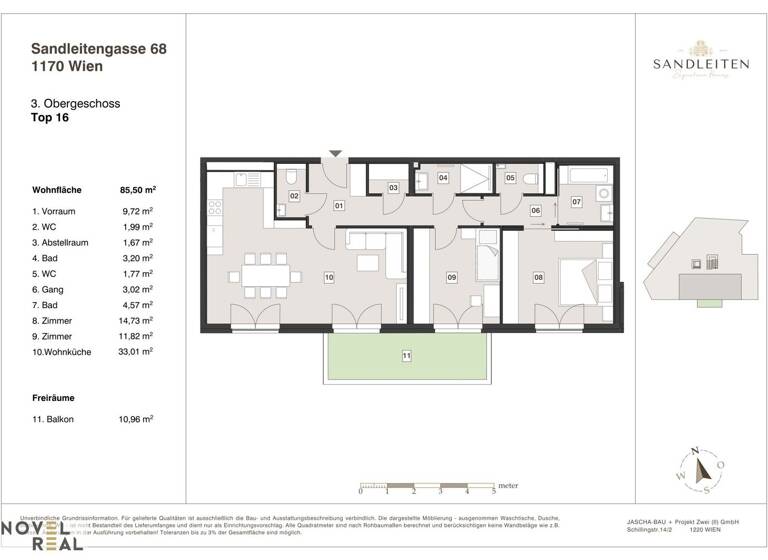
EINZIGARTIGE 3 ZIMMER-WOHNUNG MIT FREIFLÄCHE!
Top 16
Die Wohnung besticht durch eine klare und funktionale Raumaufteilung. Zwei helle Zimmer bieten flexible Nutzungsmöglichkeiten - ob als Schlafzimmer, Büro oder Gästezimmer. Der zentrale Gang verbindet alle Bereiche und schafft eine angenehme Raumstruktur. Der Wohn- und Essbereich ist offen gestaltet und geht fließend in die Küche über. Der direkte Zugang zum Balkon bietet zusätzlichen Freiraum, um mal draußen tief durchzuatmen oder die Abendsonne zu genießen. Zwei Badezimmer - eines mit Badewanne, das andere mit Dusche - sorgen für Komfort im Alltag. Zusätzlich stehen zwei separate WCs zur Verfügung, was besonders bei mehreren Bewohnern praktisch ist. Der Eingangsbereich (Vorraum) bietet Zugang zu einem kompakten Abstellraum, ideal für Haushaltsgeräte oder Vorräte.
Fakten:
* 2 Zimmer: flexibel nutzbar, mit Fenster und Türanschluss
* Wohn-/Essbereich: offen, mit direktem Übergang zur Küche
* Küche: ausgestattet mit Herd und Spüle
* 2 Badezimmer: eines mit Badewanne, eines mit Dusche
* 2 separate WCs: unabhängig von den Bädern
* Gang: zentrale Verbindung aller Räume
* Vorraum (VR): Eingangsbereich mit Zugang zu WC und Abstellraum
* Abstellraum (AR): ideal für Lagerung und Haushaltsbedarf
* Balkon: direkt vom Wohnbereich erreichbar, ruhig gelegen
_Aus rechtlichen Gründen und aufgrund der großen Nachfragen bitten wir um Verständnis, dass wir nur Anfragen per Mail beantworten, wenn Sie uns Ihren vollständigen Namen samt Mailadresse und Mobilnummer bekanntgeben._
Alle Angaben basieren alleinig auf Informationen, die uns von unserem Auftraggeber übermittelt wurden. Trotz aller Sorgfalt können wir für die Richtigkeit, Vollständigkeit und Aktualität dieser Angaben keine Gewähr übernehmen. Jegliche Weitergabe der übermittelten Daten an Dritte ist nicht gestattet. Der Maklervertrag kommt durch schriftliche Vereinbarung oder Inanspruchnahme unserer Maklertätigkeit zustande. Der Makler kann als Doppelmakler tätig werden. Sollte das von uns nachgewiesene Objekt bereits bekannt sein, teilen sie uns dies bitte unverzüglich mit.
Die Maklergebühr ist ausschließlich bei Zustandekommen eines gültigen Rechtsgeschäfts fällig. Es wird ausdrücklich auf die Nebenkostenübersicht hingewiesen. Bei den Visualisierungen und Abbildungen der Immobilie (insbesondere von Inneneinrichtungen) kann es sich um Symbolfotos bzw. fototechnisch optimierte Fotos handeln. Hiermit weisen wir auf das Bestehen eines familiären und/oder wirtschaftlichen Naheverhältnisses zum Vermieter/Verkäufer hin.
Infrastruktur / Entfernungen
Gesundheit
Arzt <500m
Apotheke <500m
Klinik <1.500m
Krankenhaus <1.000m
Kinder & Schulen
Schule <500m
Kindergarten <500m
Universität <2.000m
Höhere Schule <2.000m
Nahversorgung
Supermarkt <500m
Bäckerei <500m
Einkaufszentrum <500m
Sonstige
Geldautomat <500m
Bank <500m
Post <500m
Polizei <1.000m
Verkehr
Bus <500m
U-Bahn <1.000m
Straßenbahn <500m
Bahnhof <1.000m
Autobahnanschluss <5.000m
Angaben Entfernung Luftlinie / Quelle: OpenStreetMap
Am Rande von Dornbach, dem exklusiven und charmanten Stadtteil am westlichen Stadtrand von Wien, steht ein einzigartiges Neubauprojekt kurz vor der Fertigstellung. Genießen Sie eine urbane Oase mit perfekter Infrastruktur und Verkehrsanbindung und die Nähe zu den schönsten Grünoasen Wiens mit all seinen Freizeitmöglichkeiten. Die "SANDLEITEN - Signature Homes" liegen in unmittelbarer Nähe zum wunderschönen Kongresspark und verbinden energieeffiziente Bauweise, modernes Design, exklusive Ausstattung und durchdachte Raumkonzepte mit höchster Wohnqualität zu einem harmonischen Gesamtbild.
WOHNVIELFALT MIT FREIRAUM FÜR JEDES LEBENSKONZEPT
Insgesamt entstehen 29 hochwertige Eigentumswohnungen mit großzügigen Freiflächen von bis zu 80 m², sowie ein kleines Geschäftslokal. Die den oberen Geschoße begeistern mit einem beeindrucken Fernblick.
Die Bandbreite der Wohnungen reicht von kompakten 2-Zimmerr-Einheiten ab ca. 45 m² bis hin zu großzügigen 5-Zimmer-Familienwohnungen mit bis zu 130 m² Wohnfläche - ein durchdachtes Angebot für Singles, Paare und Familien gleichermaßen.
Jeder Wohnung ist ein eigener Einlagerungsraum zugeordnet. Für zusätzlichen Komfort stehen den Bewohnern ein Fahrradraum, ein Kinderwagenabstellraum sowie ein Kleinkinderspielplatz zur gemeinschaftlichen Nutzung zur Verfügung.
Die Kaufpreise beginnen bei EUR 349.000 für eine 2-Zimmer-Wohnung und reichen bis EUR 1.633.000 für das exklusive Dachgeschoss-Penthouse.
13 Tiefgaragenstellplätze im Haus - mit E-Ladevorbereitung
Bei Bedarf kann ein Pkw-Stellplatz in der hauseigenen Tiefgarage zum Kaufpreis von EUR 45.000 erworben werden.
Insgesamt stehen 13 Stellplätze zur Verfügung. Sämtliche Stellplätze sind bereits für die Installation einer E-Ladestation vorbereitet.
ENERGIEEFFIZIENTE BAUWEISE & HOCHWERTIGE AUSSTATTUNG - DIE FAKTEN ÜBERZEUGEN
* Tiefgarage mit modernen E-Ladestationen für nachhaltige Mobilität
* Fußbodenheizung und Warmwasseraufbereitung mit energieeffizienter Luft-Wasser-Wärmepumpe.
* Photovoltaikanlage, die den allgemeinen Stromverbrauch umweltfreundlich deckt
* Vorbereitung für Klimaanlage, die selbst an heißen Tagen ein angenehmes Raumklima schafft
* Großzügige und bodentiefe Fensterfronten für lichtdurchflutete und einzigartige Räume
* 3-fach verglaste Wärmeschutzfenster mit Aludeckschale in bronze- maximale Energieeffizienz und langlebige Qualität
* Elektrische, außenliegende Raffstores in bronze und solargesteuerte Außenbeschattung bei Dachflächenfenstern
* Sicherheitstüren der Klasse WK III - reduziert Risiko und Versicherungskosten
* Videotürsprechanlage mit App-Steuerung
* exklusive Innentüren - flächenbündig mit Holzzargen - Klimaklasse A, und einer Höhe von 2,20 m
* hochwertiger Mehrschicht Markenparkett "Landhausdiele" in Eiche
* hochwertige und stilvolle Sanitärausstattung, die sich deutlich vom Standard abhebt
* WC-System von Fa. Tece - d.h. vorbereitet für WC-Dusche als Alternative zu Bidet uvm.
* Terrassengeländer aus Echtglas mit Edelstahlprofilen
* Innenwände mit doppelten Gipskartonplatten für bessere Geräuschdämmung und Stabilität
* Video-Gegensprechanlage
ALLES AUS EINER HAND - FÜR MEHR QUALITÄT, FLEXIBILITÄT UND SICHERHEIT
Dem Bauträger ist es ein Anliegen, sich deutlich von allen anderen Anbietern zu unterscheiden und Ihnen das Beste zu bieten. Hier vereinen sich die höchsten Ansprüche an Qualität, Design und Funktionalität mit nachhaltiger und energieeffizienter Bauweise. Die Referenzprojekte sprechen für sich.
Durch die Integration der Bauleistung in das eigene Unternehmen bestehen ein hohes Eigeninteresse an einer mängelfreien und termingerechten Umsetzung und viele weitere Vorteile für die Kunden:
* Mehrwert durch höhere Ausstattungsqualität zu konkurrenzfähigen Preisen
* Qualitätssicherung durch kontinuierlicher Bauüberwachung
* Mehr Klarheit bei Verantwortlichkeit und Haftung
* Mehr Flexibilität und einen Ansprechpartner bei allfälligen Sonderwünschen (nur noch kurze Zeit möglich!)
* Sichtbare Expertise - Referenzobjekte des Bauträgers ermöglichen auch die Prüfung der Qualität der tatsächlichen Bauausführung bei früheren Projekten
EINZIGARTIGE 3 ZIMMER-WOHNUNG MIT FREIFLÄCHE!
Top 16
Die Wohnung besticht durch eine klare und funktionale Raumaufteilung. Zwei helle Zimmer bieten flexible Nutzungsmöglichkeiten - ob als Schlafzimmer, Büro oder Gästezimmer. Der zentrale Gang verbindet alle Bereiche und schafft eine angenehme Raumstruktur. Der Wohn- und Essbereich ist offen gestaltet und geht fließend in die Küche über. Der direkte Zugang zum Balkon bietet zusätzlichen Freiraum, um mal draußen tief durchzuatmen oder die Abendsonne zu genießen. Zwei Badezimmer - eines mit Badewanne, das andere mit Dusche - sorgen für Komfort im Alltag. Zusätzlich stehen zwei separate WCs zur Verfügung, was besonders bei mehreren Bewohnern praktisch ist. Der Eingangsbereich (Vorraum) bietet Zugang zu einem kompakten Abstellraum, ideal für Haushaltsgeräte oder Vorräte.
Fakten:
* 2 Zimmer: flexibel nutzbar, mit Fenster und Türanschluss
* Wohn-/Essbereich: offen, mit direktem Übergang zur Küche
* Küche: ausgestattet mit Herd und Spüle
* 2 Badezimmer: eines mit Badewanne, eines mit Dusche
* 2 separate WCs: unabhängig von den Bädern
* Gang: zentrale Verbindung aller Räume
* Vorraum (VR): Eingangsbereich mit Zugang zu WC und Abstellraum
* Abstellraum (AR): ideal für Lagerung und Haushaltsbedarf
* Balkon: direkt vom Wohnbereich erreichbar, ruhig gelegen
_Aus rechtlichen Gründen und aufgrund der großen Nachfragen bitten wir um Verständnis, dass wir nur Anfragen per Mail beantworten, wenn Sie uns Ihren vollständigen Namen samt Mailadresse und Mobilnummer bekanntgeben._
Alle Angaben basieren alleinig auf Informationen, die uns von unserem Auftraggeber übermittelt wurden. Trotz aller Sorgfalt können wir für die Richtigkeit, Vollständigkeit und Aktualität dieser Angaben keine Gewähr übernehmen. Jegliche Weitergabe der übermittelten Daten an Dritte ist nicht gestattet. Der Maklervertrag kommt durch schriftliche Vereinbarung oder Inanspruchnahme unserer Maklertätigkeit zustande. Der Makler kann als Doppelmakler tätig werden. Sollte das von uns nachgewiesene Objekt bereits bekannt sein, teilen sie uns dies bitte unverzüglich mit.
Die Maklergebühr ist ausschließlich bei Zustandekommen eines gültigen Rechtsgeschäfts fällig. Es wird ausdrücklich auf die Nebenkostenübersicht hingewiesen. Bei den Visualisierungen und Abbildungen der Immobilie (insbesondere von Inneneinrichtungen) kann es sich um Symbolfotos bzw. fototechnisch optimierte Fotos handeln. Hiermit weisen wir auf das Bestehen eines familiären und/oder wirtschaftlichen Naheverhältnisses zum Vermieter/Verkäufer hin.
Infrastruktur / Entfernungen
Gesundheit
Arzt <500m
Apotheke <500m
Klinik <1.500m
Krankenhaus <1.000m
Kinder & Schulen
Schule <500m
Kindergarten <500m
Universität <2.000m
Höhere Schule <2.000m
Nahversorgung
Supermarkt <500m
Bäckerei <500m
Einkaufszentrum <500m
Sonstige
Geldautomat <500m
Bank <500m
Post <500m
Polizei <1.000m
Verkehr
Bus <500m
U-Bahn <1.000m
Straßenbahn <500m
Bahnhof <1.000m
Autobahnanschluss <5.000m
Angaben Entfernung Luftlinie / Quelle: OpenStreetMap
Merkmale
- Bezug: 1. Quartal 2027
- 3. Geschoss
- offene Küche
- Personenaufzug
- Garage
- Gäste-WC
- Balkon
- Barrierefrei
Grundrisse
Grundrisse
1 / 1
Realisiere Dein Projekt
Bausubstanz und Energie
Heizwärmebedarf (HWB)
A
Gesamtenergieeffizienz (fGEE)
A
- Baujahr2026
- Zustand der ImmobilieNeubau, Massivhaus, Erstbezug
- HeizungsartFußbodenheizung
- EnergieträgerLuft-/Wasser-Wärmepumpe
Preisdetails
Kaufpreis
769000 €769.000 €
8.994,15 €/m²
Provision für Käufer
3% des Kaufpreises zzgl. 20% USt.
Weitere Preisinformationen
1 Garagenstellplatz
Lage

Wien (1170)
DORNBACH / KONGRESSPARK
Weitere Informationen
Stichworte
Garage vorhanden, Fahrradraum, Nutzfläche: 85,50 m², Anzahl der Badezimmer: 2, Anzahl der separaten WCs: 2, Anzahl Balkone: 1, Balkon-Terrassen-Fläche: 10,96 m², Bundesland: Wien, 7 Etagen
Sonstiges/Wohnen: seniorengerechtes Wohnen
Weitere Services
Lust auf eine Besichtigung?
Eine Frage zur Immobilie?
Über den Anbieter
Dorotheergasse 6-8/8-9, 1010 Wien
Partnerschaft
Frau Tatiana HanzlDein Kontakt
Online-ID: 2613KXCMQ3FQ
Referenznummer: OBGC2025103010234138475e3b89cd9

Novel Real Immobilien GmbH
Wie zufrieden bist du mit dieser Seite (nicht mit der Immobilie selbst)?