Version: 8.25.1Navigation überspringen
ohne-makler.net - Immobilien selbst vermarkten
285.000 €
7 Zimmer  •  138 m²  •  736 m² Grundstück

Stadthaus zum Kauf • provisionsfrei
285000 €
2.065 €/m²
7 Zimmer  •  138 m²  •  736 m² Grundstück

"DAS ALTE HOSPITAL"

"DAS ALTE HOSPITAL" (Privatverkauf)
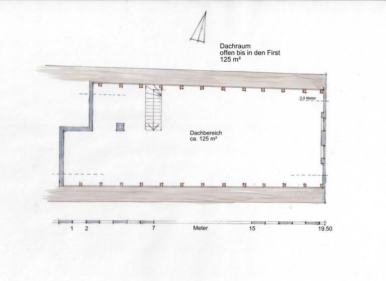
Vielfältige Nutzungsmöglichkeiten bietet das 1602 erbaute hochrangige Baukulturgut im charmanten, historischen und repräsentativen Ambiente. Es handelt sich hier um das älteste Haus der Stadt Tönning. 1988 wurde das Gebäude kernsaniert und dabei in einen annähernden Neubauzustand versetzt. Anschließend wurde das "Alte Hospital" als Museum genutzt, ab 1999 als Architekturbüro. Dies ist auch der derzeitige Ist-Zustand. Das Erdgeschoß zeigt sich durch die vielen großen Fenster tageslichtdurchflutet, die üppige Raumhöhe sorgt für ein großzügiges Raumgefühl. Die originalen Deckenbalken und historischen Holzständer mit breiten Deckendielen geben in Verbindung mit dem Ziegelpflaster- und teilweise Holzdielenboden ein warmes und elegantes Ambiente. Derzeit sind im größten Bereich des Erdgeschosses reversible Leichtbau- und Glaswände eingesetzt. Diese können rückstandslos entfernt werden und ermöglichen weitere vielfältige Nutzungsmöglichkeiten. Der imposante Dachraum ist bis unter den First offen gestaltet, das originale Gebälk ist komplett sichtbar. Die Dachschrägen sind nach außen mit massiven Holzdielen verkleidet. Alle Fenster und Türen wurden 1988 sehr hochwertig ausgeführt und befinden sich im guten Zustand. Baurechtlich (Baugenehmigung liegt vor) ist das Haus Wohnraum (Wohnfläche 138m² + Nutzfläche 125m²), kann aber auch gewerblich genutzt werden. Bei dem hier angebotenen Gebäudeteil handelt es sich um den Ostflügel des "Alten Hospitals von 1602", die WEG Teilung liegt vor. Zum Haus gehört ein Grundstücksanteil von 736/2 m², ein weiterer Grundstücksanteil (Bauland) kann dazu erworben werden. Weitere und ausführliche Informationen erhalten Sie gerne auf Anfrage vom Verkäufer. Privatverkauf - keine Courtage!

Merkmale

  • Bezug: nach Absprache
  • Denkmalschutz-Afa
  • 736 m² Grundstück
  • Garten
  • 4 Stellplätze: 4 Außen-Stellplätze
Garten, Sonstiges (s. Text)

Grundrisse

Grundrisse
1 / 4

Realisiere Dein Projekt

Bausubstanz und Energie

Energieausweis

Ein Energieausweis ist für diesen Gebäudetyp nicht notwendig.
  • Baujahr1602
  • Zustand der Immobilierenoviert / saniert
  • HeizungsartZentralheizung
  • EnergieträgerGas
MediumRectangleTop

Preisdetails

Kaufpreis
285000 €
2.065,22 €/m²
Provision für Käufer
provisionsfrei; keine Provision, courtagefrei
Weitere Preisinformationen
4 Stellplätze
Geschätzte Gesamtkosten
309.225 €1
Kaufpreis
285.000 €
Notarkosten (1,5%)
4.275 €
Grunderwerbsteuer (6,5%)
18.525 €
Grundbucheintrag (0,5%)
1.425 €
1Der angezeigte Wert ist eine automatisch berechnete Schätzung von immowelt.
2Bei den Angaben handelt es sich um ortsübliche Werte. Individuelle Kosten können abweichen.

Lage

address-icon
Tönning (25832)
Der Anbieter hat die genaue Adresse nicht freigegeben
TÖNNING: Hafenstadt an der Eider auf der Halbinsel EIDERSTEDT in NORDFRIESLAND, unmittelbare Nähe zu ST. PETER-ORDING an der NORDSEE sowie der "Holländerstadt" FRIEDRICHSTADT und den Kreisstädten HUSUM (Nordfriesland) und HEIDE (Dithmarschen), NATIONALPARK WATTENMEER.
Infrastruktur (im Umkreis von 5 km):
Apotheke, Lebensmittel-Discount, Allgemeinmediziner, Kindergarten, Grundschule, Hauptschule, Realschule, Gymnasium, Gesamtschule, Öffentliche Verkehrsmittel

Weitere Informationen

Sonstiges Heizungsart: Zentralheizung
Energieträger: Gas


Makleranfragen nicht erwünscht. Nach § 7 UWG sind unaufgeforderte Kontaktaufnahmen durch Makler ohne ausdrückliche Einwilligung des Empfängers verboten!

ohne-makler (OM) ist weder Anbieter noch Vermittler der Immobilie. OM betreibt eine Plattform für Immobilieneigentümer, die unter anderem die gleichzeitige Veröffentlichung einzelner Inserate auf mehreren Immobilienportalen ermöglicht. Die Inhalte dieser Inserate werden ausschließlich von Dritten verantwortet. Für die Richtigkeit, Vollständigkeit oder Rechtmäßigkeit der Angaben übernimmt OM keine Haftung. Hinweise auf mögliche Rechtsverstöße können jederzeit gemeldet werden und werden nach Prüfung umgehend bearbeitet. Stichworte Stellplatz vorhanden, Nutzfläche: 125,00 m², Bundesland: Schleswig-Holstein, 1 Etagen

Weitere Services

Lust auf eine Besichtigung?
Eine Frage zur Immobilie?
Nachricht hinzufügen
Mit der Nutzung der oben angegebenen Telefonnummer oder durch Klicken auf „Kontaktieren“ akzeptierst Du die Allgemeinen Nutzungsbedingungen, denen Du jederzeit widersprechen kannst. Weitere Informationen zum Datenschutz

Über den Anbieter

Humboldtstr. 25 A, 21509 Glinde
partner badge
Partnerschaft
Privat von Herr BrackerDein Kontakt
Keine Telefonnummer hinterlegt
Keine Telefonnummer hinterlegt
Online-ID: 2586D5TKX5AR
Referenznummer: 361933
ohne-makler.net - Immobilien selbst vermarkten
ohne-makler.net - Immobilien selbst vermarkten
Nachricht hinzufügen
Mit der Nutzung der oben angegebenen Telefonnummer oder durch Klicken auf „Kontaktieren“ akzeptierst Du die Allgemeinen Nutzungsbedingungen, denen Du jederzeit widersprechen kannst. Weitere Informationen zum Datenschutz
MediumRectangleTop
MediumRectangleBottom
MediumRectangleTop
Wie zufrieden bist du mit dieser Seite (nicht mit der Immobilie selbst)?