

Mehrfamilienhaus zum Kauf • als Kapitalanlage geeignet99000 €409 €/m²9 Zimmer • 242 m² • 194 m² Grundstück
99000 €
409 €/m²
9 Zimmer • 242 m² • 194 m² Grundstück
Top - Investment: Objekt im Sanierungsgebiet - bis zu 9% Sonder-AfA jährlich auf 10 Jahre !
Merkmale
- 194 m² Grundstück
- Keller
- Außen-Stellplatz
- Badezimmer: Bad mit Dusche, Bad mit Fenster
- Bodenbelag: Fliesen, Stein
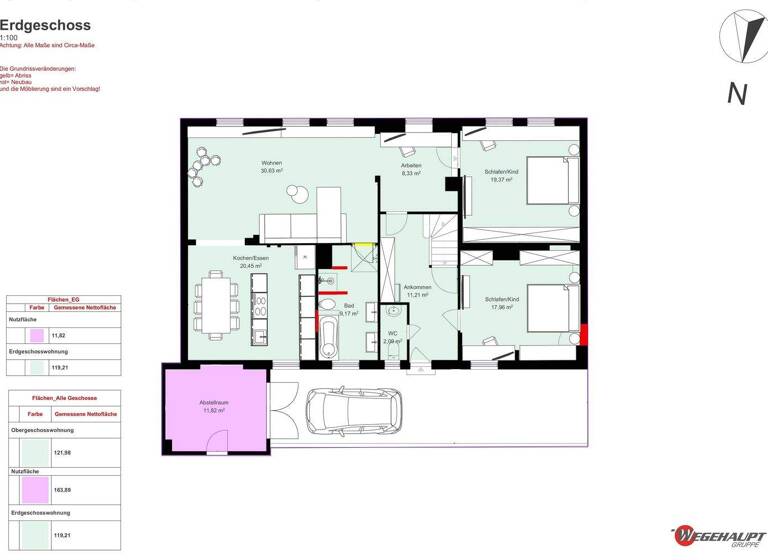
Grundrisse
Grundrisse
1 / 4
Virtueller Rundgang
3D tour

Realisiere Dein Projekt
Bausubstanz und Energie
Energieausweis
H
- Baujahr1903
- Zustand der Immobilierenovierungsbedürftig / sanierungsbedürftig
- HeizungsartOfen
- EnergieträgerKohle
Preisdetails
Kaufpreis
99000 €
409,09 €/m²
Provision für Käufer
3,57% (inkl. MwSt.) vom Kaufpreis
Die Käuferprovision in Höhe von 3,57% vom Kaufpreis inkl. MwSt. ist mit Abschluss des vermittelten notariellen Kaufvertrages verdient und fällig.
Die Käuferprovision in Höhe von 3,57% vom Kaufpreis inkl. MwSt. ist mit Abschluss des vermittelten notariellen Kaufvertrages verdient und fällig.
Weitere Preisinformationen
1 Stellplatz
Geschätzte Gesamtkosten
109.464 €1
Kaufpreis
99.000 €
Kaufnebenkosten
10.464 €
2Notarkosten (1,5%)
1.485 €
Grunderwerbsteuer (5%)
4.950 €
Provision für Käufer (3,57%)
3.534 €
Grundbucheintrag (0,5%)
495 €
1Der angezeigte Wert ist eine automatisch berechnete Schätzung von immowelt.
2Bei den Angaben handelt es sich um ortsübliche Werte. Individuelle Kosten können abweichen.
Lage

Salbke, Magdeburg (39122)
Der Anbieter hat die genaue Adresse nicht freigegeben
Weitere Informationen
Weitere Services
Lust auf eine Besichtigung?
Eine Frage zur Immobilie?
Über den Anbieter
WEGEHAUPT Immobilienmakler GmbHMaklerbüro
Cokturhof 5, 39218 Schönebeck
Partnerschaft
Herr Jürgen WegehauptDein Kontakt
Weitere Unterlagen
Online-ID: 2nf9l5l
Referenznummer: M 1358J

WEGEHAUPT Immobilienmakler GmbH
Bewertung: 4,9 von 5 Sternen
Wie zufrieden bist du mit dieser Seite (nicht mit der Immobilie selbst)?

