Version: 8.25.1Navigation überspringen
1.590.000 €
2.131 m² Grundstück
Immowelt logo

Grundstück zum Kauf
1590000 €
746 €/m²
2.131 m² Grundstück

GLOBAL INVEST SINSHEIM | Großes Baugrundstück mit viel Potenzial in Baiertal

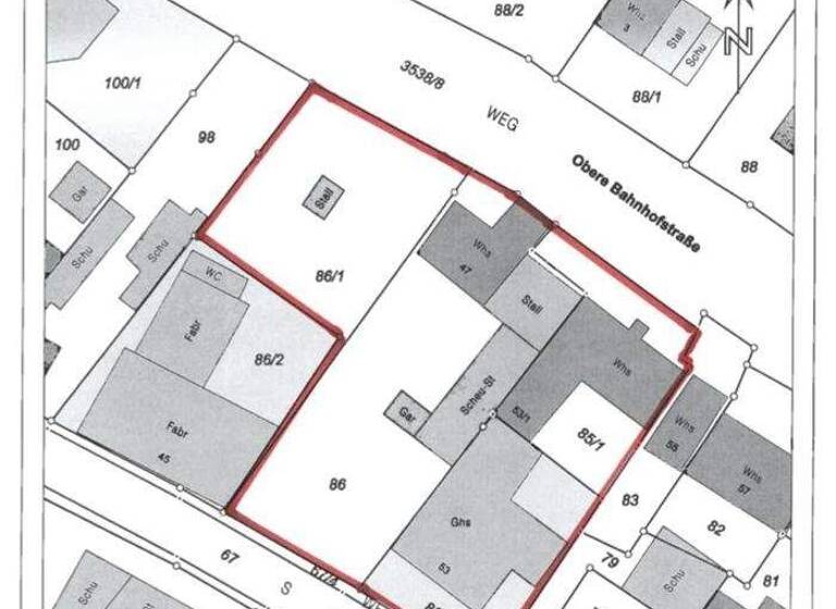
Das von uns angebotene Abrissgrundstück besteht aus zwei Flurstücken mit einer Fläche von insgesamt 1358 m2

Flurstück 86 mit einer Größe von 858 m2
Flurstück 86/1 mit einer Größe von 500 m2

Das Grundstück ist für Bauträger oder Familien interessant, die ein Mehrgenerationen-Projekt
verwirklichen wollen.

Mittlerweile gibt es für die oben genannten Grundstücke zwei Bauvoranfragen mit Reihen, Doppelhäuser sowie Geschossbau.
Gerne können wir Ihnen in einem persönlichen Gespräch darlegen, was genehmigungsfähig ist!

Mit dem heutigen Angebot erweitern wir den Bauplatz um die Flurstücke 85 & 85/1.

Somit stehen Ihnen insgesamt 2131 m² zur Bebauung zur Verfügung.

Wir möchten Sie außerdem darauf hinweisen, dass eine eigenmächtige Begehung des Grundstückes von Seiten der Eigentümer nicht erwünscht ist!

Merkmale

  • 2.131 m² Grundstück
  • voll erschlossen
+ vier Flurstücke mit einer Gesamtfläche von 2131 m2.

+ 86 & 86/1 gibt es schon Bauvoranfragen.

Grundrisse

Grundrisse
1 / 1

Realisiere Dein Projekt

Bausubstanz und Energie

Möchtest du Details zum Energieverbrauch?info_energy_calculation-icon
Immowelt logo

Preisdetails

Kaufpreis
1590000 €
746,13 €/m²
Provision für Käufer
4,76 %
Geschätzte Gesamtkosten
1.665.684 €1
Kaufpreis
1.590.000 €
Provision für Käufer (4,76%)
75.684 €
1Der angezeigte Wert ist eine automatisch berechnete Schätzung von immowelt.
2Bei den Angaben handelt es sich um ortsübliche Werte. Individuelle Kosten können abweichen.

Lage

address-icon
BaiertalWiesloch (69168)
Der Anbieter hat die genaue Adresse nicht freigegeben
Die Gemeinde Baiertal liegt in unmittelbarer Nähe zu Wiesloch. Die 4500 Einwohner umfassende Gemeinde ist gerade bei jungen Familien sehr beliebt, da Sie alles vor Ort finden was Sie zum täglichen Leben benötigen. Darüber hinaus hat Baiertal neben einer hervorragenden Infrastruktur auch ein reges Vereinsleben zu bieten.

Weitere Informationen

Sonstiges Anfragen stellen Sie bitte über unsere Homepage oder das Immobilienportal.

Die Provision ist mit Abschluss des notariellen Kaufvertrages verdient. Stichworte Distanz zum Kindergarten: 1.00, Distanz zur Grundschule: 1.00, Distanz zur Realschule: 4.00, Distanz zum Gymnasium: 5.00, Distanz zur Autobahn: 5.00, Distanz vom Zentrum: 1.00

Weitere Services

Lust auf eine Besichtigung?
Eine Frage zur Immobilie?
Nachricht hinzufügen
Mit der Nutzung der oben angegebenen Telefonnummer oder durch Klicken auf „Kontaktieren“ akzeptierst Du die Allgemeinen Nutzungsbedingungen, denen Du jederzeit widersprechen kannst. Weitere Informationen zum Datenschutz

Über den Anbieter

Freidrichstr. 12, 74889 Sinsheim
partner badge
3 Jahre Partnerschaft
Herr Mario Krompholz
Herr Mario KrompholzDein Kontakt
Online-ID: 26R2II91FIRC
Referenznummer: 352
GLOBAL INVEST
title
GLOBAL INVEST
Nachricht hinzufügen
Mit der Nutzung der oben angegebenen Telefonnummer oder durch Klicken auf „Kontaktieren“ akzeptierst Du die Allgemeinen Nutzungsbedingungen, denen Du jederzeit widersprechen kannst. Weitere Informationen zum Datenschutz
Wie zufrieden bist du mit dieser Seite (nicht mit der Immobilie selbst)?