Version: 8.26.0Navigation überspringen
285.000 €
4 Zimmer  •  104 m²  •  4. Geschoss
Immowelt logo

Penthouse zum Kauf
285000 €
2.540 €/m²
4 Zimmer  •  104 m²  •  4. Geschoss

Großzügige 4 – Zimmer Wohnung mit 2 Balkonen & Garage in Fellbach

Das 16-geschossige Hochhaus mit 48 Eigentumswohnungen und Tiefgaragen sowie Abstellplätzen liegt in der Esslinger Straße 142 am Rand von Fellbach. Das Objekt wurde im Jahr 1970 massiv erbaut. Geheizt wird durch eine ölbefeuerte Warmwasserzentralheizung mit zentraler Warmwasserbereitung. Der Öltank als Erdtank liegt außerhalb des Gebäudes. Die Heizungssteuerung wurde im Jahr 2025 erneuert. Die Heizkörper sind mit Wärmemesszählern versehen. Die Kunststoff-Fenster wurden zwischen den Jahren 1984-1994 in der Wohnung ausgetauscht und befinden sich in einem guten Zustand. Der Gesamtzustand der Wohnung ist gepflegt. Einzelne Renovierungsmaßnahmen sind je nach Anspruch erforderlich.

Merkmale

  • 4. Geschoss
  • Einbauküche
  • Personenaufzug
  • Keller
  • Garage
  • Bad/WC getrennt
  • Balkon
  • Gartenmitbenutzung

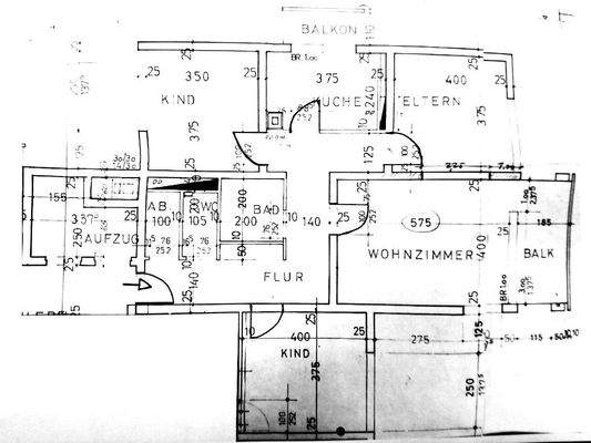
Grundrisse

Grundrisse
1 / 1

Bausubstanz und Energie

Energieausweis

D
  • Baujahr1970
  • HeizungsartZentralheizung
  • EnergieträgerÖl
Immowelt logo

Preisdetails

Kaufpreis
285000 €
2.540 €/m²
Hausgeld
719 €
Provision für Käufer
Käufermaklerprovision: 2,38 % inkl. 19 % MwSt.
Geschätzte Gesamtkosten
311.733 €1
Kaufpreis
285.000 €
Notarkosten (1,5%)
4.275 €
Grunderwerbsteuer (5%)
14.250 €
Provision für Käufer (2,38%)
6.783 €
Grundbucheintrag (0,5%)
1.425 €
1Der angezeigte Wert ist eine automatisch berechnete Schätzung von immowelt.
2Bei den Angaben handelt es sich um ortsübliche Werte. Individuelle Kosten können abweichen.

Lage

address-icon
Esslinger Straße 142Fellbach (70734)
Die Stadt Fellbach liegt an der nordöstlichen Stadtgrenze zu Stuttgart. Nach Waiblingen ist Fellbach die zweitgrößte Stadt des Rems-Murr-Kreises und bildet zusammen mit Waiblingen ein Mittelzentrum für die umliegenden Gemeinden. Fellbach war vor der Industrialisierung vor allem eine Weinbaustadt. Der Weinbau auf dem berühmten Kappelberg wird heute noch betrieben. In Fellbach gibt es neben den vielen Freizeitangeboten viel interessantes zu entdecken und anzuschauen. Für Familien eignet sich der Ort sehr gut. Verschiedene Buslinien und der S-Bahnanschluss tragen zu einer guten Erreichbarkeit bei. Alle Läden des täglichen Bedarfs, Schule und Ärzte sind fußläufig zu erreichen. Das neue Familien- und Freizeitbad F3 liegt ca. 10 Gehminuten entfernt.

Weitere Informationen

Sonstiges Sonstiges Zur Wohnung gehört eine abgeschlossene Garage und Kellerraum im UG. Die Garage verfügt über einen eigenen Stromzähler. Die Wohnung steht leer und ist nach Kaufpreiszahlung bezugsfähig. Käufermaklerprovision: 2,38 % inkl. 19 % MwSt. des beurkundeten Kaufpreis. TG Stellplatz Der TG-Stellplatz besitzt ein eigenes Grundbuch und ist im Verkaufspreis inbegriffen. !!! Hinweis Hausgeld !!!: Aufgrund hohem Heizungs- und Warmwasserbedarf bei der Mieter (4-5 Personen) wurde das Hausgeld nach oben angepasst. Die Wohnung steht jetzt leer. !!!Energieverbrauchskennwert: 110,9 kWh/(m²*a) Energieverbrauch für Warmwasser ist enthalten. Stichworte Zustand: renovierungsbedürftig, gepflegt Serviceleistungen: Hausmeister Heizungsart: Heizkoerper

Weitere Services

Lust auf eine Besichtigung?
Eine Frage zur Immobilie?
Nachricht hinzufügen
Mit der Nutzung der oben angegebenen Telefonnummer oder durch Klicken auf „Kontaktieren“ akzeptierst Du die Allgemeinen Nutzungsbedingungen, denen Du jederzeit widersprechen kannst. Weitere Informationen zum Datenschutz

Über den Anbieter

Süßener Straße 36, 70327 Stuttgart
Frau Susanne RinkerDein Kontakt

Weitere Unterlagen

Online-ID: 25QS39YXZBJ6
Referenznummer: SR 603.2 VK ETW
Wie zufrieden bist du mit dieser Seite (nicht mit der Immobilie selbst)?