Version: 8.26.0Navigation überspringen
370.000 €
2 Zimmer  •  62 m²  •  1. Geschoss  •  frei ab sofort
Immowelt logo

Wohnung zum Kauf
370000 €
5.968 €/m²
2 Zimmer  •  62 m²  •  1. Geschoss  •  frei ab sofort

Bezugsfreie, neuwertige 2 Zimmer Whg mit EBK in ruhiger zentraler Lage von Altenerding!

Zum Verkauf steht eine neuwertige, barrierefreie 2 Zimmer Wohnung in ruhiger und dennoch zentraler Lage von Altenerding.

Das Haus wurde im Jahr 2019 in ökologischer Ziegel-Massivbauweise erbaut und wird per energieeffizienter Pelletheizung beheizt.

In allen Räumen der Wohnung ist eine Fußbodenheizung mit einzelnen Thermostaten verlegt. Der Energieausweis der Wohnanlage weist einen Primärenergiebedarf von 19 KWh/m²a aus.

Die Wohnung hat einen großen überdachten Balkon in West Ausrichtung mit Blick in den Gartenbereich der Wohnanlage.

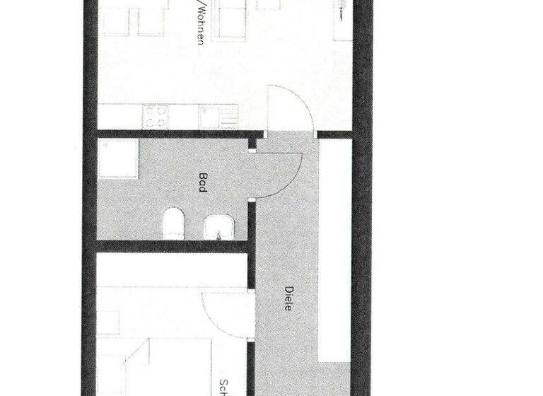
Die Aufteilung der Wohnung ist wie folgt:

- geräumiger Flur mit Zugang zum Aufzug des Hauses
- großer Wohn- und Essbereich mit offener Küche und Zugang zum Balkon
- moderne Einbauküche im Preis inbegriffen
- großer überdachter Westbalkon
- geräumiges Schlafzimmer mit schönem Ausblick
- großes Badezimmer mit bodenebener Dusche und Waschmaschinenanschluss

Aussen:
Der Wohnung ist ein großer Kellerraum im UG zugeordnet sowie ein Tiefgaragenstellplatz und ein Aussenstellplatz vor dem Haus. Die Gartenanlage ist für alle Bewohner frei zur gemeinschaftlichen Nutzung.

Merkmale

  • Bezug: sofort
  • 1. Geschoss
  • Einbauküche
  • Personenaufzug
  • Keller
  • 2 Stellplätze: Außen-Stellplatz, Tiefgarage
  • Balkon
  • Garten, Gartenmitbenutzung

Grundrisse

Grundrisse
1 / 1

Bausubstanz und Energie

Energieausweis

C
  • Baujahr2019
  • Zustand der ImmobilieNeubau
  • HeizungsartZentralheizung: Fußbodenheizung
  • EnergieträgerPellets
Immowelt logo

Preisdetails

Kaufpreis
370000 €
5.967,74 €/m²
Preis pro Stellplatz
12500 €
Hausgeld
224 €
Provision für Käufer
2,975%
Die Courtage in Höhe von 2,975% inkl. der gesetzlichen Mehrwertsteuer richtet sich nach dem beurkundeten Kaufpreis und ist bei Zustandekommen des notariellen Kaufvertrages fällig und verdient.
Geschätzte Gesamtkosten
401.376 €1
Kaufpreis
370.000 €
Notarkosten (1,5%)
5.550 €
Grunderwerbsteuer (3,5%)
12.950 €
Provision für Käufer (2,98%)
11.026 €
Grundbucheintrag (0,5%)
1.850 €
1Der angezeigte Wert ist eine automatisch berechnete Schätzung von immowelt.
2Bei den Angaben handelt es sich um ortsübliche Werte. Individuelle Kosten können abweichen.

Lage

address-icon
Herzogstandstrasse 64AltenerdingErding (85435)
Erding ist eine große Kreisstadt im gleichnamigen Landkreis im Regierungsbezirk Oberbayern. Sie liegt in der Planungsregion München etwa 30 km in nordöstlicher Richtung vom Münchner Stadtzentrum entfernt und 30km südwestlich von Landshut München. Der Flughafen München ist ca. 10km entfernt.

Die Wohnanlage liegt im Süden der Stadt im Stadtteil Altenerding. Einkaufsmöglichkeiten, öffentliche Einrichtungen sowie die S-Bahn Haltestelle Altenerding sind fußläufig erreichbar.

Weitere Informationen

Sonstiges Die Wohnung ist ab dem 01.05.2026 bezugsfertig.

Diese eignet sich ideal als Kapitalanlage oder zur Eigennutzung.

Besichtigungen nach Absprache jederzeit möglich.

Alle Angaben sind ohne Gewähr und basieren ausschließlich auf Informationen, die uns von unserem Auftraggeber übermittelt wurden. Wir übernehmen keine Gewähr für die Vollständigkeit, Richtigkeit und Aktualität dieser Angaben.

Es fällt bei notarieller Beurkundung eine Käuferprovision i.H.v. 2,975% inkl. MwSt. an.

Sie wollen selbst eine Immobilie verkaufen? Wir erstellen für Sie eine realistische Wertermittlung Ihrer Immobilie und stimmen unser Vermarktungskonzept individuell auf Sie ab.

Sie wollen selbst nicht verkaufen und kennen jemanden, der verkaufen möchte? Profitieren Sie von unserem Tippgebermodell:

https://klappas-immobilien.de/tippgeber-provision/

Wir freuen uns auf Ihre Kontaktaufnahme!

Weitere Services

Lust auf eine Besichtigung?
Eine Frage zur Immobilie?
Nachricht hinzufügen
Mit der Nutzung der oben angegebenen Telefonnummer oder durch Klicken auf „Kontaktieren“ akzeptierst Du die Allgemeinen Nutzungsbedingungen, denen Du jederzeit widersprechen kannst. Weitere Informationen zum Datenschutz

Über den Anbieter

Hochkalterstr 2A, 84405 Dorfen
partner badge
Partnerschaft
Nikolaos Klappas
Nikolaos KlappasDein Kontakt
Online-ID: 26JWKMF2VM8J
Wie zufrieden bist du mit dieser Seite (nicht mit der Immobilie selbst)?