Version: 8.26.0Navigation überspringen
massa haus - Yvonne Schwitters
489.530 €
5 Zimmer  •  140 m²  •  446 m² Grundstück

Einfamilienhaus zum Kauf - Erstbezug • provisionsfrei
489530 €
3.497 €/m²
5 Zimmer  •  140 m²  •  446 m² Grundstück

Hier entsteht euer neues Leben!

Dieses Haus bietet Platz für die ganze Familie. Schon im Eingangsbereich ist das Ankommen sehr offen und warm. Viel Licht dringt durch den offenen Treppenraum mit einer wunderschönen Treppe ein.

Der im Eingangsbereich anliegende Hauswirtschaftsraum ist ein großer Vorteil, der viel Platz zum Verstauen und Ankommen bietet. Ebenfalls im Erdgeschoss befindet sich euer schönes Eltern-Schlafzimmer, sowie ein Badezimmer, welches mit einer ebenerdigen, üppigen Dusche und einer Toilette sowie Handwaschbecken ausgestattet ist.

Der Wohn- und Essbereich hat genug Platz für die ganze Familie und natürlich macht das Einladen zum gemeinsamen Spiele-Abend mit Freunden und Familie viel Spaß, da es genug Sitzmöglichkeiten für alle gibt. Die anliegende schöne Küche hat auch ein kleines Extra zu bieten. Sie ist mit einem weiteren kleinen Raum zum Verstauen von zum Beispiel Lebensmitteln ausgestattet.

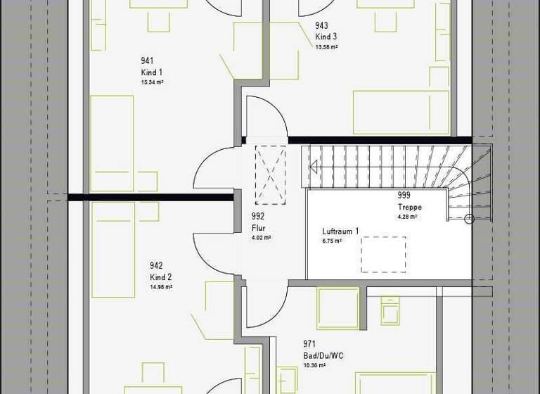
Im Obergeschoss befindet sich das Paradies für eure Kinder. Die Kinder haben mit den drei Kinderzimmern genug Platz und Möglichkeit sich zu Entfalten.

Auch auf der Ebene befindet sich ein Badezimmer mit einer zweiten ebenerdigen Dusche und einer großen Badewanne. Diese lädt zum Planschen mit den Kindern ein oder auch zu einem entspannten Bad am Abend.

Selbstverständlich könnt Ihr als massa - Baufamilie, Euer Traumhaus eine ganz individuelle Note verpassen. Dieser Grundrissvorschlag wird genau auf Euren Geschmack, Eure Wünsche und Eure Anforderungen angepasst.

Merkmale

  • 446 m² Grundstück
  • Barrierefrei
  • Gäste-WC
Dieses moderne, förderfähige Ausbauhaus ist bereits für Euch technisch Fertig ausgestattet. Enthalten sind bereits u.a. folgende Leistungen:

* modernes Heizsystem inkl. PV-Anlage für sparsames heizen
* inkl. Fußbodenheizung für eine perfekte Wärmeverteilung
* Lüftungsanlage mit Wärmerückgewinnung
* Solaranlage zur Warmwasserbereitung
* 3- Fach verglaste Kunststofffenster
* das Planungsgespräch mit unseren Architekten
* das Erstellen eines fachgerechten Bauantrags
* Bodenplatte inkl. Bodengutachten
* eine auswählbare Geschosstreppe
* Lieferung der Dämmung und Beplankung für den Trockenausbau
* Installation der gesamten Elektrotechnik
* Rohbauinstallation der Sanitäranlagen
* Fensterbänke außen montiert
* individuelle Eingangstür

Ob Technik-Paket oder Fast-Fertig-Option = Sie sind Bauherr, Sie entscheiden!

Informationen zu weiteren Ausbaupaketen erhalten Sie von mir...!

Yvonne Schwitters #massa haus
0176 666 97 817 (gern auch via WhatsApp)

Grundrisse

Grundrisse
1 / 2

Bausubstanz und Energie

Möchtest du Details zum Energieverbrauch?info_energy_calculation-icon
  • Baujahr2026
  • Zustand der ImmobilieNeubau, Erstbezug
  • HeizungsartFußbodenheizung
  • EnergieträgerLuft-/Wasser-Wärmepumpe
MediumRectangleTop

Preisdetails

Kaufpreis
489530 €
3.496,64 €/m²
Provision für Käufer
provisionsfrei
Geschätzte Gesamtkosten
523.798 €1
Kaufpreis
489.530 €
Notarkosten (1,5%)
7.343 €
Grunderwerbsteuer (5%)
24.477 €
Grundbucheintrag (0,5%)
2.448 €
1Der angezeigte Wert ist eine automatisch berechnete Schätzung von immowelt.
2Bei den Angaben handelt es sich um ortsübliche Werte. Individuelle Kosten können abweichen.

Lage

address-icon
Elsfleth (26931)
Der Anbieter hat die genaue Adresse nicht freigegeben
Das Grundstück mit einer Altimmobilie befindet sich im alten Stadtkern der Stadt gelegen. In unmittelbarer Nachbarschaft befinden sich sowohl reine Wohnhäuser wie auch Wohn- und Geschäftshäuser mit Ärzten, Apotheken, Steuerberatern, Rechtsanwälten, oder Handwerksbetrieben.

Kurze Wege zur Jade Hochschule, sowie dem Bahnhof mit stündlichen Abfahrten, sowohl in Richtung Bremen wie auch Nordenham.

Auch Freizeiteinrichtungen wie Yachthafen, Tennis- oder Fußballplatz, Fahrrad- und Spazierwege sind in kurzer Entfernung erreichbar.

Das Grundstück, ist im Preis enthalten, wird allerdings von euch als neue Besitzer erworben. Bei der Vermittlung zu diesem Bauplatz unterstütze ich euch sehr gerne.

Noch kein passendes Grundstück?
Nutzt meinen individuellen Grundstücksservice und werdet Bauherr/in.

Kontaktaufnahme gerne unter:
Yvonne Schwitters
017666697817 &/ WhatsApp

Weitere Informationen

Sonstiges Ihr seid gespannt, wie euer Eigenheim aussehen kann?

Sichert euch einen individuellen Termin, um sich das Musterhaus in Delmenhorst genauer anzuschauen.

In dem Zuge berate ich euch natürlich kostenlos gerne, und gehe auf eure Wünsche und Fragen ein.

Ihr könnt mich unter der folgender Telefonnummer erreichen: 0176 666 97 817.

Musterhaus Delmenhorst
Annenheider Allee 116, 27751 Delmenhorst

Ich freu mich auf Euch!

Yvonne Schwitters

massa haus- Yvonne Schwitters - https://www.massa-haus.de/verkaeufer/yvonne-schwitters/

DSGVO - https://www.massa-haus.de/datenschutzerklaerung/ Stichworte Nutzfläche: 140,00 m², Anzahl der Schlafzimmer: 3, Anzahl der Badezimmer: 2, 2 Etagen Sonstiges: Neubaustandard

Weitere Services

Lust auf eine Besichtigung?
Eine Frage zur Immobilie?
Nachricht hinzufügen
Mit der Nutzung der oben angegebenen Telefonnummer oder durch Klicken auf „Kontaktieren“ akzeptierst Du die Allgemeinen Nutzungsbedingungen, denen Du jederzeit widersprechen kannst. Weitere Informationen zum Datenschutz

Über den Anbieter

Annenheider Straße 166a, 27755 Delmenhorst
Frau Yvonne SchwittersDein Kontakt
Online-ID: 26FHP7NMAMGT
Referenznummer: 3571-440-kw09-9845
MediumRectangleTop
Wie zufrieden bist du mit dieser Seite (nicht mit der Immobilie selbst)?