Haus zum Kauf297000 €297.000 €4.414 €/m²
2 Zimmer • 67,3 m² • 237 m² Grundstück
Erstbezug - Saniertes Haus mit Garten zu verkaufen!
Zum Verkauf gelangt dieses neu sanierte Haus mit Garten in 2601 Sollenau - Bezirk Wiener Neustadt.
Das Gebäude wurde gerade komplett hochwertig saniert + wäre sofort beziehbar.
- neue Fassade
- neues Aluminium Dach
- neue Elektrik Heizkörper + zusätzliche Fußbodenheizung im Vorzimmer + im Badezimmer
- neues Badezimmer mit edlen Fliesen + Waschtisch Spiegelschrank
- neue Elektrik, neue Vinylböden + neue Türen + hochwertige Fliesen
- neue Einbauküche inklusive Geräte
Die Liegenschaft teilt sich wie folgt auf -
Außenbereich
- Hofeinfahrt / Stellplätze für Pkw
- Innenhof
- Garten mit Mauer umrandet / Gebäudezubau - Möglichkeit: nach Abstimmung mit dem Bauamt
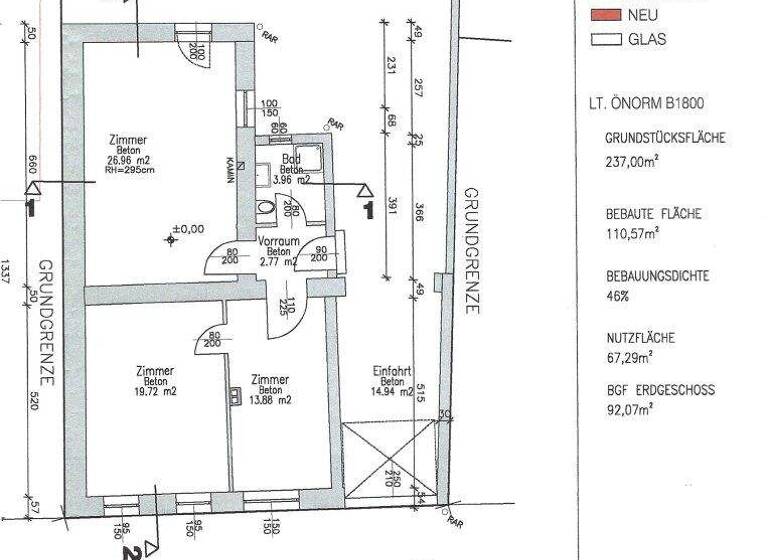
- Haus mit einer Wohnfläche von 67,29m2
- Vorzimmer 2,77m2
- Badezimmer mit Dusche + WC inkl. Waschmaschinenanschluss 3,96m2
- neue Einbauküche inkl. Essbereich 13,88m2
- Schlafzimmer 19,72m2
- Wohnzimmer 26,96m2 mit Ausgang in den Garten inkl. Vorbereitung für Schwedenofen
- Rohdachboden
Vereinbaren Sie Ihre persönliche Besichtigung.
Ihre Immobilienträume.
Unser Ziel!
www.realbrokers.at
Infrastruktur / Entfernungen
Gesundheit
Arzt <1.225m
Apotheke <1.800m
Krankenhaus <9.250m
Kinder & Schulen
Schule <175m
Kindergarten <250m
Höhere Schule <9.850m
Universität <6.575m
Nahversorgung
Supermarkt <475m
Bäckerei <750m
Einkaufszentrum <4.125m
Sonstige
Bank <200m
Geldautomat <200m
Post <250m
Polizei <750m
Verkehr
Bus <125m
Bahnhof <175m
Autobahnanschluss <3.150m
Flughafen <6.150m
Angaben Entfernung Luftlinie / Quelle: OpenStreetMap
Merkmale
Badezimmer: Bad mit Dusche, Bad mit Fenster Bodenbelag: Fliesen, Kunststoff
Bausubstanz und Energie
Gesamtenergieeffizienz (fGEE)
Der Anbieter hat keine Daten zum Energieausweis hinterlegt.
Zustand der Immobilierenoviert / saniert
HeizungsartFußbodenheizung
Preisdetails
297000 €297.000 €4.413,73 €/m²
3% des Kaufpreises zzgl. 20% USt.
Lage

Kirchengasse 4, Sollenau (2601)
nähe Baden - Wiener Neustadt
Weitere Informationen
Stichworte
Carport vorhanden, Rolladen, Anzahl der Badezimmer: 1, Anzahl der separaten WCs: 1, Bundesland: Niederösterreich, modernisiert: 2025
Lust auf eine Besichtigung?
Eine Frage zur Immobilie?
Über den Anbieter
Braitnerstraße 41 Büro 1A, 2500 BADEN
Herr Harald EbnerDein Kontakt
Online-ID: 252J1TQSXG1G
Referenznummer: OBGC202512010917371272b69b66015
Wie zufrieden bist du mit dieser Seite (nicht mit der Immobilie selbst)?