Moderne Mietwohnung in der Bremer-Neustadt - Wentzel Dr.
Im Herzen eines lebendigen Stadtteils gelegen, vereint dieses Wohnensemble am Buntentorsteinweg 171-183 modernes Wohnen mit hoher Alltagstauglichkeit und durchdachter Architektur. Die im Jahr 2016 errichtete Wirtschaftseinheit umfasst zwei separate Wohngebäude mit insgesamt 109 Wohneinheiten, die durch ihre zeitgemäße Architektur und funktionale Grundrisse überzeugen.
Jede Einheit verfügt über großzügige Außenflächen wie Balkone, Terrassen oder Loggien, die zusätzlichen Wohnkomfort und private Rückzugsorte im Freien bieten. Im Erdgeschoss befindet sich eine gut eingebundene Gewerbefläche, die von einem Rewe Supermarkt genutzt wird - ein klarer Vorteil für die tägliche Nahversorgung direkt vor Ort.
Abgerundet wird das Objekt durch eine Tiefgarage, die den Bewohnerinnen und Bewohnern bequemes und geschütztes Parken ermöglicht. Die Kombination aus moderner Ausstattung, praktischer Lage und durchdachtem Wohnkonzept macht dieses Objekt besonders attraktiv für unterschiedlichste Mietergruppen.
Merkmale
frei ab sofort
Erdgeschoss
Einbauküche
Personenaufzug
Kelleranteil
Terrasse
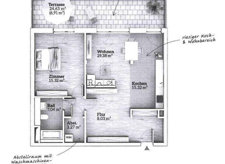
Diese großzügige 2-Zimmer-Erdgeschosswohnung überzeugt durch einen durchdachten Grundriss, helle Räume und eine hochwertige Ausstattung. Mittelpunkt der Wohnung ist der offen gestaltete Wohn- und Essbereich mit Parkettboden, der ein angenehmes und modernes Wohnambiente schafft. Die offen zum Wohnzimmer gelegene Einbauküche ist funktional ausgestattet und verfügt über eine Geschirrspülmaschine.
Das Schlafzimmer bietet ausreichend Platz und ermöglicht - ebenso wie der Wohnbereich - den direkten Zugang zur großzügigen Terrasse. Diese lädt zum Entspannen ein und erweitert den Wohnraum ins Freie.
Zusätzlichen Stauraum bietet ein Abstellraum innerhalb der Wohnung, der zugleich mit einem Waschmaschinenanschluss ausgestattet ist. Darüber hinaus steht ein separater Kellerraum zur Verfügung.
Das innenliegende Badezimmer ist modern gestaltet und verfügt über eine Badewanne.
Zur Wohnung gehört ein Tiefgaragenstellplatz, der verpflichtend für einen monatlichen Mietzins in Höhe von 91,00 EUR zusätzlich anzumieten ist.
Grundrisse
Grundrisse
1 / 1
Realisiere Dein Projekt
Bausubstanz und Energie
Energieausweis
B
Baujahr2016
Zustand der ImmobilieGepflegt
Mietkosten
Warmmiete
1.442 €
Kaltmiete
13,61 €/m²
1.204 €
Nebenkosten
238 €
Heizkosten
115 €
Kaution
3612 €3.612 €
Weitere Preisinformationen
Nettokaltmiete: 1.204,00 EUR
Lage
Buntentorsteinweg 173, Buntentor, Bremen (28201)
Der Buntentorsteinweg befindet sich in der Bremer Neustadt und ist hervorragend an das öffentliche Nahverkehrsnetz angebunden. Entlang der Straße verkehren mehrere Straßenbahnlinien, insbesondere die Linien 4 und 6, die eine direkte Verbindung in die Bremer Innenstadt sowie zu anderen Stadtteilen bieten. Zusätzlich gibt es mehrere Buslinien, die durch die angrenzenden Straßen führen und so eine flexible Mobilität innerhalb des Stadtteils und darüber hinaus gewährleisten. Über die Kornstraße und die Neuenlander Straße erreicht man die Autobahn A281 in wenigen Minuten, die eine schnelle Verbindung zur A1 bietet. Der Buntentorsteinweg und das umliegende Buntentorviertel eignen sich ideal für Familien, da sich zahlreiche Schulen und Kindergärten in der Nähe befinden. Die Einkaufsmöglichkeiten sind vielfältig und decken den täglichen Bedarf umfassend ab. Mehrere Supermärkte, darunter Filialen von EDEKA, REWE und ALDI, befinden sich in unmittelbarer Nähe und sind bequem zu Fuß oder mit dem Fahrrad erreichbar.
Weitere Informationen
Sonstiges
Bei Mietvertragsabschluss wird ein Kündigungsausschluss von 1 Jahr sowie eine Indexmiete vereinbart. Der neue Energieausweis ist bereits beantragt und wird bei Vorlage nachgereicht.
Stichworte
Anzahl Terrassen: 1