Himmlisch wohnen - ein architektonisches Meisterstück für Visionäre!
Treten Sie ein in eine Immobilie, die inspiriert - mit Geschichte, Vision und einzigartigem Charakter
Das ehemalige Kirchengebäude mit seinen imposanten Raumhöhen, filigranen Stuckverzierungen und farbenprächtigen Buntglasfenstern lädt dazu ein, Neues zu erschaffen und dabei den Zauber des Bestehenden zu bewahren.
Hier bietet sich Ihnen die Chance, ein Stück Baukunst in ein stilvolles Wohnprojekt zu verwandeln. Ob exklusive Lofts, moderne Maisonettes oder großzügige Familienwohnungen - die besondere Atmosphäre und die architektonischen Merkmale schaffen ein unverwechselbares Wohnerlebnis.
Erste Gespräche mit dem Bauamt sind geführt - die Weichen sind gestellt.
Ergänzt wird das Ensemble durch eine charmante 2-Zimmer-Wohnung im Erdgeschoss mit sonniger Terrasse und ruhigem Gartenbereich - ideal für den Morgenkaffee mit Blick ins Grüne. Im Dachgeschoss begeistert die lichtdurchflutete 5-Zimmer-Wohnung mit weitläufiger Dachterrasse - hier wird Wohnen zum Genuss.
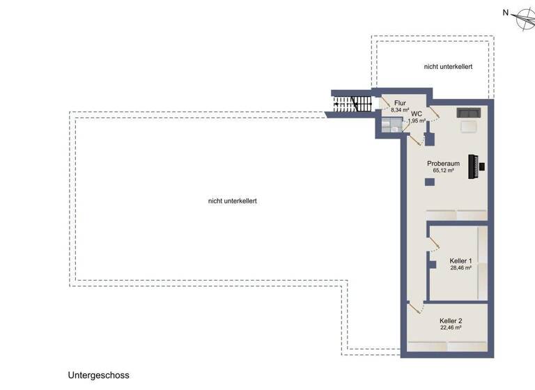
Ein kleines Büro sowie ein Proberaum runden das Nutzungsspektrum ab - perfekt für Kreative, Freiberufler oder als individuelle Homeoffice-Lösung. Ob Eigennutzung, Teilverkauf oder umfassendes Entwicklungsprojekt: Diese Immobilie ist wie gemacht für Menschen mit Sinn für das Besondere und einem Gespür für nachhaltige Investitionen.
Merkmale
Bezug: Kirche sofort frei
716 m² Grundstück
Kelleranteil
2 Stellplätze: 2 Tiefgaragenstellplätze
Garten
Terrasse
offener Kamin
Denkmalschutz-Afa
.Denkmalgeschützte ehemalige Lutherkirche mit Projektentwicklungspotenzial .2007 nach WEG aufgeteilt und saniert - ideale Voraussetzung für Wohnungsverkauf .Grundstücksfläche ca. 716?m² .Eindrucksvolle Raumhöhen und prachtvolle Stuckdecken .Originale, farbintensive Buntglasfenster mit Wow-Effekt .Eleganter Fischgrätenparkett in Bestzustand .2-Zimmer-Wohnung mit Terrasse und eigenem Gartenanteil .Große 5-Zimmer-Studiowohnung mit XXL-Dachterrasse .Büroeinheit ideal für ruhiges Arbeiten im Homeoffice .Bandproberaum mit kreativem Flair und Schallschutz .2007 umfassend modernisiert - gepflegter Zustand .Gespräche/Begehung mit dem Denkmalamt zur Projektentwicklung wurden bereits geführt .Zentrale Lage in Durlach-Aue - hervorragende Infrastruktur .Alle Einheiten außer der Kirche sind vermietet - sofortige Einnahmen .Ideal für Investoren mit Vision oder Mehrgenerationennutzung .Kombination aus Altbaucharme & modernen Standards
Grundrisse
Grundrisse
1 / 4
Realisiere Dein Projekt
Bausubstanz und Energie
Energieausweis
Ein Energieausweis ist für diesen Gebäudetyp nicht notwendig.
1Der angezeigte Wert ist eine automatisch berechnete Schätzung von immowelt.
2Bei den Angaben handelt es sich um ortsübliche Werte. Individuelle Kosten können abweichen.
Lage
Durlach, Karlsruhe / Durlach / Aue (76227)
Der Anbieter hat die genaue Adresse nicht freigegeben
Karlsruhe zählt zu den gefragtesten Wohn- und Wirtschaftsstandorten im süddeutschen Raum. Als innovativer Technologie- und Hochschulstandort bietet die Stadt eine hohe Lebensqualität, starke Wirtschaftskraft und eine ideale Verkehrsanbindung.
Die Nähe zu den Städten Stuttgart, Heidelberg und Straßburg sowie eine exzellente Anbindung an das Autobahn- und Bahnnetz machen die Region attraktiv für Berufspendler und Investoren.
Die Immobilie liegt im beliebten Stadtteil Durlach-Aue - einem charmanten Quartier mit urbaner Infrastruktur und hohem Freizeitwert. Umgeben von gewachsenen Wohnstrukturen, kleinen Cafés, Schulen und Parks erleben Sie hier eine entspannte Nachbarschaftskultur mit kurzen Wegen. Die Straßenbahn ist fußläufig erreichbar, ebenso wie Einkaufsmöglichkeiten, Schulen und Sportanlagen. Gleichzeitig bieten die nahegelegenen Rheinauen und der Turmberg naturnahe Erholung direkt vor der Tür.
Weitere Informationen
Sonstiges
Angaben und Haftungsvorbehalt: Alle Angaben in diesem Exposé wurden mit großer Sorgfalt zusammengestellt und auf ihre Korrektheit überprüft. Eine Haftung für Irrtümer (z. B. bei Flächen- / Maßangaben) wird dennoch ausgeschlossen. Im Exposé enthaltene Illustrationen und Fotos sind teilweise als Vorschläge, Entwürfe und Muster zu verstehen und nicht als wesentliche Elemente im Sinne der Baubeschreibung. Sie repräsentieren den Planungsstand zum Zeitpunkt der Drucklegung. Grundrissillustrationen können z. B. Sonderausstattungen enthalten. Maßgebend für Erwerber ist die Baubeschreibung sowie die Objektbeschreibung in der Teilungserklärung.
Gender-Hinweis: Die in diesem Exposé, auf unserer Webseite sowie in unseren Social Media-Kanälen gewählte männliche Form bezieht sich stets gleichermaßen auf weibliche, männliche und diverse Personen. Auf geschlechterspezifische Schreibweise und Mehrfachbezeichnungen wird ausschließlich zum Zweck der besseren Lesbarkeit verzichtet. Sämtliche personenbezogene Bezeichnungen in all unseren Publikationen sind somit geschlechtsneutral zu verstehen.
Stichworte
Nutzfläche: 522,00 m², vermietbare Fläche: 722,00 m², Anzahl Terrassen: 2, Anzahl der Wohneinheiten: 2, Anzahl der Gewerbeeinheiten: 3