

Loft zum Kauf • provisionsfrei233 m²
233 m²
Exklusives Loft in Chamberí
Merkmale
- Bezug: Ab sofort
- Badewanne
- voll klimatisiert
- Alarmanlage
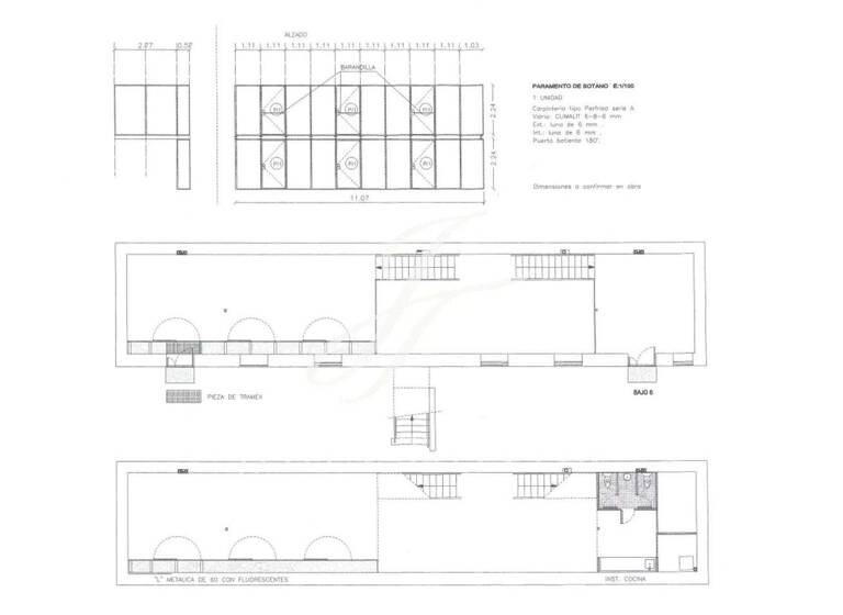
Grundrisse
Grundrisse
1 / 2
Realisiere Dein Projekt
Bausubstanz und Energie
Möchtest du Details zum Energieverbrauch?

- Baujahr1930
- Zustand der ImmobilieAltbau (bis 1945), Gepflegt
- HeizungsartOfen
Preisdetails
Provision für Käufer
provisionsfrei
Lage

Madrid (28015)
Der Anbieter hat die genaue Adresse nicht freigegeben
Weitere Informationen
Weitere Services
Lust auf eine Besichtigung?
Eine Frage zur Immobilie?
Über den Anbieter
Place des Moulins, 98000 MONACO
Partnerschaft
John Taylor Madrid Salamanca John Taylor Madrid SalamancaDein Kontakt
Online-ID: 26J6NQKFBGED
Referenznummer: V0606MA
John Taylor Corporate
Wie zufrieden bist du mit dieser Seite (nicht mit der Immobilie selbst)?

