Version: 8.25.1Navigation überspringen
250.000 €
9 Zimmer  •  160 m²  •  552 m² Grundstück
Immowelt logo

Einfamilienhaus zum Kauf
250000 €
1.563 €/m²
9 Zimmer  •  160 m²  •  552 m² Grundstück

Haus mit viel Platz für Familie und Hobbies

Das hier angebotene Haus wurde ca. 1929 massiv mit zwei Vollgeschossen und ausgebautem Dachgeschoss errichtet und 1996 um einen Anbau erweitert. So bietet es im Erdgeschoss die Möglichkeit nahezu barrierefrei auf einer Ebene zu wohnen und die beiden oberen Etagen als zusätzliche Kinder- und Schlafzimmer zu nutzen. Im Anbau befindet sich außerdem ein als Gästeappartement oder Homeoffice nutzbarere Raum mit Duschbad en Suite.
Die beiden oberen Etagen des Hauses sind schon seit vielen Jahren nicht mehr bewohnt, sondern werden nur als Abstellflächen genutzt. Hier ist eine Modernisierung erforderlich. Die Gaszentralheizung ist so dimensioniert, dass sie auch diese beiden Etagen mit beheizen kann, lediglich die Verrohrung und Heizkörper müssen noch angebracht werden.
Insgesamt stehen ca. 160 m² Wohnfläche zzgl. die Flächen im Anbau (ca. 25 m²) Appartement) zu Verfügung.
Der Garten ist nach Süd-Osten ausgerichtet, bietet ausreichend Stellplätze für Ihre PKW und eine gemütliche Gartenhütte zum Beisammensein.
Gerne stellen wir Ihnen dieses vielseitig nutzbare Haus mit sehr viel Platz für eine große Familie im Rahmen einer ausführlichen Besichtigung vor.

Merkmale

  • Bezug: kurzfristig
  • 552 m² Grundstück
  • Keller
  • Bodenbelag: Fliesen, Laminat
  • Balkon
  • Garten
  • 3 Stellplätze
Dacheindeckung in Naturschiefer erneuert 2006, Gaszentralheizung 1996 und Holzofen im Erdgeschoss und Anbau. Duschbad aus 1996. Bodenbeläge Laminat, PVC, Dielen und Fliesen, Kunststofffenster, isolierverglast 1996, Elektroinstallation Haus ca. 1978, Anbau 1996, neues Badezimmer 2006.

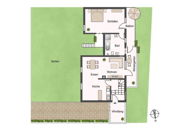
Grundrisse

Grundrisse
1 / 3

Virtueller Rundgang

3D tour

Realisiere Dein Projekt

Bausubstanz und Energie

Energieausweis

H
  • Baujahr1929
  • Zustand der ImmobilieMassivhaus, Gepflegt
  • HeizungsartZentralheizung
  • EnergieträgerGas, Holz
Immowelt logo

Preisdetails

Kaufpreis
250000 €
1.562,50 €/m²
Provision für Käufer
3,57 % inkl. MwSt.
Geschätzte Gesamtkosten
276.425 €1
Kaufpreis
250.000 €
Notarkosten (1,5%)
3.750 €
Grunderwerbsteuer (5%)
12.500 €
Provision für Käufer (3,57%)
8.925 €
Grundbucheintrag (0,5%)
1.250 €
1Der angezeigte Wert ist eine automatisch berechnete Schätzung von immowelt.
2Bei den Angaben handelt es sich um ortsübliche Werte. Individuelle Kosten können abweichen.

Lage

address-icon
Hillscheid (56204)
Der Anbieter hat die genaue Adresse nicht freigegeben
Die Gemeinde Hillscheid liegt etwa ca. zehn Kilometer nordöstlich von Koblenz am Rande des Naturparks Nassau. Höhr-Grenzhausen und den A 48 Anschluss Richtung Koblenz, Montabaur, Frankfurt, Köln erreichen Sie in wenigen Minuten. In Hillscheid befinden sich neben zwei Kindergärten die Grundschule, ein Supermarkt mit Bäckerei, Eisdiele, Pizzeria und eine hausärztliche Praxis.

Weitere Informationen

Stichworte Stellplatz vorhanden, Anzahl der Schlafzimmer: 7, Anzahl der Badezimmer: 2, Anzahl Balkone: 1, Bundesland: Rheinland-Pfalz, 2 Etagen

Weitere Services

Lust auf eine Besichtigung?
Eine Frage zur Immobilie?
Nachricht hinzufügen
Mit der Nutzung der oben angegebenen Telefonnummer oder durch Klicken auf „Kontaktieren“ akzeptierst Du die Allgemeinen Nutzungsbedingungen, denen Du jederzeit widersprechen kannst. Weitere Informationen zum Datenschutz

Über den Anbieter

Neumarkt 1, 57627 Hachenburg
partner badge
6 Jahre Partnerschaft
Frau Alexandra Salzer
Frau Alexandra SalzerDein Kontakt
Online-ID: 26BS2SW7ZH81
Referenznummer: 4 195 3
Immobiliengesellschaft der Westerwald Bank mbH
title
Immobiliengesellschaft der Westerwald Bank mbH
Bewertung: 4,6 von 5 Sternen
Nachricht hinzufügen
Mit der Nutzung der oben angegebenen Telefonnummer oder durch Klicken auf „Kontaktieren“ akzeptierst Du die Allgemeinen Nutzungsbedingungen, denen Du jederzeit widersprechen kannst. Weitere Informationen zum Datenschutz
Wie zufrieden bist du mit dieser Seite (nicht mit der Immobilie selbst)?