Version: 8.22.6Navigation überspringen
Raiffeisen Immobilien Vermittlung GmbH
994.800 €
5 Zimmer  •  123 m²  •  5. Geschoss

Wohnung zum Kauf
994800 €
8.086 €/m²
5 Zimmer  •  123 m²  •  5. Geschoss

Hochwertige 5-Zimmer-Wohnung auf N°1-Standard

Kurzbeschreibung Zentral gelegen, bestens angebunden und zukunftssicher gedacht - ein Projekt im Herzen von Schwechat. Objekt Am zentralen Standort Hauptplatz 1 wird ein modernes Neubauprojekt mit einer ausgewogenen Kombination aus Wohnen, Büro und Handel realisiert. Hier entsteht ein zukunftsorientiertes Immobilienensemble mit etwa 7.600 m² Gesamtnutzfläche, das urbanes Leben und wirtschaftliche Nutzung optimal verbindet. Durch optimal geplante Grundrisse, die zentrale Lage und ein ausgewogenes Preis-Leistungs-Verhältnis eignet sich das Projekt gleichermaßen für Eigennutzer:innen wie auch für Anleger:innen.
Die Wohnungen im Projekt N°1 Schwechat überzeugen durch hochwertige Ausstattung und effizient geplante Grundrisse. Großzügige Fensterflächen, langlebige Materialien sowie moderne Heiz- und Kühltechnik sorgen für hohen Wohnkomfort und ein angenehmes Raumklima. Je nach Wohnung stehen private Freiflächen wie Balkon, Loggia, Terrasse oder Garten zur Verfügung.
Die Lage überzeugt durch ihre hervorragende Infrastruktur: Einkaufsmöglichkeiten, Gastronomie, der Bahnhof Schwechat sowie zahlreiche Einrichtungen des täglichen Lebens befinden sich in unmittelbarer Gehweite. Ergänzt wird das Angebot durch nahegelegene Erholungsflächen und ein gewachsenes städtisches Umfeld.
Dank der Nähe zur S1 und A4 ist der Standort bestens an das regionale Verkehrsnetz angebunden. Der Flughafen Wien-Schwechat ist in wenigen Minuten erreichbar, zentrale Wiener Verkehrsknotenpunkte wie Hauptbahnhof oder Wien-Mitte in rund 15 Minuten. Zusätzlich stärkt die geplante Verlängerung der Straßenbahnlinie 72 die öffentliche Anbindung nachhaltig.
Der Baustart ist für Q3/2026 vorgesehen. Mit einer geplanten Bauzeit von 24 bis 26 Monaten entsteht ein wertstabiles Projekt in einer der dynamischsten Lagen im Wiener Umland.

Merkmale

  • Bezug: Nach Vereinbarung
  • 5. Geschoss
  • Terrasse

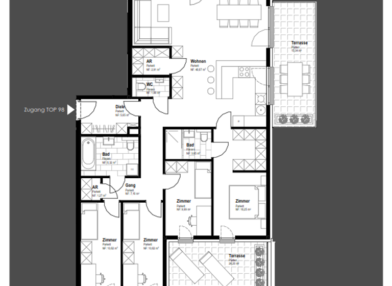
Grundrisse

Grundrisse
1 / 1

Realisiere Dein Projekt

Bausubstanz und Energie

Heizwärmebedarf (HWB)

A

Gesamtenergieeffizienz (fGEE)

  • Baujahr2026
  • HeizungsartZentralheizung
  • EnergieträgerFernwärme, Luft-/Wasser-Wärmepumpe
MediumRectangleTop

Preisdetails

Kaufpreis
994800 €
8.085,83 €/m²
Provision für Käufer
3% des Kaufpreises plus 20% USt.
Weitere Preisinformationen

Alle Wohnungen können auch als Anlegerwohnungen gekauft werden.Kaufpreis Anleger ab: EUR 895.400,- zzgl. 20% USt.
Optional kann ein Garagenparkplatz erworben werden.Kaufpreis - Eigennutzer: EUR 25.500,-Kaufpreis - Anleger: EUR 23.587,50 zzgl. 20% USt.

Lage

address-icon
Schwechat (2320)
Der Anbieter hat die genaue Adresse nicht freigegeben
Das Projekt befindet sich in absoluter Zentrumslage von Schwechat am Hauptplatz 1, einem der markantesten und belebtesten Standorte der Stadt. Sämtliche Einrichtungen des täglichen Bedarfs - Einkaufsmöglichkeiten, Gastronomie, Ärzte, Schulen und Kindergärten - sind bequem fußläufig erreichbar. Der Bahnhof Schwechat sowie das Einkaufszentrum Schwechat liegen nur wenige Gehminuten entfernt.
Die Verkehrsanbindung ist ausgezeichnet: Durch die unmittelbare Nähe zur Schnellstraße S1 und zur Ostautobahn A4 ist eine schnelle Erreichbarkeit des Wiener Stadtgebiets sowie des regionalen Umlands gewährleistet. Der Flughafen Wien-Schwechat ist in rund 5 Fahrminuten, zentrale Wiener Verkehrsknotenpunkte wie Wien Hauptbahnhof oder Wien-Mitte in etwa 15 Minuten erreichbar.
Zusätzlich profitiert der Standort von einer sehr guten öffentlichen Anbindung. Der Bahnhof Schwechat bietet direkte Verbindungen in die Bundeshauptstadt, während die geplante Verlängerung der Straßenbahnlinie 72 von der U3-Station Simmering nach Schwechat die Standortqualität künftig weiter erhöht. Die Nähe zum Wiener Bezirk Simmering sowie die Kombination aus urbaner Infrastruktur und naturnaher Umgebung machen die Lage besonders attraktiv für Wohnen, Arbeiten und Investieren.

Weitere Informationen

Stichworte Anzahl der Schlafzimmer: 4, Anzahl der Badezimmer: 1, Anzahl der separaten WCs: 1, Anzahl Terrassen: 1, Bundesland: Niederösterreich

Weitere Services

Lust auf eine Besichtigung?
Eine Frage zur Immobilie?
Nachricht hinzufügen
Mit der Nutzung der oben angegebenen Telefonnummer oder durch Klicken auf „Kontaktieren“ akzeptierst Du die Allgemeinen Nutzungsbedingungen, denen Du jederzeit widersprechen kannst. Weitere Informationen zum Datenschutz

Über den Anbieter

F.-W.-Raiffeisen-Platz 1/ 4.OG, 1020 WIEN, STADT
partner badge
Partnerschaft
Herr Adi GashiDein Kontakt

Weitere Unterlagen

Online-ID: 2nl2t5e
Referenznummer: 00010111780098
Raiffeisen Immobilien Vermittlung GmbH
Raiffeisen Immobilien Vermittlung GmbH
Bewertung: 4,3 von 5 Sternen
Nachricht hinzufügen
Mit der Nutzung der oben angegebenen Telefonnummer oder durch Klicken auf „Kontaktieren“ akzeptierst Du die Allgemeinen Nutzungsbedingungen, denen Du jederzeit widersprechen kannst. Weitere Informationen zum Datenschutz
MediumRectangleTop
MediumRectangleBottom
MediumRectangleTop
Wie zufrieden bist du mit dieser Seite (nicht mit der Immobilie selbst)?