Exclusive Wohnanlage mit Erdwärmeheizung !!!Bereits fertiggestellt!!!
9-Familienhaus mit 2-, 3- und 4-Zimmerwohnungen mit groĂźen Balkonen, Terrassen und Gartenanteilen
Die Highlights
•Niedrige Nebenkosten durch zukunftsweisende Gebäudetechnik (Erdwärme, Wohnungslüftung mit Wärmerückgewinnung) •Behindertengerecht mit Aufzug •Einzelraumgesteuerte Fußbodenheizung •Vorbereitung für Wallbox •Exclusive Ausstattung •Bäder mit Badewanne und Dusche •Duschen mit Glasduschwänden •3 und 4 Zimmer Wohnungen mit Gäste WC •3 und 4 Zimmer Wohnungen Schlafzimmer mit Ankleide •Abstellräume in den Wohnungen •3-fach Wärmeschutzverglasung, bodentiefe Fenster im Wohnbereich •Große Hebe-Schiebetüre im Wohnzimmer •Elektrische Rollos •Glasfaseranschluss •Videosprechanlage •Große Keller •Garagen mit elektrischem Torantrieb und Dachbegrünung •Garten mit Rasenansaat •Oberflächenwasserversickerung
Merkmale
Bezug: 2025
Erdgeschoss
Personenaufzug
Kelleranteil
2 Stellplätze: Garage, Außen-Stellplatz
Bad/WC getrennt, Gäste-WC
Garten
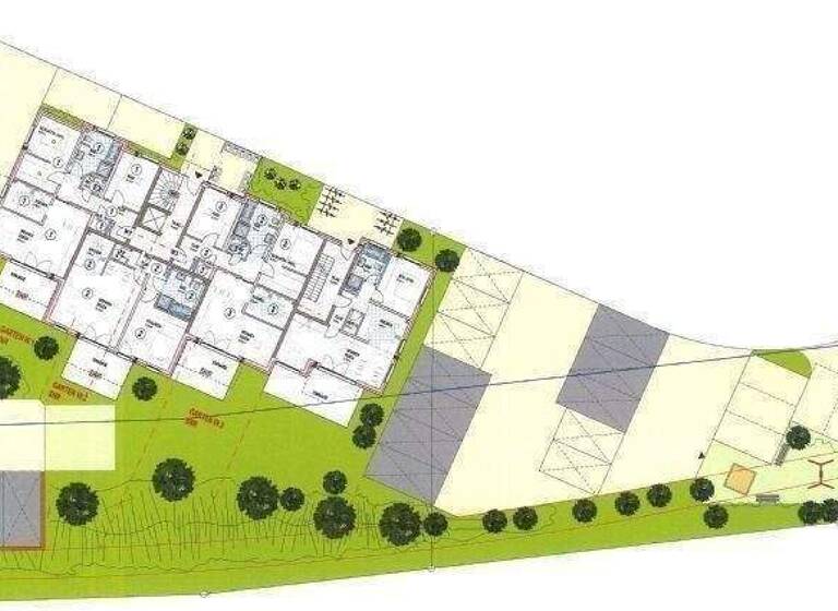
Grundrisse
Grundrisse
1 / 2
Realisiere Dein Projekt
Bausubstanz und Energie
Energieausweis
A+
Baujahr2023/2024
HaustypKfW 40
HeizungsartZentralheizung: FuĂźbodenheizung
EnergieträgerErdwärme
Preisdetails
Kaufpreis
599800 €599.800 €
6.274,06 €/m²
Provision für Käufer
PROVISIONSFREI
Geschätzte Gesamtkosten
654.202 €1
Kaufpreis
599.800 €
Kaufnebenkosten
54.402 €
2
Notarkosten (1,5%)
8.997 €
Grunderwerbsteuer (3,5%)
20.993 €
Provision für Käufer (3,57%)
21.413 €
Grundbucheintrag (0,5%)
2.999 €
1Der angezeigte Wert ist eine automatisch berechnete Schätzung von immowelt.
2Bei den Angaben handelt es sich um ortsübliche Werte. Individuelle Kosten können abweichen.
Lage
Flurstraße 20, Feucht (90537)
Die Marktgemeinde Feucht mit ihren ca. 14.000 Einwohnern besticht in der Metropolregion Nürnberg durch ihre sehr gute Infrastruktur und eine hervorragende Verkehrsanbindung. Genießen Sie die Vorzüge eines ruhigen, historischen Ortes in unmittelbarer Nähe zur Metropolregion Nürnberg. Feucht liegt direkt an der A9 Berlin-München, der A73 (Stadtautobahn) und der A6 Heilbronn. Nürnberg erreicht man mit dem Auto in ca. 20 Fahrminuten. Feucht verfügt über 2 S-Bahnstationen und einen Bahnhof. Die Fahrzeit zum Hauptbahnhof Nürnberg beträgt nur 9 Minuten. Die Fahrzeit nach Neumarkt beträgt 23 Minuten. Das Zentrum von Feucht mit Fachgeschäften, Gaststätten, Restaurants, Banken, Ärzten ist ca. 15 Gehminuten entfernt. Einkaufsmöglichkeiten (Bäcker, Supermarkt) sind ca. 8 Gehminuten entfernt.
Vor Ort befinden sich Kindertagesstätten, Kindergärten, Kinderkrippen, eine Grund-, eine Mittel- sowie eine Realschule. Gymnasien befinden sich in Nürnberg und Altdorf. Der die Marktgemeinde umschließende Lorenzer Reichswald bietet vielfältige Freizeitmöglichkeiten. Ein Freibad sowie mehrere Sportvereine bieten eine Vielzahl von Sportmöglichkeiten.