

Wohnung zum Kauf - Erstbezug • provisionsfrei315193 €4.150 €/m²3 Zimmer • 76 m²
315193 €
4.150 €/m²
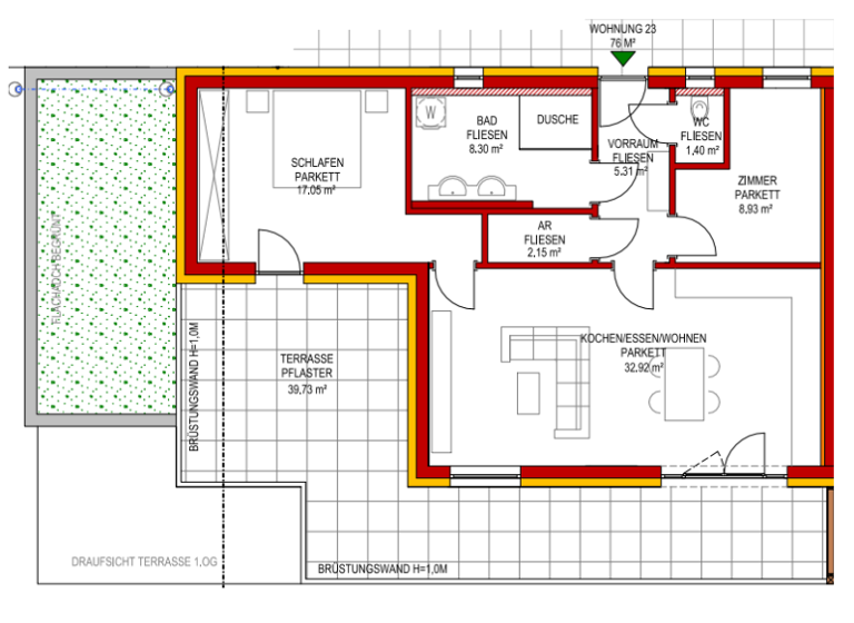
3 Zimmer • 76 m²
BAUSTART 01.04.2026 - Exklusive Penthouse-Eigentumswohnung (75m²) mit großer Terrasse und Lift in Fürstenfeld! Provisionsfrei!
Merkmale
- Bezug: Anfang 2027
- Personenaufzug
- Carport
- Terrasse
- Barrierefrei
- Bodenbelag: Fliesen, Parkett
Grundrisse
Grundrisse
1 / 2
Realisiere Dein Projekt
Bausubstanz und Energie
Der Anbieter hat keine Informationen zum Energieverbrauch bereit gestellt.
- Baujahr2026
- Zustand der ImmobilieNeubau, Erstbezug
- HeizungsartFußbodenheizung
- EnergieträgerLuft-/Wasser-Wärmepumpe
Preisdetails
Kaufpreis
315193 €
4.150,01 €/m²
Provision für Käufer
provisionsfrei
Weitere Preisinformationen
1 Carportplatz
Lage

Fürstenfeld (8280)
Weitere Informationen
Weitere Services
Lust auf eine Besichtigung?
Eine Frage zur Immobilie?
Über den Anbieter
Augustinerplatz 7, 8280 FÜRSTENFELD
Partnerschaft
Felix LienhartDein Kontakt
Online-ID: 2n73u5f
Referenznummer: 5028/738107

connexa Vermögens-, Versicherungs- und Finanzierungsberatung GmbH
Wie zufrieden bist du mit dieser Seite (nicht mit der Immobilie selbst)?
