Version: 8.26.0Navigation überspringen
213.000 €
2 Zimmer  •  54,6 m²  •  1. Geschoss
Immowelt logo

Wohnung zum Kauf - Erstbezug
213000 €
3.898 €/m²
2 Zimmer  •  54,6 m²  •  1. Geschoss

NEUBAU 2- Zimmer Eigentumswohnung, in der Gemeinde Prackenbach, Bay. Wald - PROVISIONSFREI - !!!

Dieses Neubauprojekt verbindet modernes, nachhaltiges Wohnen mit einer angenehmen, ruhigen Wohnlage. Die Kombination aus kompakter Hausgröße, großzügigem Grundstück und moderner Ausstattung macht die Immobilie sowohl für Eigennutzer als auch für Kapitalanleger äußerst attraktiv.

Auf einem 793 m² großen Grundstück in der Gemeinde Prackenbach, entsteht ein modernes Mehrfamilienhaus im energiesparenden KfW 55 EE-Standard.
Das Haus umfasst nur sieben Wohneinheiten, was für eine ruhige Wohnatmosphäre sorgt. Beheizt wird das Gebäude durch eine moderne Luft/Wasser-Wärmepumpe, effizient und zukunftsorientiert.

Die voraussichtliche Fertigstellung inkl. Außenanlagen ist für Juli 2026 geplant.

Der Erwerb ist für den Käufer provisionsfrei!!!

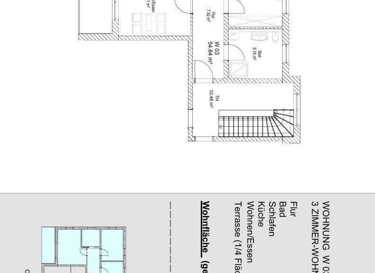
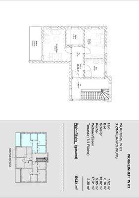
Die helle und großzügig geschnittene 2- Zimmer Wohnung mit ca. 54,64 m² Wohnfläche, befindet sich im 1. Obergeschoss.
Auch hier überzeugt die Aufteilung mit offenem Wohn-/Essbereich, Schlafzimmer, Küche und Tageslichtbad. Der nach Süden ausgerichtete Balkon ist vom Wohn- und Essbereich aus zu begehen.

Alle Wohnungen sind mit Fußbodenheizung, elektrischen Rollläden sowie EDV-Anschlüssen ausgestattet. Eine dezentrale Lüftungsanlage sorgt für ein angenehmes Raumklima. Die Bäder sind standardmäßig mit bodengleichen Duschen ausgestattet.

Zu jeder Wohnung gehört ein separater Abstellraum im zugehörigen Nebengebäude.

Die Wohnungen werden schlüsselfertig übergeben.

Kaufpreis: 213.000 € inkl. Stellplatz für Wohnung Nr. 3 und Einbauküche.

Optional kann ein weiterer Kfz-Stellplatz für 5.000 € erworben oder eine Garage für 50 €/mtl. angemietet werden.

Detaillierte Unterlagen wie die Baubeschreibung und eine Preisliste stellen wir Ihnen auf Anfrage gerne zur Verfügung.

Nutzen Sie diese Gelegenheit und vereinbaren einen Besichtigungstermin mit uns!!

Merkmale

  • 1. Geschoss
  • Balkon
  • Außen-Stellplatz
- Effizienzhaus- Stufe KFW 55 EE-Standard
- Fenster: Dreischeiben-Wärmeschutzverglasung (lt. Baubeschreibung)
- Dezentrale Lüftungsanlage (lt. Baubeschreibung)
- effiziente Luft/Wasser-Wärmepumpe (lt. Baubeschreibung)
- Fußbodenheizung in allen Räumen (lt. Baubeschreibung)
- Schalter und Steckdosen lt. Baubeschreibung
- elektrische Rollläden (lt. Baubeschreibung)
- Tageslichtbad mit Barrierefreier Dusche
- Böden (lt. Baubeschreibung)
- ein Balkon
- Glasfaser für jede Wohnung bereits vorhanden
- separater Abstellraum (Nebengebäude)
- ein Kfz-Stellplatz im Kaufpreis enthalten
- Optional kann ein weitere Kfz-Stellplatz für 5.000 € erworben oder eine Garage für 50 €/mtl. angemietet werden

Grundrisse

Grundrisse
1 / 2

Bausubstanz und Energie

Energieausweis

A+
  • Baujahr2025
  • Zustand der ImmobilieErstbezug
  • HeizungsartFußbodenheizung
  • EnergieträgerLuft-/Wasser-Wärmepumpe
Immowelt logo

Preisdetails

Kaufpreis
213000 €
3.898,24 €/m²
Provision für Käufer
Bitte beachte, das Angebot kann bei Vertragsabschluss die Zahlung einer Provision beinhalten. Weitere Informationen erhältst Du vom Anbieter.
Weitere Preisinformationen
1 Stellplatz
Geschätzte Gesamtkosten
232.319 €1
Kaufpreis
213.000 €
Notarkosten (1,5%)
3.195 €
Grunderwerbsteuer (3,5%)
7.455 €
Provision für Käufer (3,57%)
7.604 €
Grundbucheintrag (0,5%)
1.065 €
1Der angezeigte Wert ist eine automatisch berechnete Schätzung von immowelt.
2Bei den Angaben handelt es sich um ortsübliche Werte. Individuelle Kosten können abweichen.

Lage

address-icon
Prackenbach (94267)
Der Anbieter hat die genaue Adresse nicht freigegeben
Prackenbach ist eine Gemeinde mit rund 2.800 Einwohnern im Landkreis Regen und liegt somit im beliebten Naturpark Bayerischer Wald.
Zahlreiche Erholungs- und Freizeitmöglichkeiten bieten hier ein traumhaftes Wohnumfeld und machen den Ort begehrt für Naturfreunde, Urlauber und Menschen, die dem städtischen Trubel entfliehen wollen. Eine für den täglichen Bedarf ausreichende Infrastruktur ist durch ein Lebensmittelgeschäft bzw. einen Bäcker und eine Bank vor Ort gegeben.
Im ca. 10 Autominuten entfernten Viechtach finden sich weitere Einkaufsmöglichkeiten, eine Grund-und Mittelschule sowie ein Gymnasium.
Die Gemeinde liegt direkt an der Bundesstraße 85 und ist ca. eine halbe Stunde mit dem Auto von Straubing, Deggendorf oder Cham entfernt.

Weitere Informationen

Sonstiges Provisionsfrei für den Käufer.

BITTE BEACHTEN SIE:
Anfragen können nur mit den Angaben der nachfolgenden Daten bearbeitet werden!
- VOLLSTÄNDIGE ADRESSE
- TELEFONNUMMER
- EMAIL-ADRESSE


BITTE BEACHTEN SIE:
Anfragen können nur mit den Angaben der nachfolgenden Daten bearbeitet werden!
- VOLLSTÄNDIGE ADRESSE
- TELEFONNUMMER
- EMAIL-ADRESSE Stichworte Nutzfläche: 3,16 m², Anzahl der Badezimmer: 1, Anzahl Balkone: 1, 3 Etagen

Weitere Services

Lust auf eine Besichtigung?
Eine Frage zur Immobilie?
Nachricht hinzufügen
Mit der Nutzung der oben angegebenen Telefonnummer oder durch Klicken auf „Kontaktieren“ akzeptierst Du die Allgemeinen Nutzungsbedingungen, denen Du jederzeit widersprechen kannst. Weitere Informationen zum Datenschutz

Über den Anbieter

Ringstraße 14, 94234 Viechtach
partner badge
10 Jahre Partnerschaft
Herr Jürgen Holzapfel
Herr Jürgen HolzapfelDein Kontakt
Online-ID: 25KRRDE3UY67
Referenznummer: JH-2025-98-3
Wie zufrieden bist du mit dieser Seite (nicht mit der Immobilie selbst)?