Version: 8.24.0Navigation überspringen
263.340 €
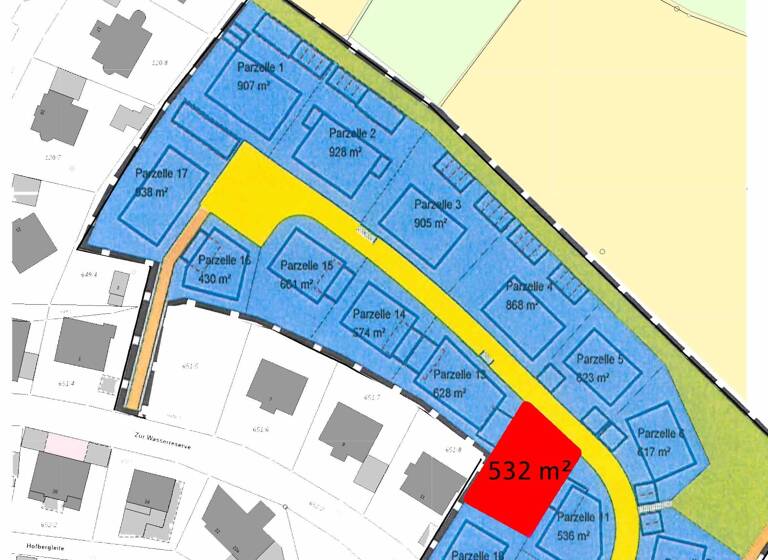
532 m² Grundstück
Immowelt logo

Grundstück zum Kauf
263340 €
495 €/m²
532 m² Grundstück

Baugrundstück für ein Einfamilienhaus im Neubaugebiet in exponierter Lage über Mainburg

Kurzbeschreibung Verwirklichen Sie hier Ihren Traum von Ihrem neuen zu Hause Objekt - Bei diesem Grundstück ist die Bebauung mit einem Einfamilienhaus zulässig
- Der Rohbau muss innerhalb von 10 Jahren und die Fertigstellung 13 Jahre nach Erschließung erfolgen
- Es dürfen max. 2 Vollgeschosse plus Pultdach mit einer Dachneigung von 8 - 10 Grad, einem Satteldach mit 16 bis 22 Grad oder einem Flachdach errichtet werden
- die maximale Wandhöhe darf 6,00 Meter sein
- Die maximale GRZ liegt bei 0,4 und die GFZ bei 0,7
- Es sind zwei Stellplätze ( Garage, Carport) zu errichten
- Eine Zisterne mit ca. 5m³ Retetionsvolumen ist bereits auf dem Grundstück vorhanden
- Das Grundstück weist eine Neigung von Nord nach Süd von ca. 2 Meter auf
- Das Gebäude darf auch unterkellert werden
- Das Grundstück ist bereits voll Erschlossen und verfügt auch über einen Revisionsschacht für das Schmutzwasser
- Den kompletten Bebauungsplan können sie gerne bei uns anfordern

Merkmale

  • 532 m² Grundstück

Grundrisse

Grundrisse
1 / 1

Realisiere Dein Projekt

Bausubstanz und Energie

Der Anbieter hat keine Informationen zu Energieverbrauch oder Zustand der Immobilie bereit gestellt.
Immowelt logo

Preisdetails

Kaufpreis
263340 €
495 €/m²
Provision für Käufer
3,57 % inkl. MwSt.
Geschätzte Gesamtkosten
272.741 €1
Kaufpreis
263.340 €
Provision für Käufer (3,57%)
9.401 €
1Der angezeigte Wert ist eine automatisch berechnete Schätzung von immowelt.
2Bei den Angaben handelt es sich um ortsübliche Werte. Individuelle Kosten können abweichen.

Lage

address-icon
Mainburg (84048)
Der Anbieter hat die genaue Adresse nicht freigegeben
Das Grundstück befindet sich in einer ruhigen und gewachsenen Wohngegend von Mainburg in einem kleinen aber feinen Neubaugebiet mit einem wunderbaren Fernblick über die Dächer von Mainburg. Die Stadt verfügt über eine sehr gute Infrastruktur mit zahlreichen Geschäften des täglichen Bedarfs (Aldi, Lidl und Co.). Kindergärten, Grund- und Mittelschule, Realschule sowie ein Gymnasium sind ebenso vorhanden wie auch eine Reihe von Haus- und Fachärzten sowie ein Krankenhaus. Wer die Natur liebt und die Ruhe und Entspannung sucht, der ist in der Hopfenmetropole sehr gut aufgehoben, denn Mainburg verfügt über eine Vielzahl von Rad- und Wanderwegen in die umliegenden Wälder und Fluren der wunderschönen Holledau, welche direkt an das Baugebiet angrenzen.

Weitere Informationen

Stichworte Bundesland: Bayern

Weitere Services

Lust auf eine Besichtigung?
Eine Frage zur Immobilie?
Nachricht hinzufügen
Mit der Nutzung der oben angegebenen Telefonnummer oder durch Klicken auf „Kontaktieren“ akzeptierst Du die Allgemeinen Nutzungsbedingungen, denen Du jederzeit widersprechen kannst. Weitere Informationen zum Datenschutz

Über den Anbieter

Schäfflerstraße 3, 93309 Kelheim
partner badge
10 Jahre Partnerschaft
Herr Hans Ziegler
Herr Hans ZieglerDein Kontakt
Online-ID: 2hxmk5x
Referenznummer: 1/20/064-064/010288
Kreissparkasse Kelheim in Vertretung der Sparkassen-Immobilien-Vermittlungs-GmbH
title
Kreissparkasse Kelheim in Vertretung der Sparkassen-Immobilien-Vermittlungs-GmbH
Bewertung: 4,5 von 5 Sternen
Nachricht hinzufügen
Mit der Nutzung der oben angegebenen Telefonnummer oder durch Klicken auf „Kontaktieren“ akzeptierst Du die Allgemeinen Nutzungsbedingungen, denen Du jederzeit widersprechen kannst. Weitere Informationen zum Datenschutz
Wie zufrieden bist du mit dieser Seite (nicht mit der Immobilie selbst)?