Version: 8.24.0Navigation überspringen
465.000 €
4 Zimmer  •  130 m²  •  262 m² Grundstück
Immowelt logo

Einfamilienhaus zum Kauf
465000 €
3.577 €/m²
4 Zimmer  •  130 m²  •  262 m² Grundstück

Schönes modernes Haus bei Pottendorf!

Zum Verkauf steht dieses moderne, Einzelhaus in Siegersdorf Gemeinde Pottendorf (Bezirk Baden).

Beschreibung:

Dieses hochwertige Haus wurde in Ziegelmassivbauweise errichtet und erstreckt sich über ein Grundstück von ca. 262 m². Die Wohnfläche von ca. 130 m² verteilt sich wie folgt:

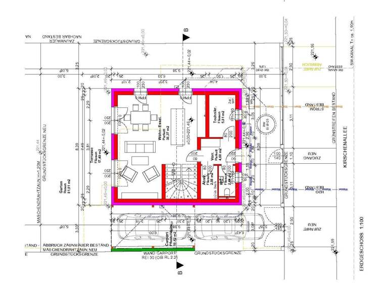
Erdgeschoss:

Vorraum (4,60 m²)

Abstellraum (2,0 m²)

Technikraum (5,81 m²)

Wohnzimmer mit offener Küche (38,37 m²)

Bad/WC (3,52 m²)

Obergeschoss:

Gang (3,68 m²)

Bad/WC (9,50 m²)

Elternschlafzimmer (13,70 m²)

Kinderzimmer 1 (14,71 m²)

Kinderzimmer 2 (12,72m²)

Diese durchdachte Wohneinheit bietet alles, was für ein modernes und entspanntes Wohngefühl in den eigenen vier Wänden benötigt wird.

Zur Ausstattung belagsfertig PLUS gehören:

* Ziegelmassivbauweise mit Baumeisterqualität
* 25er Ziegel mit 20 cm EPS-Vollwärmeisolierung
* Einfriedung
* Moderne Heizung und Warmwasseraufbereitung mittels Luftwärmepumpe
* Kunststofffenster mit Alu Clips Anthrazit, 3-fach verglast, mit Außenrollos
* Carport
* Weiße Außenfassade
* 2 frostfeste Wasserhähne bei Carport, Garten und Terrasse
* Vorbereitung für Wallbox unter dem Carport für Elektroautos
* Verputzte und weiß ausgemalte Innenwände
* Vorbereitung für EDV- und Sat-Anschluss in allen Wohnräumen
* Blitzschutzanlage
* Eingebauter Schornstein mit Möglichkeit eines Einbaukamins
* Stiegenbeleuchtung
* Müllnischen

Eine großzügige Terrasse rundet dieses Angebot ab.

Das Haus wird als belagsfertig angeboten und bietet ausreichend Spielraum um Böden, Fliesen usw. nach persönlichen Vorlieben einzubringen.

In unmittelbarer Nähe in Pottendorf finden Sie eine gute Infrastruktur mit Schulen, Kindergärten, Einkaufsmöglichkeiten usw. Darüber hinaus gibt es zahlreiche Freizeitangebote, die jedes Herz höherschlagen lassen, wie Wandern, Radfahren, Reiten, Tennis, Fußball, Golf. Die Region ist durch den Verkehrsbund Ost sehr gut an das öffentlichen Verkehrsnetz angebunden. Zugverbindung nach Wien. Der Bahnhoff Pottendorf-Landegg verfügt über eine Park & Ride Anlage. Auch mit dem Auto ist man über die A3 rasch in Wien und Eisenstadt.

Für weitere Informationen oder zur Vereinbarung eines unverbindlichen Besichtigungstermin stehe ich gerne zur Verfügung.

Infrastruktur / Entfernungen

Gesundheit
Arzt <2.500m
Apotheke <2.500m
Klinik <7.000m

Kinder & Schulen
Kindergarten <2.500m
Schule <2.500m

Nahversorgung
Supermarkt <2.000m
Bäckerei <2.500m

Sonstige
Bank <2.500m
Geldautomat <2.500m
Post <2.500m
Polizei <2.500m

Verkehr
Bus <500m
Bahnhof <3.000m
Autobahnanschluss <4.000m

Angaben Entfernung Luftlinie / Quelle: OpenStreetMap

Merkmale

  • 262 m² Grundstück
  • offene Küche
  • 2 Stellplätze: 2 Außen-Stellplätze
  • Gäste-WC
  • Terrasse
  • Badezimmer: Badewanne, Bad mit Dusche, Bad mit Fenster
  • voll erschlossen

Grundrisse

Grundrisse
1 / 2

Realisiere Dein Projekt

Bausubstanz und Energie

Heizwärmebedarf (HWB)

B

Gesamtenergieeffizienz (fGEE)

Der Anbieter hat keine Daten zum Energieausweis hinterlegt.
  • Baujahr2025
  • Zustand der ImmobilieNeubau, Massivhaus
  • HeizungsartFußbodenheizung
  • EnergieträgerLuft-/Wasser-Wärmepumpe
Immowelt logo

Preisdetails

Kaufpreis
465000 €
3.576,92 €/m²
Provision für Käufer
3% des Kaufpreises zzgl. 20% USt.
Weitere Preisinformationen
2 Stellplätze

Lage

address-icon
Siegersdorf (2486)

Weitere Informationen

Stichworte Carport vorhanden, Süd-Ost-Balkon/Terrasse, Rolladen, Nutzfläche: 150,00 m², Anzahl der Badezimmer: 1, Anzahl der separaten WCs: 2, Anzahl Terrassen: 1, Balkon-Terrassen-Fläche: 17,49 m², Bundesland: Niederösterreich

Weitere Services

Lust auf eine Besichtigung?
Eine Frage zur Immobilie?
Nachricht hinzufügen
Mit der Nutzung der oben angegebenen Telefonnummer oder durch Klicken auf „Kontaktieren“ akzeptierst Du die Allgemeinen Nutzungsbedingungen, denen Du jederzeit widersprechen kannst. Weitere Informationen zum Datenschutz

Über den Anbieter

Braitnerstraße 41 Büro 1A, 2500 BADEN
partner badge
Partnerschaft
Frau Flora PeichlerDein Kontakt
Online-ID: 2nezt5n
Referenznummer: OBGC2026022522040513225d4d6108b
realbrokers immobilien dienstl. GmbH & Co KG
Bewertung: 4,6 von 5 Sternen
Nachricht hinzufügen
Mit der Nutzung der oben angegebenen Telefonnummer oder durch Klicken auf „Kontaktieren“ akzeptierst Du die Allgemeinen Nutzungsbedingungen, denen Du jederzeit widersprechen kannst. Weitere Informationen zum Datenschutz
Wie zufrieden bist du mit dieser Seite (nicht mit der Immobilie selbst)?