

Einfamilienhaus zum Kauf298700 €3.915 €/m²2 Zimmer • 76,3 m² • 548 m² Grundstück
298700 €
3.915 €/m²
2 Zimmer • 76,3 m² • 548 m² Grundstück
Wochenendhaus bei Rostock | www.LUTTER.net
Merkmale
- 548 m² Grundstück
- Keller
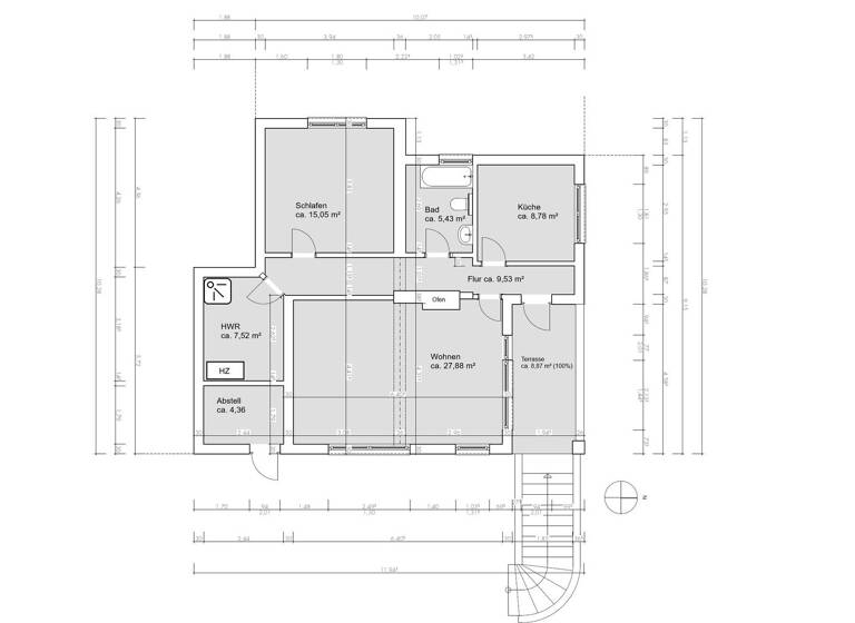
Grundrisse
Grundrisse
1 / 2
Realisiere Dein Projekt
Bausubstanz und Energie
Energieausweis
C
- Baujahr1997
- EnergieträgerGas
Preisdetails
Kaufpreis
298700 €
3.914,81 €/m²
Provision für Käufer
2,38 % vom Kaufpreis inkl. MwSt.
Geschätzte Gesamtkosten
329.706 €1
Kaufpreis
298.700 €
Kaufnebenkosten
31.006 €
2Notarkosten (1,5%)
4.481 €
Grunderwerbsteuer (6%)
17.922 €
Provision für Käufer (2,38%)
7.109 €
Grundbucheintrag (0,5%)
1.494 €
1Der angezeigte Wert ist eine automatisch berechnete Schätzung von immowelt.
2Bei den Angaben handelt es sich um ortsübliche Werte. Individuelle Kosten können abweichen.
Lage

Papendorf (18059)
Der Anbieter hat die genaue Adresse nicht freigegeben
Weitere Informationen
Weitere Services
Lust auf eine Besichtigung?
Eine Frage zur Immobilie?
Ăśber den Anbieter
Kröpeliner Straße 57, 18055 Rostock
Herr Mathias SteinDein Kontakt
Online-ID: 2mqk959
Referenznummer: 8054

LUTTER Immobilien Unternehmensgesellschaft mbH
Bewertung: 4,8 von 5 Sternen
Wie zufrieden bist du mit dieser Seite (nicht mit der Immobilie selbst)?

