Version: 8.25.1Navigation überspringen
449.900 €
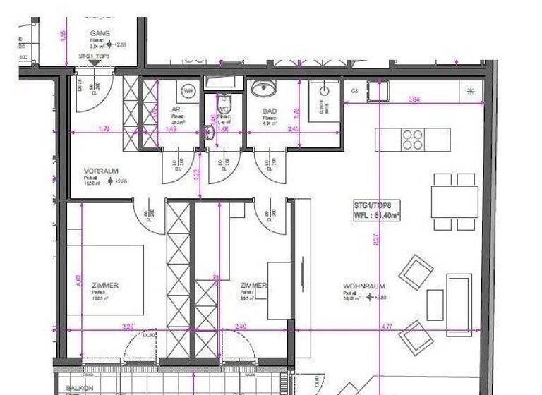
3 Zimmer  •  81,4 m²
Immowelt logo

Wohnung zum Kauf
449900 €
5.214 €/m²
3 Zimmer  •  81,4 m²

Ihr Rückzugsort im Grünen charmante 3-Zimmer-Wohnung nahe der Donau! ERSTBEZUG!

Diese moderne 3-Zimmer-Wohnung mit Balkon in der Erzherzog-Karl-Straße ist ein attraktives Investment in den lebenswerten 22. Bezirk.
Die Wohnung (ca. 81 m²) befindet sich im 1. Obergeschoss eines modernen Neubaus aus dem Jahr 2020. Sie besticht mit dem tollen, südwestseitigen ca. 10 m² großen Balkon. Die begehrte Lage sichert hervorragende Perspektiven für eine nachhaltige Wertsteigerung.

Die Ausstattungs-Highlights:
- Kunststoff-Alu-Fenster mit 3-fach-Isolierverglasung
- Innentüren aus Holz und einbruchshemmende Wohnungseingangstüren
- Parkettböden in Eiche Landhausdiele CHALE 190
- Feinsteinzeug-Fliesen im Format 30 × 60 cm
- Sanitärmöbel von LAUFEN und Armaturen von GROHE
- Digitale Videogegensprechanlage
- Elektrische, außenliegende Raffstores an allen Fenstern
- Wasser- und Stromanschlüsse auf allen Balkonen und Terrassen
- Hochwertige Steinbeläge auf sämtlichen Außenflächen
- Luftwärmepumpe mit Fußbodenheizung
- Großzügige Tiefgarage mit E-Ladevorbereitung
- Aufzug in alle Stockwerke
- Klimaanlage im 2. Dachgeschoss installiert, im 1. Dachgeschoss vorbereitet
- Modernes Wohnkonzept für höchste Ansprüche an Komfort, Design und Nachhaltigkeit
- Attraktive Freiflächen mit Blick auf Teich und Parkanlage
-HIER GEHT ES ZUM EXKLUSIVEN 3D-RUNDGANG:https://my.matterport.com/show/?m=1AeQ2xzMTwF

Die Lage-Highlights:
- Buslinien 26A und 94A (3 Gehminuten)
- Straßenbahnlinie 25 (4 Gehminuten)
- Bahnhof Erzherzog-Karl-Straße (5 Gehminuten)
- Supermarkt (2 Gehminuten)
- Otto-Affenzeller-Park (3 Gehminuten)
- Lagerwiese Rehlacke / An der unteren Alten Donau (5 Minuten mit dem Rad)
- Zahlreiche Gastronomieangebote

Der Kaufpreis für diese in ausgezeichneter Lage und Infrastruktur befindliche Eigentumswohnung beträgt Euro 449.900,-.
Kaufpreis Garagenplatz (optional): EUR 32.000,-
Anlegerfreundliche Netto-Variante mit USt-Überrechnung möglich!

Vereinbaren Sie noch heute einen Besichtigungstermin und lassen Sie sich von dieser besonderen Immobilie verzaubern. Diesbezüglich freuen wir uns über Ihre geschätzte Anfrage per Mail.

Tipp: Die gesamte Anlage wird gerade parifiziert und abverkauft. Fragen Sie uns nach weiteren Objekten bzw. Paketangeboten!

Wir möchten darauf hinweisen, dass unsere Antwort möglicherweise in Ihrem Spamordner landen könnte. Bitte kontrollieren Sie diesen, wenn Sie keine Rückmeldung auf Ihre Anfrage erhalten haben.

Wir freuen uns auf Ihre Anfrage und einen gemeinsamen Besichtigungstermin!

.

Merkmale

  • Bezug: sofort
  • Personenaufzug
  • Kelleranteil
  • Balkon
  • Bodenbelag: Parkett

Grundrisse

Grundrisse
1 / 1

Virtueller Rundgang

3D tour

Realisiere Dein Projekt

Bausubstanz und Energie

Heizwärmebedarf (HWB)

B

Gesamtenergieeffizienz (fGEE)

A
  • Baujahr2020/Neubau
  • Zustand der ImmobilieNeubau
  • HeizungsartFußbodenheizung
Immowelt logo

Preisdetails

Kaufpreis
449900 €
5.214,12 €/m²
Provision für Käufer
3%
Weitere Preisinformationen

GrESt 3,5% + Grundbucheintragung 1,1% des Gesamtkaufpreises /Vertragserrichtung 1,5% + Barauslagen, Beglaubigungs-, ggf. Treuhandkosten bei Finanzierung +USt. (Mag. Teodora Aurora Vrancean, M.P.S. / Provision 3% +USt. des Kaufpreises

Lage

address-icon
Wien (1220)
Der Anbieter hat die genaue Adresse nicht freigegeben

Weitere Informationen

Stichworte Anzahl der Badezimmer: 1, Anzahl der separaten WCs: 1, Anzahl Balkone: 1, Balkon-Terrassen-Fläche: 9,77 m²

Weitere Services

Lust auf eine Besichtigung?
Eine Frage zur Immobilie?
Nachricht hinzufügen
Mit der Nutzung der oben angegebenen Telefonnummer oder durch Klicken auf „Kontaktieren“ akzeptierst Du die Allgemeinen Nutzungsbedingungen, denen Du jederzeit widersprechen kannst. Weitere Informationen zum Datenschutz

Über den Anbieter

Paulanergasse 15, 1040 Wien
partner badge
Partnerschaft
Frau Melanie EiblthauerDein Kontakt
Keine Telefonnummer hinterlegt
Keine Telefonnummer hinterlegt
Online-ID: 25REZL1WDV2P
Referenznummer: 247/21909
IMV Makler GmbH
IMV Makler GmbH
Bewertung: 4 von 5 Sternen
Nachricht hinzufügen
Mit der Nutzung der oben angegebenen Telefonnummer oder durch Klicken auf „Kontaktieren“ akzeptierst Du die Allgemeinen Nutzungsbedingungen, denen Du jederzeit widersprechen kannst. Weitere Informationen zum Datenschutz
Wie zufrieden bist du mit dieser Seite (nicht mit der Immobilie selbst)?