Version: 8.25.1Navigation überspringen
IMMORath
490.000 €
6 Zimmer  •  130 m²

Wohnung zum Kauf
490000 €
3.769 €/m²
6 Zimmer  •  130 m²

IMMORath.de - Großzügige 6-Zimmer-Wohnung mit zwei Stellplätzen in Ebringen

Großzügige 6-Zimmer-Wohnung mit Stellplatz in Ebringen

- Gepflegter Zustand aus dem Baujahr 1925
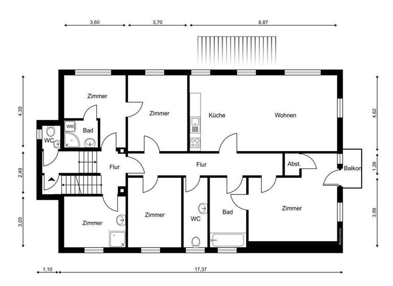
- Ca. 130 m² Wohnfläche, aufgeteilt auf 6 Zimmer teilweise mit Dusche
- 2 geräumige Badezimmer, sowie 2 praktische Gäste-WC
- 1 voll eingerichte Einbauküche sowie 1 separate Küchenzeile
- Balkon zum Entspannen im Freien
- 2 Stellplätze für Ihren PKW

- Übergabe: frei nach Absprache

Merkmale

  • Bezug: Frei nach Absprache
  • Einbauküche
  • 2 Stellplätze: 2 Außen-Stellplätze
  • Balkon

Grundrisse

Grundrisse
1 / 1

Realisiere Dein Projekt

Bausubstanz und Energie

Energieausweis

E
  • Baujahr1925
  • Zustand der ImmobilieGepflegt
  • HeizungsartZentralheizung
  • EnergieträgerGas
MediumRectangleTop

Preisdetails

Kaufpreis
490000 €
3.769 €/m²
Provision für Käufer
3,57% inkl. MwSt.
Weitere Preisinformationen
2 Stellplätze
Geschätzte Gesamtkosten
541.793 €1
Kaufpreis
490.000 €
Notarkosten (1,5%)
7.350 €
Grunderwerbsteuer (5%)
24.500 €
Provision für Käufer (3,57%)
17.493 €
Grundbucheintrag (0,5%)
2.450 €
1Der angezeigte Wert ist eine automatisch berechnete Schätzung von immowelt.
2Bei den Angaben handelt es sich um ortsübliche Werte. Individuelle Kosten können abweichen.

Lage

address-icon
Ebringen (79285)
Der Anbieter hat die genaue Adresse nicht freigegeben
Die Immobilie befindet sich in einer attraktiven und familienfreundlichen Lage von Ebringen. Die nähere Umgebung zeichnet sich durch einen ländlichen Charakter aus und bietet eine gute Infrastruktur für den täglichen Bedarf. Besonders für Familien ist die Lage ideal, da sowohl der Kindergarten als auch die Grundschule bequem zu Fuß in wenigen Minuten erreichbar sind.

Auch die medizinische Versorgung ist durch eine Hausarztpraxis sowie eine Apotheke im Ort gewährleistet und bequem erreichbar. Der nächstgelege Supermarkt befindet sich ebenfalls in fußläufiger Entfernung. Die Anbindung an den öffentlichen Nahverkehr ist hervorragend: Eine Bushaltestelle liegt in unmittelbarer Nähe und bietet regelmäßige Verbindungen an. Zudem ist der Bahnhof nur 1,8 km entfernt, was Pendlern eine schnelle Erreichbarkeit der umliegenden Zentren ermöglicht. Die Fahrtzeit mit öffentlichen Verkehrsmitteln in die nahegelegene Stadt Freiburg beträgt weniger als 20 Minuten.

Durch die verkehrsgünstige Lage im Dreiländereck sind auch Fernziele in Frankreich und der Schweiz sowie touristische Highlights des Schwarzwalds über die Autobahn A5 zügig erreichbar. Diese Lage bietet somit ein angenehmes und praktisches Wohnumfeld, das durch seine Naturnähe und die gleichzeitige Nähe zu Freiburg begeistert.

Weitere Informationen

Sonstiges Sie haben Interesse und möchten zeitnah die Immobilie besichtigen? Kein Problem! Schicken Sie uns gerne Ihre Anfrage, Sie werden von der Immobilie begeistert sein!

Alle vom Eigentümer bereitgestellten Informationen werden als zuverlässig erachtet, aber nicht garantiert und sollten unabhängig verifiziert werden. Wir übernehmen keinerlei Gewähr für die Richtigkeit der Angaben.

Der Courtageanteil des Käufers beträgt 3,57% des tatsächlichen Kaufpreises inklusive der gesetzlichen Mehrwertsteuer. Der Courtageanteil ist im Kaufpreis nicht enthalten.

Einzelne Bilder wurden digital optimiert (KI-gestütztes Wetter- und Umgebungs-Editing). Die bauliche Substanz wurde nicht verändert. Die Darstellungen dienen der Illustration; verbindlich ist der Zustand bei der persönlichen Besichtigung.en und ist vom Käufer an uns zu zahlen. Er ist fällig und zahlbar bei Notariat. Stichworte Anzahl der Badezimmer: 2, Anzahl der separaten WCs: 2, Anzahl Balkone: 1, Distanz zum Kindergarten: 0.30, Distanz zur Grundschule: 0.40, Distanz zur Realschule: 5.50, Distanz zur nächsten Einkaufsmöglichkeit: 0.60, Distanz zum Gymnasium: 6.80, Distanz zur Autobahn: 7.50, Distanz vom Zentrum: 0.50

Weitere Services

Lust auf eine Besichtigung?
Eine Frage zur Immobilie?
Nachricht hinzufügen
Mit der Nutzung der oben angegebenen Telefonnummer oder durch Klicken auf „Kontaktieren“ akzeptierst Du die Allgemeinen Nutzungsbedingungen, denen Du jederzeit widersprechen kannst. Weitere Informationen zum Datenschutz

Über den Anbieter

Habsburgerstraße 11, 79104 Freiburg im Breisgau
partner badge
Partnerschaft
Herr Nicola SabatinoDein Kontakt
Online-ID: 26Q1FYQVGN9T
Referenznummer: IR0126454
IMMORath
IMMORath
Bewertung: 5 von 5 Sternen
Nachricht hinzufügen
Mit der Nutzung der oben angegebenen Telefonnummer oder durch Klicken auf „Kontaktieren“ akzeptierst Du die Allgemeinen Nutzungsbedingungen, denen Du jederzeit widersprechen kannst. Weitere Informationen zum Datenschutz
MediumRectangleTop
MediumRectangleBottom
MediumRectangleTop
Wie zufrieden bist du mit dieser Seite (nicht mit der Immobilie selbst)?