Version: 8.26.0Navigation überspringen
190.000 €
2,5 Zimmer  •  61,4 m²  •  3. Geschoss
Immowelt logo

Wohnung zum Kauf • provisionsfrei
190000 €
3.096 €/m²
2,5 Zimmer  •  61,4 m²  •  3. Geschoss

*Neuvermietungspotential ab 01.07.26* - Geräumige 2,5 Zi. Wohnung in gepflegtem MFH zum Kauf

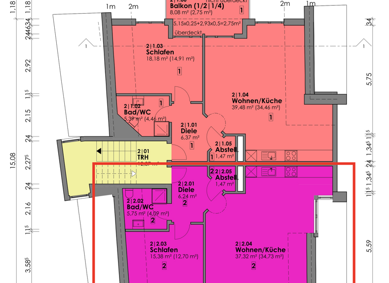
Entdecken Sie Ihre zukünftige Eigentumswohnung in Laufenburg! Diese charmante 2,5-Zimmer-Wohnung mit einem Schlafzimmer, einem Badezimmer und einem großzügigen Wohn- und Essbereich bietet 61,36m² komfortablen Wohnraum. Ein weiterer Vorteil ist, dass die Wohnung ab dem 01.07.2026 leersteht. Somit können Sie entweder auf absehbare Zeit selbst beziehen oder die Wohnung dann zu Neuvermietungskonditionen vermieten.

Die Wohnung befindet sich im 3. Obergeschoss eines gepflegten Gebäudes mit insgesamt drei Etagen. Sie wurde zuletzt im Jahr 2018 modernisiert und präsentiert sich seither in einem ansprechenden, modernen Zustand. Der energetische Stand der Immobilie ist durch den vorhandenen Vollwärmeschutz, der neuen Gaszentralheizung aus dem Jahr 2025 sowie der zweifachverglasten Fenster mit Kunststoffrahmen auf einem sehr guten Niveau.

- Großzügiger Wohnbereich mit viel natürlichem Licht -

Der Wohn- und Essbereich erstrahlt in einem hellen Farbkonzept, welches durch den hohen Tageslichteinfall abgerundet wird. Er ist vollständig mit Laminatboden versehen, welcher sich in einem gepflegten Zustand befindet. Die vorhandene Einbauküche ist voll ausgestattet und passt sich perfekt in den individuellen Raumschnitt ein. Vom Wohn- und Essbereich gelangen Sie zudem auf den Balkon, welcher zum Genießen der Abendstunden einlädt.

Die zweifach verglasten Fenster mit Kunststoffrahmen können durch die Aufputz-Rollos vollständig verdunkelt werden. So genießen Sie zu jeder Tag- und Nachtzeit ein hohes Maß an Privatsphäre. Vom Wohn- und Essbereich gelangen Sie auf den geräumigen Balkon der Wohnung, welcher zum genießen der Abendstunden einlädt.

Beheizt wird die Wohnung über eine Fußbodenheizung, "befeuert" durch eine Gas-Zentralheizung aus dem Jahr 2025.

- Geräumiges Schlafzimmer -

Vom Eingangsbereich, welcher alle Räume der Wohnung miteinander verbindet, gelangen Sie unter anderem auch in das helle Schlafzimmer. Auch hier spiegelt sich das helle und moderne Farbkonzept der gesamten Wohnung wider. Durch zwei große Fensterfronten verfügt dieser Raum über ausreichend Tageslicht sowie Frischluft. Auch hier befindet sich ein weiterer Zugang zum Balkon.

Der Schnitt des Raumes eignet sich ideal für die Platzierung eines Kingsize-Bettes sowie einer großen Schrankwand. Auch von hier aus haben Sie einen weiteren Zugang zum Balkon.

- Helles Badezimmer -

Das Badezimmer wurde in einem schlichten Design gestaltet und erstrahlt somit weiterhin in zeitgemäßer Optik. Es ist bis auf die Decken vollständig verfliest, was die Pflege deutlich erleichtert. Eine großzügige Duschkabine mit Regenduschenaufsatz fügt sich perfekt in das Raumkonzept ein. Ein großes Dachfenster ohne Einsicht von außen sorgt auch hier für ausreichend Tageslicht und Frischluft.

- Zusätzlicher Keller- und Abstellraum für mehr Stauraum -

Innerhalb der Wohnung befindet sich ein gepflegter Abstellraum mit insgesamt 1,47m² Fläche. Durch die vorhandene Raumhöhe kann hier mithilfe eines Regalsystems zusätzlicher Stauraum geschaffen werden. Ergänzend verfügt die Wohnung über ein 4,19m² großes Kellerabteil, sodass insgesamt ausreichend Abstellfläche vorhanden ist.

- Parkmöglichkeiten -

Zur Wohnung gehört der Außenstellplatz Nr. 2, welcher mit 6.000€ zusätzlich bepreist ist. Dieser befindet sich in unmittelbarer Nähe zum Gebäude.

- Gemeinschaftsräume -

Die Immobilie verfügt über einen Fahrradraum im Keller mit ebenerdigem Ausgang. Darüber hinaus stehen ein großer Wasch- und Trockenraum zur Verfügung.

Diese Wohnung bietet Ihnen ein tolles Raumkonzept, helle Räume und ruhiges Wohnen in zentraler Lage.

Wir freuen uns auf Ihren Kontakt!

WICHTIG: Bei den Bildern handelt es sich um eine Schnitt- und Austattungsgleiche Wohnung im selben Gebäude. Einige Einrichtungsdetails können somit abweichen.

Merkmale

  • Bezug: Sofort
  • vermietet
  • 3. Geschoss
  • Einbauküche
  • Keller
  • Garage
  • Balkon
  • Badezimmer: Bad mit Dusche, Bad mit Fenster

Grundrisse

Grundrisse
1 / 2

Bausubstanz und Energie

Energieausweis

C
  • Baujahr1998
  • Zustand der ImmobilieNeubau
  • HeizungsartFußbodenheizung
  • EnergieträgerGas
Immowelt logo

Preisdetails

Kaufpreis
190000 €
3.096,48 €/m²
Provision für Käufer
provisionsfrei; Im Falle des erfolgreichen Abschlusses eines notariellen Kaufvertrages verpflichtet sich der Käufer, eine Bearbeitungsgebühr in Höhe von 1,5% des beurkundeten Kaufpreises zzgl. gesetzlicher MwSt. zu zahlen**
Weitere Preisinformationen
1 Garagenstellplatz
Geschätzte Gesamtkosten
203.300 €1
Kaufpreis
190.000 €
Notarkosten (1,5%)
2.850 €
Grunderwerbsteuer (5%)
9.500 €
Grundbucheintrag (0,5%)
950 €
1Der angezeigte Wert ist eine automatisch berechnete Schätzung von immowelt.
2Bei den Angaben handelt es sich um ortsübliche Werte. Individuelle Kosten können abweichen.

Lage

address-icon
LuttingenLaufenburg (79725)
Der Anbieter hat die genaue Adresse nicht freigegeben
Laufenburg besteht aus der deutschen Grenzstadt am diesseitigen Rheinufer und auf der schweizer Seite des Rheins aus der im Kanton Aargau gelegenen gleichnamigen Stadt. Beide Städte sind mit zwei Brücken verbunden: Zum einen durch die mit Fahrzeugen passierbare Hochrheinbrücke sowie die Laufenbrücke, die die beiden Altstädte fussläufig miteinander verbindet. Die Altstadt und auch die Rheinpromenade verleihen der Stadt ein sehr malerisches Bild. Aber auch sonst hat Laufenburg viel zu bieten: Neben zahlreichen Restaurants, Apotheken, Lebensmittelanbietern und einem Baumarkt gibt es ebenso Schulen und Kindergärten. Durch die Hans-Thoma-Schule werden die Bereiche der Grund-, Werkreal- und Realschule abgedeckt. Nebenan befindet sich die Rappensteinhalle, in welcher der Kindergarten untergebracht ist und
in der die Schulen ihren Sportunterricht abhalten. Auch als Festhalle kann sie verwendet werden. Vor allem durch den Laufenpark, an dem sich viele Läden an einem Punkt konzentrieren, wird das Einkaufen sehr erleichtert. Für Kinder gibt es genügend Flächen und Spielplätze für Spaß und Freizeit. Außerdem gibt es eine katholische und eine evangelische Kirche.

Weitere Informationen

Sonstiges Aufstellung VK Preis:

Wohnung: 190.000€
Carport: 6.000€

Ges. Verkaufspreis: 196.000€ zzgl. Bearbeitungsgebühr**
_______________________________________________________________________________________________________

**Die Bearbeitungsgebühr dient dem Ausgleich von Aufwendungen für die Objektaufbereitung, die Durchführung und Koordination des Vermarktungsprozesses, die Kommunikation mit Kaufinteressenten sowie die organisatorische Begleitung bis zum Abschluss des Kaufvertrages.

Die Bearbeitungsgebühr ist ausschließlich im Erfolgsfall, d. h. bei wirksamem Abschluss eines notariellen Kaufvertrages, fällig und wird mit Rechnungsstellung zahlbar. Ein Anspruch auf Zahlung besteht nicht, sofern kein notarieller Kaufvertrag zustande kommt.

Die Bearbeitungsgebühr wird für konkret benannte Zusatzleistungen erhoben und stellt keine Maklerprovision im Sinne der §§ 652 ff. BGB dar. Stichworte Garage vorhanden, Carport vorhanden, Nutzfläche: 1,47 m², Anzahl der Schlafzimmer: 1, Anzahl der Badezimmer: 1, Anzahl Balkone: 1, Balkon-Terrassen-Fläche: 6,83 m², 3 Etagen, modernisiert

Weitere Services

Lust auf eine Besichtigung?
Eine Frage zur Immobilie?
Nachricht hinzufügen
Mit der Nutzung der oben angegebenen Telefonnummer oder durch Klicken auf „Kontaktieren“ akzeptierst Du die Allgemeinen Nutzungsbedingungen, denen Du jederzeit widersprechen kannst. Weitere Informationen zum Datenschutz

Über den Anbieter

Luttingerstr. 9, 79725 Laufenburg (Baden)
partner badge
3 Jahre Partnerschaft
Herr Tim Semmler
Herr Tim SemmlerDein Kontakt
Online-ID: 269FM56E13AJ
Referenznummer: ETW 2 - DG - Rechts - Luttinger Straße 30A
Wie zufrieden bist du mit dieser Seite (nicht mit der Immobilie selbst)?