Version: 8.24.0Navigation überspringen
Claus R. Menges GmbH
639.000 €
7 Zimmer  •  241 m²  •  590 m² Grundstück

Mehrfamilienhaus zum Kauf
639000 €
2.651 €/m²
7 Zimmer  •  241 m²  •  590 m² Grundstück

Repräsentatives, großzügiges Mehrfamilienhaus mit zwei Wohneinheiten in attraktiver Lage von Linden-Leihgestern

Dieses beeindruckende Mehrfamilienhaus aus dem Jahr 1970, das 1994 aufgestockt wur-de, präsentiert sich auf einem ca. 590?m² großen Grundstück in ruhiger, gewachsener Wohnlage.

Die Gesamtwohnfläche beträgt im Erd- und Dachgeschoss ca. 241?m² und verteilt sich auf zwei eigenständige Wohneinheiten. Darüber hinaus befindet sich im Kellergeschoss noch eine als Wohnraum ausgebaute Fläche von ca. 60 m². Damit bietet die Immobilie sowohl für größere Familien mit mehr Platzbedarf als auch für den Wunsch nach Mehrgeneratio-nenwohnen ideale Voraussetzungen, kann aber ebenso gut als Kapitalanlage für Vermie-tungszwecke genutzt werden.

Beim Betreten der Erdgeschosseinheit mit ca. 128?m² Wohnfläche empfängt Sie ein be-sonders großzügiger Flur. Von hier aus öffnet sich der weitläufige Wohnbereich, der durch ein angrenzendes Esszimmer erweitert wird – perfekt für gesellige Abende mit Familie oder Freunden.

Vom großzügigen Wohn- und Essbereich aus gelangen Sie direkt auf die angrenzende Terrasse. Hier haben Sie ausreichend Platz für eine gemütliche Sitzgruppe oder einen Essbereich im Freien – ideal für entspannte Stunden im Freien. Der kleine, pflegeleichte Garten rundet diesen Außenbereich ab.

Wieder zurück im Haus ist die Küche sowohl vom Flur als auch vom Esszimmer aus er-reichbar und kann nach Ihren persönlichen Vorstellungen gestaltet werden.

Neben dem Hauptschlafzimmer stehen zwei weitere Räume zur Verfügung, die flexibel als Kinderzimmer, Büro oder Gästezimmer genutzt werden können.

Das Tageslichtbad ist mit einer Badewanne, zwei Waschbecken und einem WC ausgestat-tet und ergänzt das Raumangebot ebenso wie ein separates Gäste-WC.

Das Dachgeschoss ist mit einer Fußbodenheizung ausgestattet und bildet mit einer Wohnfläche von ca. 113?m² eine in sich abgeschlossene, zweite Wohneinheit.

Der einladende Eingangsbereich bietet Platz für eine Garderobe, ehe sich auch hier ein großzügiger Wohn- und Essbereich öffnet. Vom Wohnzimmer aus gelangen Sie direkt auf den Balkon, so dass auch hier ein angenehmer Rückzugsort im Freien vorhanden ist. Hier lässt sich gut ein kleiner Sitzplatz einrichten.
Die Küche ist durch eine praktische Glasschiebetür vom Essbereich getrennt – so bleibt der Raum offen und hell und lässt sich bei Bedarf auch separieren. Die Einbauküche ist bereits voll ausgestattet und bietet alles, was das Herz begehrt: Cerankochfeld, Backofen, Spülmaschine sowie eine Kühl-Gefrier-Kombination.

Auch diese Etage verfügt über zwei flexibel nutzbare Zimmer, ein helles Tageslichtbad mit Eckbadewanne, Dusche, Waschbecken und WC sowie über ein separates Gäste-WC mit Anschlüssen für Waschmaschine und Wäschetrockner.

Ein praktischer Abstellraum sorgt zusätzlich für Ordnung und Stauraum. Über eine Zug-treppe erreicht man hier auch den Dachboden, der weiteren Stauraum bietet.
Die Dachgeschosseinheit ist direkt bezugsfähig.

Das vollunterkellerte Untergeschoss rundet das Raumangebot mit großzügigen Flächen ab. Hier sind ausreichend Nutzflächen für Stauraum, Hobby oder Werkstatt vorhanden. Im Heizungsraum steht eine Dusche samt Waschbecken sowie ein Waschmaschinen- und Trockneranschluss zur Verfügung. Die als Wohnraum ausgebaute Fläche umfasst u.a. ein Bad mit WC und Badewanne sowie eine vollausgestattete Küche.

Eine Sauna mit eigener Dusche, Waschbecken und WC runden das Angebot ab. Ein sepa-rater Außenzugang macht das Kellergeschoss auch von außen direkt begehbar.
Für Ihre Fahrzeuge stehen sowohl eine Garage als auch ein Stellplatz unter einer über-dachten Pergola bereit.

Das Haus steht leer.

Fazit:
Dieses solide Mehrfamilienhaus überzeugt durch seine großzügige Raumaufteilung, zwei vollständig getrennte Wohneinheiten und vielseitige Nutzungsmöglichkeiten – sei es für eine große Familie, zwei Generationen unter einem Dach oder zur Kombination von Ei-gennutzung und Vermietung. ©Claus R. Menges GmbH

Merkmale

  • 590 m² Grundstück
  • Einbauküche
  • Garage, Außen-Stellplatz
  • Gäste-WC
  • Balkon
  • Garten
  • Terrasse

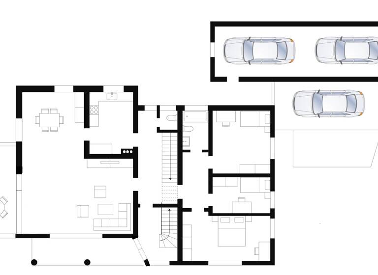
Grundrisse

Grundrisse
1 / 3

Realisiere Dein Projekt

Bausubstanz und Energie

Energieausweis

F
  • Baujahr1970/1994
  • EnergieträgerGas

Preisdetails

Kaufpreis
639000 €
2.651,45 €/m²
Provision für Käufer
5,95 % inkl. MwSt. vom Kaufpreis
Geschätzte Gesamtkosten
712.932 €1
Kaufpreis
639.000 €
Notarkosten (1,5%)
9.585 €
Grunderwerbsteuer (6%)
38.340 €
Provision für Käufer (3,57%)
22.812 €
Grundbucheintrag (0,5%)
3.195 €
1Der angezeigte Wert ist eine automatisch berechnete Schätzung von immowelt.
2Bei den Angaben handelt es sich um ortsübliche Werte. Individuelle Kosten können abweichen.

Lage

address-icon
LeihgesternLinden (35440)
Der Anbieter hat die genaue Adresse nicht freigegeben
Der Kleine Ring in Linden-Leihgestern ist eine charmante und gut angebundene Straße, die sich in ruhiger und dennoch zentraler Lage befindet. Die Straße verläuft durch den beliebten Stadtteil Leihgestern, der für seine freundliche Nachbarschaft und vielfältigen Einkaufsmöglichkeiten bekannt ist.
In unmittelbarer Nähe des Kleinen Rings finden Sie zahlreiche Einkaufsmöglichkeiten, Supermärkte, Cafés und Restaurants, die den Alltag bequem gestalten. Die Anbindung an den öffentlichen Nahverkehr ist hervorragend, sodass Sie schnell und unkompliziert die Gießener Innenstadt sowie andere Stadtteile erreichen können. Die nächste Bushaltestelle ist nur wenige Gehminuten entfernt, und auch die Anbindung an das Straßennetz ist optimal, was die Erreichbarkeit mit dem Auto erleichtert. Die Bundesstraßen B3 und B49 sind schnell erreichbar und verbinden Linden mit den umliegenden Städten Gießen, Wetzlar und Butzbach. Der Bahnhof Linden bietet Anschluss an den Regionalverkehr in Richtung Frankfurt und Marburg. Die Autobahnen A5 und A45 sind in wenigen Minuten mit dem Auto erreichbar, so dass diese Wohnlage sich auch für Pendler ideal anbietet.
Die Umgebung ist geprägt von gepflegten Wohnhäusern, Grünflächen und kleinen Parks mit Kinderspielplätzen, die zum Verweilen und Entspannen einladen. Kindergarten und Grundschule sind fußläufig erreichbar. Im Stadtteil Großen-Linden befindet sich ein einladendes Freibad.
Familien, Berufstätige und Studierende schätzen die freundliche Nachbarschaft, die vielfältigen Freizeitmöglichkeiten in der Nähe sowie ein breitgefächertes Angebot örtlicher Vereine. Die Lage bietet somit eine perfekte Balance zwischen urbanem Leben und ruhigem Wohnen.
Kurz gesagt: Der Kleine Ring in Linden-Leihgestern ist eine attraktive Adresse für alle, die eine zentrale, gut angebundene und gleichzeitig ruhige Wohnlage suchen. Hier können Sie das lebendige Stadtleben genießen, ohne auf eine angenehme Wohnatmosphäre verzichten zu müssen.©Claus R. Menges GmbH

Weitere Informationen

Baujahr 1970/1994 Sonstiges Dieses Angebot ist freibleibend und unverbindlich, Irrtum sowie Zwischenverkauf vorbehalten. Das Objektangebot wurde von uns nach bestem Wissen sorgfältig zusammengestellt. Wir können jedoch nicht gewährleisten, dass alle Angaben vollständig sind. Die Daten wurden vom Verkäufer auf die Richtigkeit hin überprüft. Eine Gewähr dafür kann nicht übernommen werden.

Wir erlauben uns, Sie darauf hinzuweisen, dass alle Texte und Lichtbilder, die in Angeboten, Exposés, auf unserer Internetseite, auf öffentlichen Portalen etc. verwendet werden, urheberrechtlich geschützt sind. Eine Verwendung der Texte und der Lichtbilder ohne unsere Zustimmung stellt eine urheberrechtliche Pflichtverletzung dar, die neben Unterlassungsansprüchen auch Schadenersatzansprüche begründet. Jegliche Nutzung der Texte und Lichtbilder durch Dritte wie z.B. rentumo.de erfolgt ohne unsere Zustimmung und wird untersagt. ©Claus R. Menges GmbH

Unser aktuelles Gesamtangebot finden Sie unter www.cr-menges.de. Stichworte Sonstiges/Wohnen: Hobbyraum Sonstiges: Keller als Wohnraum nutzbar

Weitere Services

Lust auf eine Besichtigung?
Eine Frage zur Immobilie?
Nachricht hinzufügen
Mit der Nutzung der oben angegebenen Telefonnummer oder durch Klicken auf „Kontaktieren“ akzeptierst Du die Allgemeinen Nutzungsbedingungen, denen Du jederzeit widersprechen kannst. Weitere Informationen zum Datenschutz

Über den Anbieter

Claus R. Menges GmbH
Alicenstr. 18, 35390 Gießen
partner badge
10 Jahre Partnerschaft
Online-ID: 2k35e5w
Referenznummer: A4244
Claus R. Menges GmbH
Claus R. Menges GmbH
Nachricht hinzufügen
Mit der Nutzung der oben angegebenen Telefonnummer oder durch Klicken auf „Kontaktieren“ akzeptierst Du die Allgemeinen Nutzungsbedingungen, denen Du jederzeit widersprechen kannst. Weitere Informationen zum Datenschutz
Wie zufrieden bist du mit dieser Seite (nicht mit der Immobilie selbst)?