Seit Mitte der 90er Jahre hat sich der Potsdam Science Park sowohl in wissenschaftlicher als auch in wirtschaftlicher Hinsicht zum innovativsten und erfolgversprechendsten Standort seiner Art im Land Brandenburg entwickelt. Mehr als 200 Professorinnen und Professoren forschen und lehren hier, 2.500 Mitarbeiterinnen und Mitarbeiter sind an diesem Standort beschäftigt und über 9.000 Studierende aus aller Welt sind an der Uni Potsdam eingeschrieben. Der Potsdam Science Park bietet ein lebendiges Netzwerk mit Campuscharakter und vielfältigen Arbeits- und Begegnungsorten. Ein Standortmanagement, welches von der Stadt Potsdam und der Universität Potsdam getragen wird, unterstützt die Entwicklung des Parks vor Ort, pflegt die Community und hilft Gründern/Gründerinnen und jungen Unternehmen. Wichtige Bestandteile des Campus sind ein Konferenzzentrum und die Innovationszentren GO:IN I und GO:IN II. Die Zentren bieten wertvolle Treffpunkte für den direkten Erfahrungsaustausch zwischen der internationalen Spitzenforschung - von der Biotechnologie bis zur Gravitationsphysik - und erfolgreichen anwendungsorientierten Unternehmen sowie dem wissenschaftlichen Nachwuchs.
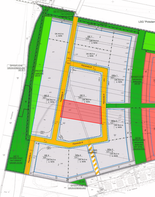
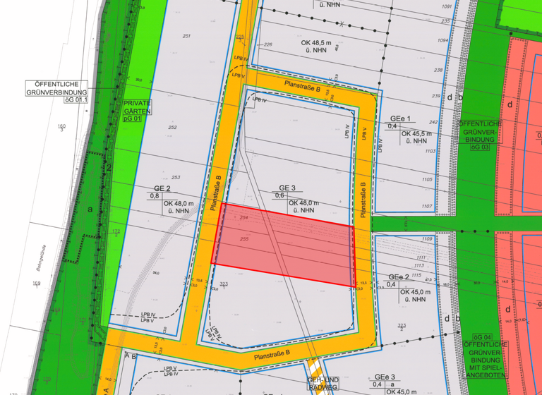
Die Flächen des Technology Campus sind die letzten verfügbaren Grundstücke im Potsdam Science Park. Die zum Verkauf stehende Teilfläche des Flurstücks 1443 (ca. 4.570 m²) eignet sich für weltweit agierende Forschungsunternehmen, Unternehmen mit wissensbasierter Produktion sowie für kleine und mittelständische Hightech-Unternehmen, forschungsnahe Dienstleitungsunternehmen und expandierende junge Unternehmen.
In Ergänzung zu den technologie- und forschungsorientierten Gewerbebetrieben sind auch Unternehmen/ Branchen zulässig, die überregionale Absatzmärkte bedienen, sich jedoch nicht in die vorgenannten Themenbereiche einordnen.
Merkmale
4.570 m² Grundstück
Grundrisse
Grundrisse
1 / 2
Preisdetails
Kaufpreis
676360 €676.360 €
148 €/m²
Provision für Käufer
provisionsfrei
Geschätzte Gesamtkosten
676.360 €1
Kaufpreis
676.360 €
1Der angezeigte Wert ist eine automatisch berechnete Schätzung von immowelt.
Lage
Golm, Potsdam (14476)
Der Anbieter hat die genaue Adresse nicht freigegeben
Golm ist eingebettet in die historische Kulturlandschaft der Potsdamer Havelseen und bietet reizvolle Gegensätze. Exzellente Wissenschaftseinrichtungen und ländliche Strukturen treffen hier aufeinander. Nur wenige Kilometer von Sanssouci entfernt und in 30 Minuten mit der Regionalbahn von Berlin zu erreichen, war und ist Golm ein vielseitiges Ausflugsziel. Ob Spaziergang, Wanderung oder Fahrradtour - der Ort und seine Umgebung laden zu zahlreichen Entdeckungen ein.
In den vergangenen zwei Jahrzehnten hat sich Golm zum größten Wissenschaftsstandort Brandenburgs entwickelt. Neben der Universität Potsdam haben sich vor Ort auch drei Max-Planck-Institute sowie zwei Institute der Fraunhofer Gesellschaft angesiedelt und betreiben im Potsdam Science Park internationale Spitzenforschung. Mehr als 200 Professorinnen und Professoren forschen und lehren hier, 2.500 Mitarbeiter*innen sind an diesem Standort beschäftigt und über 9.000 Student*innen aus aller Welt sind an der Uni Potsdam eingeschrieben.
Der Potsdam Science Park bietet ein lebendiges Netzwerk mit Campuscharakter und vielfältigen Arbeits- und Begegnungsorten.
Das Stadtzentrum Potsdams, mit seinen zahlreichen Sehenswürdigkeiten, Einkehr- und Einkaufsmöglichkeiten, ist ca. 5 km entfernt.
Weitere Informationen
Sonstiges
Mit dem Technology Campus soll der Science Park Potsdam nicht nur größer, sondern auch attraktiver werden. Inhaltlicher Anspruch ist es, auf den vorhandenen Flächen vorrangig Nutzer*innen und Nutzungen zu etablieren, die das Profil und die Qualität des Standortes stärken, ergänzen, bereichern und erweitern. Ziel ist die Schaffung eines hochwertigen und attraktiven Innovationsstandortes für exzellente Forschung, Entwicklung und wissensbasierte Produktion. Diesen inhaltlichen Qualitätsanspruch gilt es zugleich aber auch, durch gestalterische und bauliche Qualitäten zu unterstreichen und zu betonen. Der Technology Campus soll die am Standort bereits ausgeprägte Campus-Struktur aufgreifen und weiter fortführen. Zugleich soll er aber auch qualitative Übergangs- und Anschlussmöglichkeiten für mögliche, zukünftige Erweiterungen bieten. Eine besondere Bedeutung kommt deshalb der Gestaltung der Baukörper und Außenanlagen zu. Zur Erreichung und Sicherung der angestrebten Gesamtqualität verpflichtet sich der/die Käufer/-in daher im Rahmen der Planung und Entwicklung neben den gemäß Bebauungsplan Nr. 129 "Nördlich In der Feldmark" festgesetzten Anforderungen, Gestaltungsanforderungen der Verkäuferin bei seinem Bebauungskonzept zu berücksichtigen.
Die ausführlichen Verkaufsunterlagen erhalten Sie per Download unter: https://www.propotsdam.de/erwerben/verkaufsobjekte/verkaufsobjektdetails/technologiestandort-sucht-unternehmen/
Stichworte
GRZ: 0, GFZ: 0, Bundesland: Brandenburg