Version: 8.25.1Navigation überspringen
659.900 €
3 Zimmer  •  88 m²  •  EG  •  frei ab sofort
Immowelt logo

Wohnung zum Kauf - Erstbezug
659900 €
7.499 €/m²
3 Zimmer  •  88 m²  •  EG  •  frei ab sofort

Gartenwohnung mit dem gewissen Etwas - Provisionsfrei f. Käufer // Garden Apartment with that special something - Buyer commission free! //

Weitere Angebote finden Sie auf
www.VALMACOR.at

Nur 2 Minuten von U1- Rennbahnweg entfernt, wurde eine neue hochwertige Niedrigstenergie-Hausanlage errichtet. Nicht nur die Infrastruktur ist einmalig, sondern alles stimmt - die Grundrisse sind gut durchdacht, die Terrassen sind großzügig und die Ausstattung ist exklusiv.

Die Wohnanlage ist elegant, bietet Platz für 10 Wohneinheiten, ist voll unterkellert und hoch-wertig ausgestattet. Eine hellbeleuchtete Tiefgarage sorgt für bequemes und sicheres nach Hause kommen. Ein eigener Kellerabteil sowie versperrbare Fahrrad- und Kinderwagenabstellräume und Liftzugänge sorgen für einfache und geschützte Aufbewahrung und Handhabung.

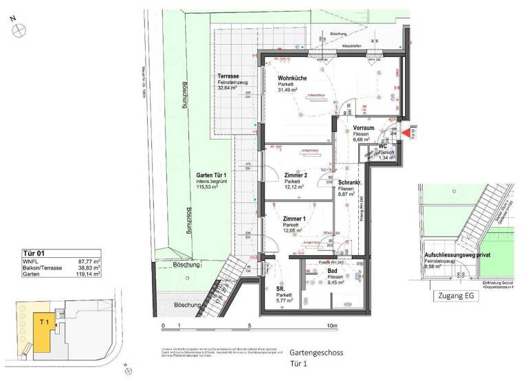
Die Top 1 ist eine 88 m², 3 Zimmerwohnung mit 39 m² Terrasse und 119 m² Eigengarten und befindet sich durch die Hanglage im Gartengeschoss der Hausanlage. Alle Zimmer sind getrennt begehbar. Zur Verfügung stehen, ein großes Wohnzimmer mit offener Küche und Aus-gang in einer West-seitige Garten, 2 Schlafzimmer, eines davon mit begehbarer Garderobe, alle mit eigenen Terrassen/Gartenausgang, ein großes Bad mit walk-in Dusche, Badewanne und Toilette sowie eine separate Toilette. Hinzu kommt die Möglichkeit eines eigenen direkten Zugangs zur Wohnung durch den Garten aber auch durch das Stiegenhaus.

Die Ausstattung ist hochwertig, modern und auf Komfort und Energieeffizienz bedacht. Die Wohnung verfügt über eine Designerküche, Sicherheitseingangstür, Fußbodenheizung, dreifach verglaste Fenster sowie elektrisch steuerbare Raffstores und ausreichend Steckdosen, Internet- und Datenanschlüsse.

Parkplätze stehen in der hauseigenen Tiefgarage gegen Aufpreis ab EUR 44.900 zur Verfügung.

Für den Käufer provisionsfrei!

Hat diese Immobilie Ihr Interesse geweckt ?
Dann fragen Sie unverbindlich an, Hr. DI Corneliu TANASESCU steht Ihnen unter +43 699 118 22 583 gerne beratend persönlich zur Verfügung.

Entspricht das Objekt nicht Ihren Vorstellungen? Weitere Angebote finden Sie auf

www.VALMACOR.at
Wir behandeln Sie besser !
______________________




More offers can be found on
www.VALMACOR.at

The apartment is placed only two minutes away from the U1- Rennbahnweg, in a new high-quality low energy-house. Not only the infrastructure is unique, but everything just fits - the lay-outs are smart, the terraces are generous and the fittings are exklusive.

This elegant residence offers space for 10 units, has a full basement and premium fittings. A brightly lighted, parking garage offers a both comfortable and safe return home. A private basement storage and lockable bicycle, stroller storerooms and lift access provide simple and protected storage and handling.

Top 1 is a 88 m², 3 rooms apartment with 39 m² terrace, 119 m² own garden and is placed onto the garden floor of the residence. All rooms are separately accessible. Available are a generous living with open kitchen and exit into the west oriented garden, 2 bedrooms, one of which with a walk in wardrobe, all with its own terrace/garden exit, a big bathroom with walk-in shower, tube and toilet, as well as a separate toilet. In addition there is the possibility of a direct access through the garden or through the staircase.

The interior fittings are of high-quality, modern and designed for comfort and energy efficiency. The apartment has a designer kitchen, security entrance door, underfloor heating, triple glazed windows and electric remotable blinders. Fitting changes are still possible pending construction progress.

Of course COMMISSION FREE for the buyer! Parking is available in the on-site underground car park for an additional fee of EUR 44,900.

Has this property awaken your interest ?
If so please request your personal unbinding offer, Mr. Corneliu TANASESCU will remain personally at +43 699 118 22 583 available for any question or advisory consultancy that you may need.

Doesn't this object correspond to your requirements? You may find further offers on

www.VALMACOR.at
We treat you better !
Angaben gemäß gesetzlichem Erfordernis:
Heizwärmebedarf:33.0 kWh/(m²a)
Faktor Gesamtenergieeffizienz:0.71

Merkmale

  • frei ab sofort
  • Erdgeschoss
  • Personenaufzug
  • Kelleranteil
  • Terrasse
  • Garten
  • Fernblick
  • Kabelanschluss

Grundrisse

Grundrisse
1 / 2

Virtueller Rundgang

Video

Realisiere Dein Projekt

Bausubstanz und Energie

Heizwärmebedarf (HWB)

B

Gesamtenergieeffizienz (fGEE)

  • Baujahrca. 2023
  • Zustand der ImmobilieNeubau, Massivhaus, Erstbezug
  • HaustypNiedrigenergiehaus
  • HeizungsartFußbodenheizung
Immowelt logo

Preisdetails

Kaufpreis
659900 €
7.498,86 €/m²
Provision für Käufer
Bitte beachte, das Angebot kann bei Vertragsabschluss die Zahlung einer Provision beinhalten. Weitere Informationen erhältst Du vom Anbieter.

Lage

address-icon
Wien (1220)
Der Anbieter hat die genaue Adresse nicht freigegeben

Weitere Informationen

Stichworte Anzahl der Schlafzimmer: 2, Anzahl der Badezimmer: 1, Anzahl der separaten WCs: 2, Anzahl Terrassen: 1, Balkon-Terrassen-Fläche: 37,00 m², Gartenfläche: 119,00 m², Kellerfläche: 2,58 m², Bundesland: Wien, 1 Etagen

Weitere Services

Lust auf eine Besichtigung?
Eine Frage zur Immobilie?
Nachricht hinzufügen
Mit der Nutzung der oben angegebenen Telefonnummer oder durch Klicken auf „Kontaktieren“ akzeptierst Du die Allgemeinen Nutzungsbedingungen, denen Du jederzeit widersprechen kannst. Weitere Informationen zum Datenschutz

Über den Anbieter

Eisenhütte 19, 3400 Klosterneuburg
partner badge
Partnerschaft
Corneliu TanasescuDein Kontakt
Online-ID: 2525F8G4YIUY
Referenznummer: 3358/1656
V A L M A C O R Immobilientreuhand GmbH
V A L M A C O R Immobilientreuhand GmbH
Nachricht hinzufügen
Mit der Nutzung der oben angegebenen Telefonnummer oder durch Klicken auf „Kontaktieren“ akzeptierst Du die Allgemeinen Nutzungsbedingungen, denen Du jederzeit widersprechen kannst. Weitere Informationen zum Datenschutz
Wie zufrieden bist du mit dieser Seite (nicht mit der Immobilie selbst)?