*** Bauplatz * Voll erschlossen - in Nattheim-OT *
Bauplatz voll erschlossen in ruhiger Lage von Nattheim-Fleinheim.......................
weiter lesen auf ... www.orange-immobilien.de
Merkmale
Bezug: sofort
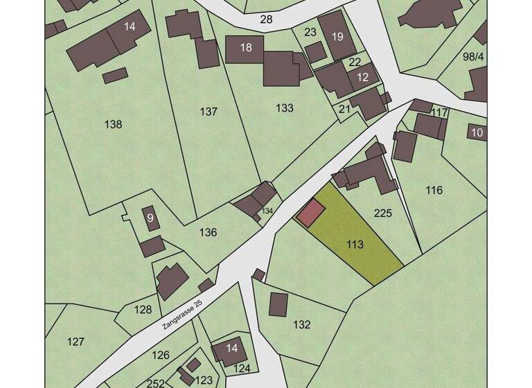
721 m² Grundstück
bebaubar nach §34 Nachbarbebauung
voll erschlossen
Kein Keller
Garten
2 Stellplätze: 2 Garagen
Das Grundstück ist voll erschlossen und sofort bebaubar.
Auf dem Grundstück stehen bereits zwei Garagen mit Maschinenraum.
Grundrisse
Grundrisse
1 / 1
Bausubstanz und Energie
Zustand der ImmobilieMassivhaus
Preisdetails
Kaufpreis
69000 €69.000 €
95,70 €/m²
Provision für Käufer
4,76 % inkl. Mwst.
Weitere Preisinformationen
2 Garagenstellplätze
Geschätzte Gesamtkosten
72.284 €1
Kaufpreis
69.000 €
Kaufnebenkosten
3.284 €
2
Provision für Käufer (4,76%)
3.284 €
1Der angezeigte Wert ist eine automatisch berechnete Schätzung von immowelt.
2Bei den Angaben handelt es sich um ortsübliche Werte. Individuelle Kosten können abweichen.
Lage
Fleinheim, Nattheim / Fleinheim (89564)
Der Anbieter hat die genaue Adresse nicht freigegeben
Fleinheim ist ein Ortsteil der Gemeinde Nattheim im Landkreis Heidenheim und liegt ca. fünf Kilometer östlich von Nattheim - unweit der Grenze zu Bayern.
Durch die direkte Anbindung an die Autobahn A7 und die B 466 besitzt die Gemeinde einen sehr verkehrsgünstigen Standort. Nach Heidenheim sind es nur ca. 11 Autominuten.
Nattheim ist eine moderne Gemeinde inmitten von ausgedehnten Wäldern in einer intakten Natur, attraktiven und leistungsfähigen Geschäften, innovativen Betrieben, schönen Wohngebieten, großzügigen Erholungsbereichen und einem lebendigen Vereinsleben.
Weitere Informationen
Sonstiges
Gerne sind wir für weitere Fragen und Informationen unter Tel.: 0731/ 70 80 01 42 erreichbar.
Bei Kauf/Miete verpflichtet sich der Käufer/Mieter an ORANGE Immobilienagentur -- Klaus Freigassner, selbst. Immobilienmakler, eine Maklerprovision in der angegebenen Höhe nach notariellem Kaufvertrag bzw. nach einem Mietvertrag zu leisten. Durch Ihre Objektanfrage bestätigen Sie die Vereinbarung und Anerkennung dieser Maklercourtage. Alle Angaben stammen vom Eigentümer der Makler übernimmt hierfür keine Haftung.
Anfragen über die Immobilienportale werden nur mit vollständiger Adresse und Telefonnummer bearbeitet. Jeder ORANGE Immobilienagentur Kooperationspartner und somit selbständiger Immobilienmakler/in ist ein rechtlich eigenständiges Unternehmen bzw. handelt auf eigene Rechnung/Verantwortung. Aufsichtsbehörde: IHK München und Oberbayern, Max-Joseph-Str. 2, 80333 München.
Stichworte
Gesamtfläche: 721,00 m²