Besichtigungen sind nur nach vorheriger Anfrage am 23.08.25 möglich.
Willkommen in der "Eigenen Scholle" - einem sanierungsbedürftigen Wohnhaus mit viel Potenzial und großem Garten. Auf einem großzügigen Grundstück von ca. 1.100?m² eröffnet sich Ihnen hier die seltene Gelegenheit, ein Einfamilienhaus ganz nach Ihren Vorstellungen zu gestalten. Die ca. 99,22?m² Wohnfläche und insgesamt 4 Zimmer bieten ideale Voraussetzungen für Familien, Paare oder kreative Köpfe, die Wohnträume mit handwerklichem Geschick verwirklichen möchten.
Ob Ausbau, Modernisierung oder kompletter Neustart - dieses Haus bietet die passende Basis für Ihr persönliches Wohnkonzept in angenehmer Wohnlage von Cottbus.
Greifen Sie jetzt zu und schaffen Sie sich ein neues Zuhause mit großem Garten, ruhiger Lage und viel Freiraum!
Merkmale
Bezug: sofort
1.100 m² Grundstück
Keller
Bodenbelag: Holzdielen
Terrasse
Carport
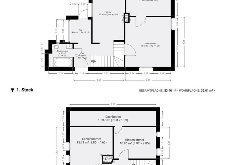
Die nachfolgenden Ausstattungsmerkmale geben Ihnen einen transparenten Überblick über den Zustand und das Potenzial des Hauses. Ausstattung des Hauses Wohnfläche ca. 99,22?m² | 4 Zimmer | Erdgeschoss | Obergeschoss | kleiner Dachboden Grundstücksgröße ca. 1.100?m² | inkl. Nebengelass und Garage
Erdgeschoss: + Eingangsbereich / Flur mit originalem Terrazzo-Boden + Windfang mit Zugang zum Garten + Küche mit Fenster, Dielenboden 2025 erneuert + Zwei weitere Zimmer mit Dielenböden + Badezimmer mit kleinem Fenster (nicht nutzbar, vollständig zu erneuern) + Kellerzugang unter der Treppe + Vier Innentüren im EG im Jahr 2025 erneuert
Obergeschoss: + Flur mit Dielenboden + Zwei weitere Zimmer mit Dachschrägen + Zugang über eine massive Holztreppe + Grundstück & Außenbereich: + Grundstücksgröße ca. 1.100?m² + Grundstück vollständig beräumt, freigeschnitten und entrümpelt + Nebengelass mit Garage und mehreren Abstellräumen + Großzügiger Garten mit viel Gestaltungsfreiraum - ideal für Hobbygärtner, Familien oder kleine Projekte + Freifläche bietet Platz für Terrasse, Spielbereich, Beete oder einen kleinen Pool
Zustand & Hinweise: + Das Haus ist vollständig sanierungsbedürftig + Keine Heizungsanlage vorhanden (keine Leitungen) + Elektrik veraltet - vollständige Erneuerung erforderlich + Badezimmer derzeit nicht nutzbar - umfassende Sanierung notwendig + Erheblicher Renovierungsbedarf in allen Bereichen (Heizung, Sanitär, Elektrik, Innenausbau)
Grundrisse
Grundrisse
1 / 1
Bausubstanz und Energie
Möchtest du Details zum Energieverbrauch?
EnergieträgerGas
Preisdetails
Kaufpreis
249990 €249.990 €
2.519,55 €/m²
Provision für Käufer
provisionsfrei
Weitere Preisinformationen
1 Carportplatz
Geschätzte Gesamtkosten
271.239 €1
Kaufpreis
249.990 €
Kaufnebenkosten
21.249 €
2
Notarkosten (1,5%)
3.750 €
Grunderwerbsteuer (6,5%)
16.249 €
Grundbucheintrag (0,5%)
1.250 €
1Der angezeigte Wert ist eine automatisch berechnete Schätzung von immowelt.
2Bei den Angaben handelt es sich um ortsübliche Werte. Individuelle Kosten können abweichen.
Lage
Schmellwitz, Cottbus / Schmellwitz (03044)
Der Anbieter hat die genaue Adresse nicht freigegeben
Die "Eigene Scholle" zählt zu den familienfreundlichen Wohnlagen im Süden von Cottbus. Ruhige Anliegerstraßen, viel Grün und großzügige Grundstücke prägen das Bild dieses gewachsenen Wohngebiets. Hier finden Familien ein sicheres und entspanntes Umfeld zum Leben, Spielen und Aufwachsen.
Kindergärten, Schulen und Spielplätze befinden sich in der Nähe und sind teils fußläufig erreichbar. Auch Einkaufsmöglichkeiten, ärztliche Versorgung und Freizeitangebote sind gut angebunden. Die Cottbuser Innenstadt erreichen Sie bequem in rund 10 Minuten mit dem Auto oder öffentlichen Verkehrsmitteln.
Ein ideales Umfeld für Familien, die Ruhe und Platz suchen - und gleichzeitig nicht auf städtische Infrastruktur verzichten möchten.
Weitere Informationen
Sonstiges
Besichtigungen sind nur nach vorheriger Anfrage am 23.08.25 möglich.
Nach Ihrer Anfrage erhalten Sie automatisch eine E-Mail mit einer digitalen Erstinformation für Ihren Besichtigungstermin.
Entdecken Sie weitere Immobilien auf unserer Homepage: https://cottbus-immobilienmakler.immo
Sie möchten Ihre Immobilie verkaufen oder vermieten? Kontaktieren Sie mich! Als erfahrener Immobilienmakler biete ich Ihnen professionelle Beratung und finde die beste Lösung für Ihre Bedürfnisse.
Jetzt anfragen & Immobilienwunsch realisieren!
Stichworte
Fahrradraum, Anzahl der Schlafzimmer: 1, Anzahl der Badezimmer: 1, Anzahl Terrassen: 1, Kellerfläche: 10,00 m², 1 Etagen, Distanz zum Kindergarten: 2.00, Distanz zur Grundschule: 1.00, Distanz zur nächsten Einkaufsmöglichkeit: 0.60, Distanz zum Gymnasium: 2.30, Distanz zur Autobahn: 7.60, Distanz zum Bus: 0.35, Distanz vom Zentrum: 2.10, Distanz zur Hauptschule: 0.85