Version: 8.24.0Navigation ĂĽberspringen
239.000 €
2 Zimmer  â€˘  74 m²
Immowelt logo

Wohnung zum Kauf • provisionsfrei
239000 €
3.230 €/m²
2 Zimmer  â€˘  74 m²

Wohnen in Löhne Zentrum

Wir bauen in absolut zentraler Lage von Löhne ein modern gestaltetes Wohnhaus mit 2 Eigentumswohnungen. Jede Wohnung hat einen separaten, eigenen Zugang. Die obere Wohnung ist über eine Außentreppe erreichbar. Die Wohnbereiche sowie die Terrasse bzw. der Balkon befinden sich in Süd-Westlage, so dass die Räume den ganzen Tag lichtdurchflutet sind und so ein angenehmes, helles Wohnklima entsteht.

Die Zweizimmerwohnungen zeichnen sich durch sinnvoll
geschnittene Grundrisse aus, so dass die Räume optimal genutzt werden können.

Die untere Wohnung ist zudem barrierefrei und kann auf Wunsch auch behindertengerecht gestaltet werden.

Die großzügig gestalteten Bäder mit bodengleicher Dusche können individuell, modern (nach Ihren Wünschen) gefliest werden und so zu einer kleinen Wellnessoase werden. Da sämtliche Wohnräume mit bodentiefen Fensterelementen ausgestattet sind, wirken die Räume großzügig und freundlich. Alle Fenster erhalten selbstverständlich elektrische betätigte Rollläden.

Die Schlafzimmer bieten Stellflächen für große Kleiderschränke und zusätzlicher Kommoden.

Die Hauswirtschaftsräume sind für die Aufstellung von Waschmaschine und Trockner vorgesehen und bieten genügend Abstellraum für die vielen kleinen Dinge. Außerdem besitzen diese Räume ein Fenster, so dass jederzeit Tageslicht zur Verfügung steht und eine gute Belüftung gewährleistet ist.

Als Heizung wird eine Luft-Wasser-Wärmepumpe installiert. Die Wohnräume erhalten eine einzelraumgesteuerte Fußbodenheizung.

FĂĽr die Versorgungseinrichtungen wie Heizung, Wasser -und Stromanschluss, Telefon- und Glasfaseranschluss besteht ein separater, gemeinsamer Hausanschlussraum.

Energetisch wird das Gebäude gemäß der Richtlinien nach KfW 55 erstellt.

Stellplätze können für 4.500 Euro erworben werden, falls gewünscht mit Carport 10.500 Euro.

Die Erbpacht beträgt 78 Euro monatlich je Wohnung. Alle weiteren Informationen in einem persönlichen Gespräch.

Wohnung Erdgeschoss 70 qm 249.000 Euro

Wohnung Obergeschoss 74 qm 239.000 Euro

GrundstĂĽck 482 qm

Merkmale

  • Balkon

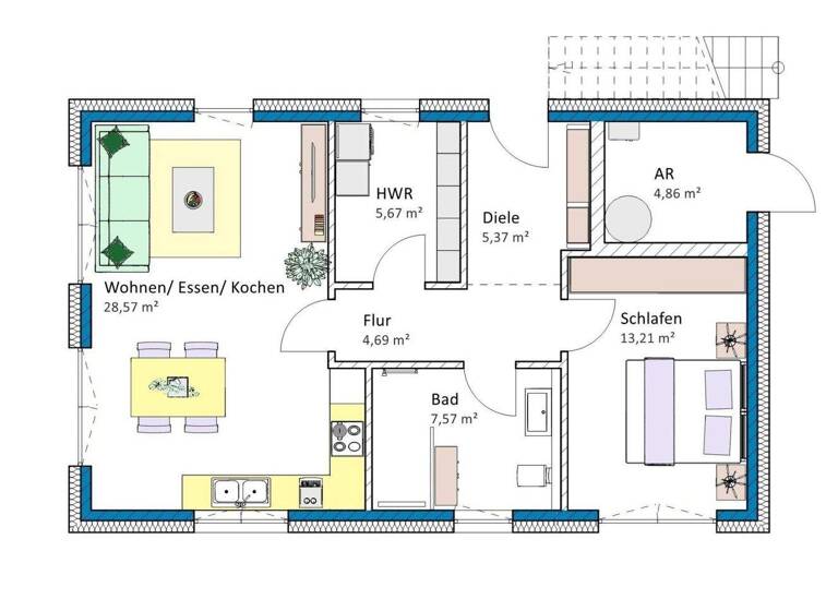
Grundrisse

Grundrisse
1 / 3

Realisiere Dein Projekt

Bausubstanz und Energie

Der Anbieter hat keine Informationen zum Energieverbrauch bereit gestellt.
  • Baujahr2026
  • HaustypKfW 55
  • HeizungsartFuĂźbodenheizung
  • EnergieträgerLuft-/Wasser-Wärmepumpe
Immowelt logo

Preisdetails

Kaufpreis
239000 €
3.229,73 €/m²
Provision für Käufer
provisionsfrei
Geschätzte Gesamtkosten
259.315 €1
Kaufpreis
239.000 €
Notarkosten (1,5%)
3.585 €
Grunderwerbsteuer (6,5%)
15.535 €
Grundbucheintrag (0,5%)
1.195 €
1Der angezeigte Wert ist eine automatisch berechnete Schätzung von immowelt.
2Bei den Angaben handelt es sich um ortsübliche Werte. Individuelle Kosten können abweichen.

Lage

address-icon
Löhne (32584)
Der Anbieter hat die genaue Adresse nicht freigegeben

Weitere Informationen

Stichworte Anzahl Balkone: 1

Weitere Services

Lust auf eine Besichtigung?
Eine Frage zur Immobilie?
Nachricht hinzufĂĽgen
Mit der Nutzung der oben angegebenen Telefonnummer oder durch Klicken auf „Kontaktieren“ akzeptierst Du die Allgemeinen Nutzungsbedingungen, denen Du jederzeit widersprechen kannst. Weitere Informationen zum Datenschutz

Ăśber den Anbieter

Koblenzer Straße 133 a, 32584 Löhne
partner badge
Partnerschaft
Herr Heinz HeidemannDein Kontakt
Online-ID: 2n6l25l
Referenznummer: NB-014
HIB Heidemann Immobilien & Bauen
Bewertung: 5 von 5 Sternen
Nachricht hinzufĂĽgen
Mit der Nutzung der oben angegebenen Telefonnummer oder durch Klicken auf „Kontaktieren“ akzeptierst Du die Allgemeinen Nutzungsbedingungen, denen Du jederzeit widersprechen kannst. Weitere Informationen zum Datenschutz
Wie zufrieden bist du mit dieser Seite (nicht mit der Immobilie selbst)?