Version: 8.24.1Navigation ĂĽberspringen
195.000 €
4 Zimmer  â€˘  160 m²
Immowelt logo

Studio zum Kauf
195000 €
1.219 €/m²
4 Zimmer  â€˘  160 m²

Renovierte Erdgeschosswohnung in Györladamér zu verkaufen!

Das Büro von LIDO HOME GYOR bietet diese ERDGESCHOSSWOHNUNG in GYORLADAMÉR zum Verkauf an!

Die Immobilie befindet sich 15 Minuten vom Stadtzentrum von Gyor entfernt und nur 300 Meter von der Mosoni-Donau entfernt.

Im Dorf gibt es einen Kindergarten, eine Vorschule und eine Schule, Bäckerei, Geschäfte und Restaurants sind in der Nähe.

Auf dem Grundstück befindet sich ein zweistöckiges Einfamilienhaus, eine separate Wohnung, 3 Parkplätze und ein 9 m2 großes Gartenhaus. Der Hof ist zur gemeinsamen Nutzung.

Die zum Verkauf stehende Wohnung befindet sich im Erdgeschoss des Einfamilienhauses.

160 m2 Ziegelgebäude (38 cm Ytong)

20 m2 ĂĽberdachte Terrasse

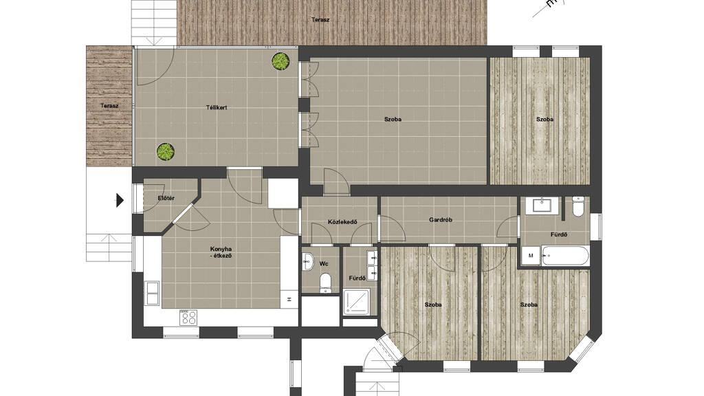
Räume: Küche - Esszimmer, Wintergarten, 4 Schlafzimmer, Ankleidezimmer, Badezimmer mit Dusche, Badezimmer mit Badewanne und WC, separates WC

Heizung: Gas-Zentralheizung mit Radiatoren, Kamin (Holz, Bioethanol)

Fenster: Holzrahmen mit Jalousien und Fliegengittern

Im Jahr 2020 wurde eine Innenrenovierung vorgenommen: Großteil der Leitungen wurde ausgetauscht, neue Bodenbeläge, Einrichtung eines Badezimmers mit Dusche, Umbau der alten Terrasse zu einem Wintergarten

Neue, mit Wellblech bedeckte Terrassen wurden zum Haus hinzugefĂĽgt, die fĂĽr die Platzierung von Solarpaneelen geeignet sind

Die Wohnung ist hell, von allen Seiten beleuchtet, die Räume blicken auf den baumreichen Garten

Ich empfehle auch Investoren: Aus der Wohnung können zwei kleinere Wohnungen gemacht werden, der Wintergarten kann auch als Büro vermietet werden.

Die Wohnung wird derzeit von Mietern bewohnt, mit einem Ein-Jahres-Mietvertrag.

Merkmale

  • EinbaukĂĽche
  • Carport
  • Garten
  • Terrasse
  • teilweise möbliert
  • Badezimmer: Badewanne, Bad mit Dusche, Bad mit Fenster
  • Bodenbelag: Fliesen
  • Fenster: Holz

Realisiere Dein Projekt

Bausubstanz und Energie

Der Anbieter hat keine Informationen zum Energieverbrauch bereit gestellt.
  • Baujahr1999/2020
  • Zustand der Immobilierenoviert / saniert
  • HeizungsartZentralheizung
  • EnergieträgerGas
Immowelt logo

Preisdetails

Kaufpreis
195000 €
1.218,75 €/m²
Provision für Käufer
Bitte beachte, das Angebot beinhaltet bei Vertragsabschluss die Zahlung einer Provision. Weitere Informationen erhältst Du vom Anbieter.

Lage

address-icon
Györladamér (9173)
Fallback location image
Die Karte ist nicht verfĂĽgbar.

Weitere Informationen

Stichworte Versorgung: Städtische Wasserversorgung, Städtische Stromversorgung Sonstiges: frei werdend

Weitere Services

Lust auf eine Besichtigung?
Eine Frage zur Immobilie?
Nachricht hinzufĂĽgen
Mit der Nutzung der oben angegebenen Telefonnummer oder durch Klicken auf „Kontaktieren“ akzeptierst Du die Allgemeinen Nutzungsbedingungen, denen Du jederzeit widersprechen kannst. Weitere Informationen zum Datenschutz

Ăśber den Anbieter

Lido Home Kft
Lido Home KftMaklerbĂĽro
Fö utca 162, 8600 SIÓFOK
partner badge
Partnerschaft
Frau Monika Iszak-Horvath
Frau Monika Iszak-HorvathDein Kontakt
Online-ID: 2dw335d
Referenznummer: 183500138
Lido Home Kft
title
Lido Home Kft
Nachricht hinzufĂĽgen
Mit der Nutzung der oben angegebenen Telefonnummer oder durch Klicken auf „Kontaktieren“ akzeptierst Du die Allgemeinen Nutzungsbedingungen, denen Du jederzeit widersprechen kannst. Weitere Informationen zum Datenschutz
Wie zufrieden bist du mit dieser Seite (nicht mit der Immobilie selbst)?