

Einfamilienhaus zum Kauf799000 €3.400 €/m²7 Zimmer • 235 m² • 1.472 m² Grundstück
799000 €
3.400 €/m²
7 Zimmer • 235 m² • 1.472 m² Grundstück
Attraktives Ein-/ Zweifamilienhaus mit PV- Anlage, Doppelgarage und Bauplatz in bester Ortslage
Merkmale
- Bezug: nach Vereinbarung
- 1.472 m² Grundstück
- Einbauküche
- Kelleranteil
- Terrasse
- Garage, Außen-Stellplatz
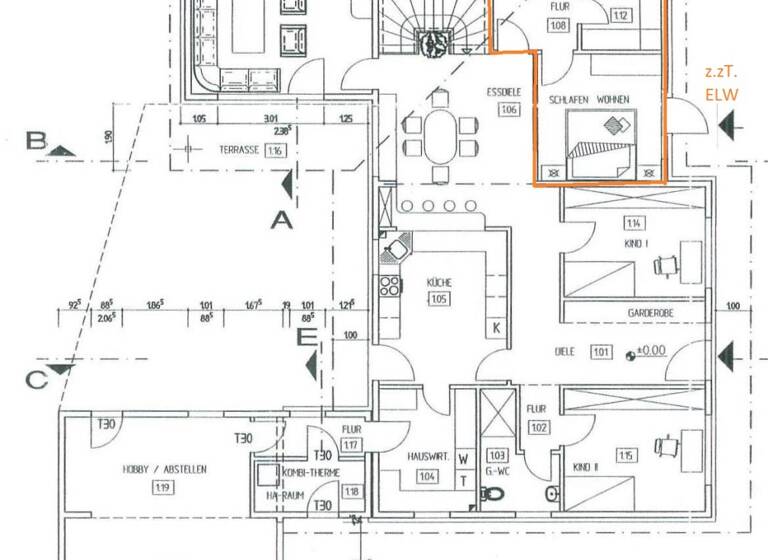
Grundrisse
Grundrisse
1 / 2
Realisiere Dein Projekt
Bausubstanz und Energie
Energieausweis
C
- Baujahr1999
- HeizungsartZentralheizung
- EnergieträgerGas
Preisdetails
Kaufpreis
799000 €
3.400 €/m²
Provision für Käufer
Die zu zahlende Maklerprovision beträgt für den Käufer 2,975 % inkl. der gesetzlichen MwSt. auf den Kaufpreis, verdient und zahlbar bei Vertragsabschluss.
Geschätzte Gesamtkosten
890.725 €1
Kaufpreis
799.000 €
Kaufnebenkosten
91.725 €
2Notarkosten (1,5%)
11.985 €
Grunderwerbsteuer (6,5%)
51.935 €
Provision für Käufer (2,98%)
23.810 €
Grundbucheintrag (0,5%)
3.995 €
1Der angezeigte Wert ist eine automatisch berechnete Schätzung von immowelt.
2Bei den Angaben handelt es sich um ortsübliche Werte. Individuelle Kosten können abweichen.
Lage

Lauenburg/Elbe (21481)
Der Anbieter hat die genaue Adresse nicht freigegeben
Weitere Informationen
Weitere Services
Lust auf eine Besichtigung?
Eine Frage zur Immobilie?
Über den Anbieter
Lauenburger Str. 10, 21493 Schwarzenbek
10 Jahre Partnerschaft
Herr Carsten LiebeltDein Kontakt
Online-ID: 25YV9D3HKN1F
Referenznummer: 1485

Brinkmeier & Liebelt GmbH & Co. KG
Bewertung: 4,6 von 5 Sternen
Wie zufrieden bist du mit dieser Seite (nicht mit der Immobilie selbst)?

