5 Zimmer • 276 m² • 1.091 m² Grundstück • frei ab sofort
Einfamilienhaus zum Kauf • provisionsfrei
587000 €587.000 €
2.127 €/m²
5 Zimmer • 276 m² • 1.091 m² Grundstück • frei ab sofort
Altenstadt-Rodenbach, Architektenhaus ohne Käuferprovision!
Das Architektenhaus wurde großzügig und individuell auf dem weitläufigen Hanggrundstück errichtet und optimal dem Sonnenlauf angepasst. Dem großzügigen Wohnbereich und der offen gestalteten Küche ist ein hausbreiter Balkon, mit Blick über den Ort und die umliegenden Felder vorgelagert. Die gut dimensionierten Schlafräume und das mittig angeordnete, schicke Tageslichtbad bilden einen eigenen Bereich auf diesem Stockwerk. Vom Wohnzimmer führt eine langgezogene Treppe in das, weit über 70 m² große Dachstudio mit Raum für einen weiteren Wohnbereich und / oder einen großzügigen Arbeitsbereich. Das Gartengeschoß ist über einen separaten Eingang individuell begehbar, besteht aus 2 Schlafzimmern, einer Kochnische mit Einbauküche und eine eigene Terrasse. Einer getrennten Vermietung dieser Einheit steht nichts im Wege. Auf dieser Ebene stehen Ihnen ebenso ein weiteres Schlafzimmer als Gästebereich, ein Kellerraum, die Heizung mit Öl-Lager und die Waschküche zur Verfügung. Der Garten ist weitläufig, in verschiedenen Ebenen angelegt und verfügt über eine Teichanlage mit einer weiteren Terrasse. Das Haus wurde 1972 in Massivbauweise errichtet und 2005 vollständig saniert, mit Fußbodenheizung ausgestattet, neue Parkettböden verlegt und mit neuen Fenstern ausgestattet. Es bereitet viel Freude diese Immobilie präsentieren zu dürfen und wir freuen uns auf den Besichtigungstermin mit Ihnen.
Merkmale
Bezug: Nach Vereinbarung
2 Geschosse
1.091 m² Grundstück
Einbauküche
Keller
2 Stellplätze: Carport, Garage
Gäste-WC
Balkon
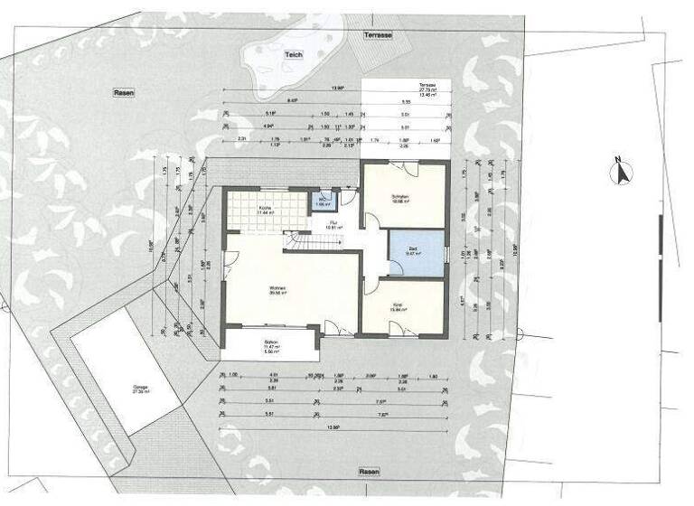
Grundrisse
Grundrisse
1 / 3
Bausubstanz und Energie
Energieausweis
F
Baujahr1972
Zustand der ImmobilieGepflegt
EnergieträgerÖl
Preisdetails
Kaufpreis
587000 €587.000 €
2.126,81 €/m²
Provision für Käufer
provisionsfrei; Keine Käuferprovision!
Geschätzte Gesamtkosten
633.960 €1
Kaufpreis
587.000 €
Kaufnebenkosten
46.960 €
2
Notarkosten (1,5%)
8.805 €
Grunderwerbsteuer (6%)
35.220 €
Grundbucheintrag (0,5%)
2.935 €
1Der angezeigte Wert ist eine automatisch berechnete Schätzung von immowelt.
2Bei den Angaben handelt es sich um ortsübliche Werte. Individuelle Kosten können abweichen.
Lage
Rodenbach, Altenstadt (63674)
Der Anbieter hat die genaue Adresse nicht freigegeben
Altenstadt ist tatsächlich an einer "alten Statt" entstanden, nämlich an der Stelle eines Limeskastells, das die Römer etwa 85 n. Chr. in Sichtweite des Glaubergs errichteten. Heute ist Altenstadt eine aufstrebende Kleinstadt im Nord-Osten der Wetterau mit allen Einkaufsmöglichkeiten, 5 Kindertagesstätten Grundschule und Autobahnanschluss an die A45. Trotz der dynamischen Expansion in den letzten Jahrzehnten hat die Stadt seine historischen Wurzeln als Mittelpunkt eines uralten Kulturraums bewahrt und ist im Kern eine lebens- und liebenswerte "alte Stadt" geblieben. Die zum Verkauf kommenden Immobilie befindet sich im beschaulichen Ortsteil Rodenbach, in wunderschöner Hanglage mit unverbaubarem Blick über den Ort.
Weitere Informationen
Stichworte
Sonstiges/Wohnen: Einliegerwohnung
Sonstiges: Keller als Wohnraum nutzbar