Version: 8.22.4Navigation überspringen
1.700.000 €
4 Zimmer  •  173,9 m²  •  3. Geschoss
Immowelt logo

Penthouse zum Kauf
1700000 €
9.777 €/m²
4 Zimmer  •  173,9 m²  •  3. Geschoss

Stadthaus im Zentrum - Top A.09 Penthouse der Spitzenklasse

Exquisites Penthouse in Lustenau zu verkaufen!

Diese exklusive Wohnanlage im Zentrum von Lustenau wurde von der Revital Immobilien GmbH entwickelt.

WOHNUNG:
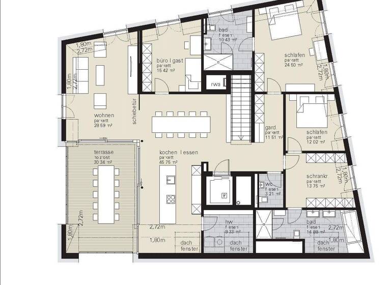
Das noble Penthouse inmitten von Lustenau bietet neben der großzügigen Wohnfläche von ca. 174 m² (mit Dachschrägen ca. 192 m²) und einem wunderbaren Blick über die Dächer viel Komfort:
Durch den direkten Zugang vom Aufzug in die persönlichen Räumlichkeiten bleibt die Privatsphäre gewahrt. Der großzügige Wohn-/Ess-/Kochbereich mit angrenzender Terrasse eröffnet viel Platz für gesellige Abende. Zwei der insgesamt drei Schlafzimmer sind mit eigenem Badezimmer ausgeführt.
Ausgewählte Materialien schaffen eine moderne, edle Atmosphäre. Großformatige Fliesen, eine Duschverglasung in Echtglas sowie die erstklassige Sanitärausstattung runden das Angebot ab. Der Parkettboden in Eiche kann geölt oder lackiert gewählt werden. Die Fenster werden in Holz-Alu mit 3-fach Isolierverglasung ausgeführt.

PROJEKT:
Die Wohnanlage besticht durch ihre Architektur, die hochwertige, moderne Ausstattung sowie Barrierefreiheit. Die beiden Gebäude werden in massiver Bauweise errichtet und sind mit einer Wärmepumpe mit Passivkühling über Erdsonden ausgestattet. Sowohl die Heizung und Warmwasserbereitung als auch die passive Kühlung erfolgen über die Wärmepumpe. Ergänzend wird eine PV-Anlage auf dem Dach angebracht. Auch für E-Mobilität ist gesorgt: Anschlüsse für PKW werden vorbereitet und können bei Bedarf selbst ausgeführt werden. Für Fahrräder stehen Lademöglichkeiten im Abstellraum zur Verfügung. Außerdem bietet der Fahrradraum eine Waschmöglichkeit sowie ein Reparaturset für Fahrräder. Im Eingangsbereich wird ein digitaler Infoscreen angebracht, damit Sie immer auf dem Laufenden sind. Die Paketboxen im Außenbereich des Gebäudes lassen Ihre Online-Bestellungen sicher aufbewahren. Ein Spielplatz mit Liegewiese und Sitzmöglichkeiten wird bei den jüngsten Bewohnern und deren Eltern Anklang finden. Gartenfreunde fühlen sich bestimmt wohl beim Pflegen der insgesamt vier Hochbeete oder genießen den Garten und anschließend einen Feierabendrink in der Gastronomie im Erdgeschoss des Hauses.

Das besondere Plus bietet bei Bedarf das optionale Senior-Package:
Klappsitze und Haltestangen in den Duschen, stufenlose Duschen, Lichtschalter auf 85 cm statt auf
105 cm Höhe, elektrische Türöffner für Wohnungseingangstüre.

LAGE:
Die Jahnstraße in Lustenau befindet sich im Zentrum der Marktgemeinde und bietet die Möglichkeit, fußläufig oder mit dem Fahrrad alle Einrichtungen des täglichen Bedarfs zu erreichen. Zentral und trotzdem ruhig wohnen Sie hier in Bestlage: 2 - 4 Gehminuten zur Post und zum Supermarkt, zur nächsten Bushaltestelle, zur Volksschule Kirchdorf und zum "Blauen Platz". Auch Ärzte und die Apotheke sind zu Fuß rasch erreichbar.

Lassen Sie sich jetzt beraten und informieren Sie sich über diese besondere Wohnanlage, die ab Anfang 2025 errichtet wird. Die Fertigstellung ist für Ende 2026 geplant.

Merkmale

  • 3. Geschoss
  • 2 Stellplätze: 2 Tiefgaragenstellplätze

Grundrisse

Grundrisse
1 / 1

Realisiere Dein Projekt

Bausubstanz und Energie

Heizwärmebedarf (HWB)

B

Gesamtenergieeffizienz (fGEE)

Der Anbieter hat keine Daten zum Energieausweis hinterlegt.
  • Baujahr2025
Immowelt logo

Preisdetails

Kaufpreis
1700000 €
9.776,86 €/m²
Preis pro Stellplatz
26000 €
Provision für Käufer
Bitte beachte, das Angebot kann bei Vertragsabschluss die Zahlung einer Provision beinhalten. Weitere Informationen erhältst Du vom Anbieter.
Weitere Preisinformationen
2 Tiefgaragenstellplätze, Kaufpreis je: 26.000,00 EUR

Lage

address-icon
Lustenau (6890)
Der Anbieter hat die genaue Adresse nicht freigegeben

Weitere Informationen

Sonstiges Haben wir Ihr Interesse geweckt?
Dann vereinbaren Sie doch einfach einen Termin mit uns - eine Besichtigung lohnt sich.

Das Realbüro Hagen-Team garantiert professionelle Beratung und völlige Unabhängigkeit.

Durch unsere ausgeprägte Kompetenz und langjährige Erfahrung versichern wir Ihnen eine problemlose und sorgenfreie Abwicklung bis zur Schlüsselübergabe und darüber hinaus.

Ihr Ansprechpartner:
Bernd Hagen (Tel. 05577/83 111) oder
office@realbuerohagen.at

Sonstige Auslagen:
3,5% Grunderwerbsteuer
1,1% Grundbucheintragungsgebühr
1,2 % Vertragserrichtungskosten zzgl. USt. und Barauslagen
Keine Maklerprovision

Bildmaterial: Änderungen und Irrtümer vorbehalten Stichworte Balkon-Terrassen-Fläche: 28,04 m², Bundesland: Vorarlberg

Weitere Services

Lust auf eine Besichtigung?
Eine Frage zur Immobilie?
Nachricht hinzufügen
Mit der Nutzung der oben angegebenen Telefonnummer oder durch Klicken auf „Kontaktieren“ akzeptierst Du die Allgemeinen Nutzungsbedingungen, denen Du jederzeit widersprechen kannst. Weitere Informationen zum Datenschutz

Über den Anbieter

Realbüro Hagen
Realbüro HagenMaklerbüro
Maria Theresien Str. 20, 6890 LUSTENAU
partner badge
10 Jahre Partnerschaft
Herr Bernd Hagen
Herr Bernd HagenDein Kontakt
Online-ID: 2lyh45f
Referenznummer: 5296_9
Realbüro Hagen
title
Realbüro Hagen
Bewertung: 4,6 von 5 Sternen
Nachricht hinzufügen
Mit der Nutzung der oben angegebenen Telefonnummer oder durch Klicken auf „Kontaktieren“ akzeptierst Du die Allgemeinen Nutzungsbedingungen, denen Du jederzeit widersprechen kannst. Weitere Informationen zum Datenschutz
Wie zufrieden bist du mit dieser Seite (nicht mit der Immobilie selbst)?