Dieses großzügige Grundstück im Pronstorfer Ortsteil Wulfsfelde umfasst insgesamt 5.017 m² und bietet vielfältige Entwicklungsmöglichkeiten für private Bauherren oder Projektentwickler.
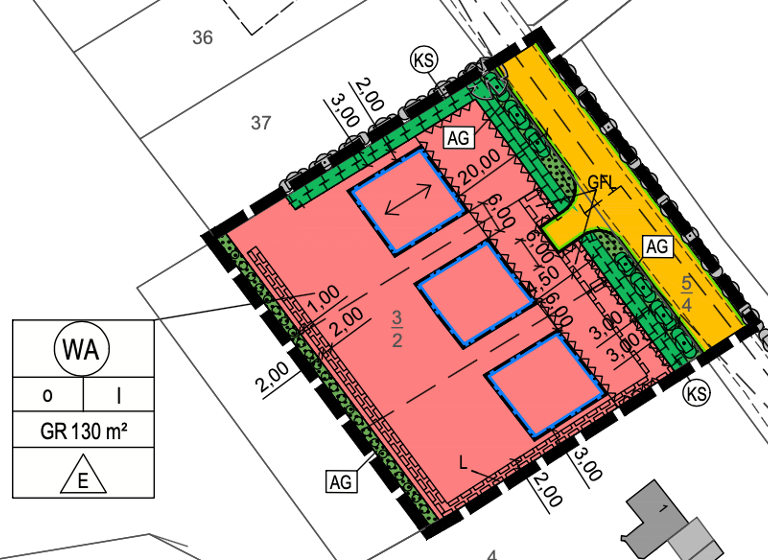
Von der Gesamtfläche entfallen ca. 3.517 m² auf bebaubares Land, das gemäß der bevorstehenden 1. Änderung des Bebauungsplan Nr. 5 der Gemeinde Pronstorf bebaubar ist. Die bebaubare Fläche kann in drei separate Baugrundstücke aufgeteilt werden - ideal, um jeweils ein freistehendes Einfamilienhaus in ruhiger, naturnaher Lage zu errichten. Diese flexible Nutzung eröffnet attraktive Optionen sowohl für individuelle Wohnprojekte als auch für kleine Bauvorhaben im Familien- oder Investorenkreis.
Weitere ca. 1.500 m² Grundstücksfläche sind als Grünland ausgewiesen und nicht bebaubar. Dieser Bereich schafft zusätzlichen Freiraum und trägt zum großzügigen, naturnahen Gesamtcharakter des Grundstücks bei.
Das Grundstück ist derzeit noch nicht erschlossen, sodass künftige Eigentümer die Ausgestaltung der Versorgungseinrichtungen nach eigenen Vorstellungen planen können.
Mit seiner Kombination aus bebaubaren Flächen, Grünanteil und idyllischer Lage ist dieses Grundstück eine seltene Gelegenheit in einer der schönsten ländlichen Regionen des Umlands.
Merkmale
Bezug: sofort
5.017 m² Grundstück
unerschlossen
Grundrisse
Grundrisse
1 / 1
Preisdetails
Kaufpreis
370000 €370.000 €
73,75 €/m²
Provision für Käufer
6,25 % Käuferprovision: 6,25 % inkl. gesetzlicher Mwst. Die Provision ist verdient und fällig mit notarieller Beurkundung!
Geschätzte Gesamtkosten
393.125 €1
Kaufpreis
370.000 €
Kaufnebenkosten
23.125 €
2
Provision für Käufer (6,25%)
23.125 €
1Der angezeigte Wert ist eine automatisch berechnete Schätzung von immowelt.
2Bei den Angaben handelt es sich um ortsübliche Werte. Individuelle Kosten können abweichen.
Lage
Wulfsfelde, Pronstorf (23820)
Der Anbieter hat die genaue Adresse nicht freigegeben
Das Baugrundstück liegt im idyllischen Pronstorfer Ortsteil Wulfsfelde, einer von Natur und Ruhe geprägten Umgebung. Besonders hervorzuheben ist der weite, rückwärtige Ausblick über das sanft hügelige Landschaftspanorama, der dem Grundstück eine einzigartige Atmosphäre verleiht und ideal für alle ist, die naturnah wohnen möchten.
Trotz der ruhigen Lage überzeugt Wulfsfelde durch seine gute Anbindung. Bad Segeberg ist in kurzer Fahrzeit erreichbar, Lübeck liegt nur wenig weiter entfernt und bietet ein breites Angebot an Kultur, Einkaufsmöglichkeiten und Gastronomie. Auch die Ostsee ist bequem erreichbar und eröffnet zahlreiche Freizeit- und Erholungsmöglichkeiten.
Die Infrastruktur in der Umgebung ist gut ausgebaut: In den benachbarten Orten sowie im nahegelegenen Bad Segeberg stehen Einkaufsmöglichkeiten für den täglichen Bedarf zur Verfügung. Kindergärten und Schulen befinden sich im nahen Umfeld und sind sowohl mit dem Auto als auch teilweise mit öffentlichen Verkehrsmitteln gut erreichbar. Ergänzend bietet die Region eine umfassende medizinische Versorgung sowie vielfältige Freizeit- und Bildungsangebote.
Wulfsfelde verbindet damit das Beste aus zwei Welten - ländliche Idylle und gute Erreichbarkeit attraktiver Städte und beliebter Ausflugsziele.
Weitere Informationen
Sonstiges
Angaben aus dem B-Plan Nr. 5 der Gemeinde Pronstorf:
- allgemeines Wohngebiet - Anzahl der Vollgeschosse als Höchstmaß: I - offene Bauweise - nur Einzelhäuser zulässig - maximal zwei Wohnungen pro Gebäude zulässig - Grundfläche: 130 m² - es sind 2 Stellplätze pro Wohnung zu errichten
Die entsprechenden Planungsunterlagen stellen wir Ihnen gern auf Nachfrage zur Verfügung.
Stichworte
Bundesland: Schleswig-Holstein