Version: 8.23.0Navigation ĂĽberspringen
790.000 €
31 Zimmer  â€˘  847 m²  â€˘  4.150 m² GrundstĂĽck
Immowelt logo

Mehrfamilienhaus zum Kauf • als Kapitalanlage geeignet
790000 €
1.003 €/m²
31 Zimmer  â€˘  847 m²  â€˘  4.150 m² GrundstĂĽck

Wohnanlage bei Verden – 9 Einheiten, 4.150 m² Grundstück, viel Potenzial

Diese großzügige Wohnanlage mit rund 847 m² Wohnfläche verteilt sich auf drei Gebäude mit aktuell neun Wohneinheiten, die größtenteils vermietet sind und eine attraktive Jahresnettokaltmiete von insgesamt 44.520 € erzielen. Gepflegter Zustand, flexible Nutzungsmöglichkeiten und weiteres Entwicklungspotenzial machen das Ensemble zu einer seltenen Gelegenheit für Kapitalanleger oder generationenübergreifendes Wohnen.

Merkmale

  • frei ab sofort
  • vermietet
  • 4.150 m² GrundstĂĽck
  • Kelleranteil
  • 2 Garagen
  • Gäste-WC
  • Kein Balkon
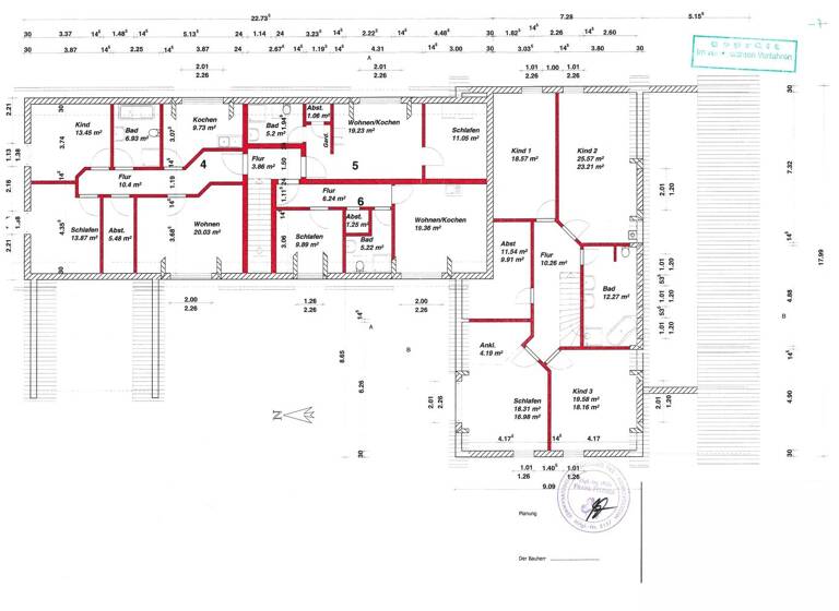
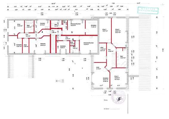
Vorderhaus (Baujahr 1955) Ca. 245 m² Wohnfläche, aufgeteilt in drei vermietete Einheiten: – EG: 7 Zimmer, ca. 140 m², teilunterkellert – 1. OG: 4 Zimmer, ca. 70 m² – 1. OG: 3 Zimmer, ca. 35 m² Jahresnettokaltmiete: ca. 12.480 €. Anbau (Umbau 1993 / 2007) Ca. 157 m² im Untergeschoss mit zwei 4-Zimmer-Wohnungen (75 m² / 82 m², je Terrasse). Im Obergeschoss drei Einheiten: 4 Zimmer (79 m², Balkon) sowie zwei 2-Zimmer-Wohnungen à 35 m². Jahresnettokaltmiete: ca. 20.640 €. Hinterhaus (Umbau 2010) Ca. 295 m² Wohnfläche, 9 Zimmer, eine Wohneinheit über zwei Etagen. Jahresnettokaltmiete: ca. 11.400 €. Zusätzliches Potenzial – Lagerhalle (Baujahr 1960) mit ca. 154 m², teilunterkellert, mit Hackgut-Pellets-Zentralheizung; Nutzung als Lager- oder Garagenfläche möglich. – Weiteres Nebengebäude mit zwei Garagen (ca. 77 m² Nutzfläche), derzeit unvermietet. – Große Gartenflächen vor und hinter den Gebäuden, zusätzliche PKW-Stellplätze vorhanden. Modernisierungen & Zustand –Holzhachschnitzel-Zentralheizung (2010) – Laufende Instandhaltung, Reparaturen stets zeitnah ausgeführt

Grundrisse

Grundrisse
1 / 4

Realisiere Dein Projekt

Bausubstanz und Energie

Energieausweis

Der Anbieter hat keine Daten zum Energieausweis hinterlegt.
  • Baujahr1955
  • Letzte Modernisierung2010
  • Haustypk.A.
  • HeizungsartZentralheizung
  • EnergieträgerPellets, fossile Brennstoffe
Immowelt logo

Preisdetails

Kaufpreis
790000 €
1.003 €/m²
Provision für Käufer
Die Käufercourtage (Vertrag zugunsten Dritter, § 328 BGB) in Höhe von 5% zzgl. 19% Mwst. auf den Kaufpreis ist bei notariellem Vertragsabschluss verdient und fällig.
Geschätzte Gesamtkosten
873.503 €1
Kaufpreis
790.000 €
Notarkosten (1,5%)
11.850 €
Grunderwerbsteuer (5%)
39.500 €
Provision für Käufer (3,57%)
28.203 €
Grundbucheintrag (0,5%)
3.950 €
1Der angezeigte Wert ist eine automatisch berechnete Schätzung von immowelt.
2Bei den Angaben handelt es sich um ortsübliche Werte. Individuelle Kosten können abweichen.

Lage

address-icon
Bendingbostel, Kirchlinteln (27308)
Der Anbieter hat die genaue Adresse nicht freigegeben

Weitere Informationen

Diese Wohnanlage befindet sich im ruhigen und gepflegten Ortsteil Bendingbostel, einem Teil der niedersächsischen Gemeinde Kirchlinteln im Landkreis Verden. Die Lage besticht durch ihren naturnahen Charakter, geprägt von ausgedehnten Grünflächen, Wäldern und einer charmanten Dorfstruktur mit gewachsener Nachbarschaft. Bendingbostel liegt nur wenige Kilometer von Verden (Aller) entfernt – dort finden sich sämtliche Einkaufsmöglichkeiten, Ärzte, Schulen sowie ein Bahnanschluss Richtung Bremen und Hannover. Auch die Autobahn A27 ist gut erreichbar, sodass die Städte Bremen (ca. 40 km) und Hannover (ca. 80 km) bequem erreichbar sind. Trotz der ruhigen Lage überzeugt die Umgebung mit guter Anbindung und solider Infrastruktur: Ein aktives Vereinsleben, Busverbindungen, Einkaufsmöglichkeiten im näheren Umfeld und ein hoher Freizeitwert machen die Region besonders lebenswert. Das direkte Wohnumfeld ist geprägt von gepflegten Ein- und Mehrfamilienhäusern in verkehrsberuhigter Lage ohne Durchgangsverkehr. Die Immobilie eignet sich daher ideal für Kapitalanleger, Generationenwohnen oder auch zur langfristigen Eigennutzung.

Weitere Services

Lust auf eine Besichtigung?
Eine Frage zur Immobilie?
Nachricht hinzufĂĽgen
Mit der Nutzung der oben angegebenen Telefonnummer oder durch Klicken auf „Kontaktieren“ akzeptierst Du die Allgemeinen Nutzungsbedingungen, denen Du jederzeit widersprechen kannst. Weitere Informationen zum Datenschutz

Ăśber den Anbieter

WAGNER Immobilien
WAGNER ImmobilienMaklerbĂĽro
Schwachhauser Heerstr. 196, 28213 Bremen
partner badge
Partnerschaft
Klaus WagnerDein Kontakt
Online-ID: 2ma6859
Referenznummer: 1020
WAGNER Immobilien
WAGNER Immobilien
Nachricht hinzufĂĽgen
Mit der Nutzung der oben angegebenen Telefonnummer oder durch Klicken auf „Kontaktieren“ akzeptierst Du die Allgemeinen Nutzungsbedingungen, denen Du jederzeit widersprechen kannst. Weitere Informationen zum Datenschutz
Wie zufrieden bist du mit dieser Seite (nicht mit der Immobilie selbst)?