Die Weinberg Residenz - Unverbaubare Aussicht in Toplage am Sonnberg NEWS: Baustart 2026 KW 15! VERKAUFTE EINHEITEN: Top 1, 2, 3, 8 & 9 VERFÜGBARE EINHEITEN: Top 4, 5, 6 & 7
Dieses exklusive Anwesen entsteht in absoluter Toplage am Kirchberger Sonnberg. Am Ende einer Sackgasse gelegen, bietet das Projekt neben höchster Privatsphäre einen sensationellen und unverbaubaren Panorama-Ausblick, den ganzen Tag Sonne sowie eine traumhafte Ruhelage am Waldrand.
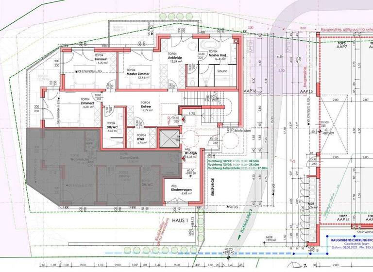
Insgesamt entstehen in den zwei Baukörpern 9 hochwertige Wohnungen. In dem vorderen Haus sind 5 Wohnungen situiert. Ein Penthouse über die gesamte oberste Etage und jeweils zwei Wohnungen im 1. Obergeschoss und im Erdgeschoss.
Im hinteren Haus befinden sich 4 Wohnungen. Über die gesamte oberste Etage erstreckt sich das Luxus-Penthouse. Über die gesamte darunter liegende Etage (1. Obergeschoss) eine weitere großzügige Wohnung und in der untersten Etage zwei Wohnungen.
Das Bauvorhaben wird dem neuesten Standard entsprechend und mit hochwertigsten Materialien errichtet. In den beiden Penthäusern werden Sichtdachstühle aus Altholz verbaut. Auch in den übrigen Wohnungen werden zahlreiche Altholz-Wandvertäfelungen angebracht. Modernste Technik sowie hochwertige Einrichtung und Ausstattung sprechen für das Objekt.
Ein bereits fertiggestelltes Bauvorhaben des Bauträgers kann als Referenz besichtigt werden. Bei frühzeitiger Kaufentscheidung kann man durchaus noch bei der Raumaufteilung sowie bei den Materialien und der Ausstattung mitsprechen. Alles in allem ein traumhaftes und exklusives Projekt in einer der besten Lagen von Kirchberg. Voraussichtliche Fertigstellung Mitte 2027. Energiedaten in Arbeit.
Merkmale
Bezug: 2027
Erdgeschoss
Einbauküche
Personenaufzug
4 Stellplätze: 4 Tiefgaragenstellplätze
Balkon
Terrasse
Grundrisse
Grundrisse
1 / 1
Bausubstanz und Energie
Möchtest du Details zum Energieverbrauch?
Baujahr2026
Zustand der ImmobilieErstbezug
HeizungsartFußbodenheizung
EnergieträgerLuft-/Wasser-Wärmepumpe
Preisdetails
Kaufpreis
4840000 €4.840.000 €
19.426,05 €/m²
Provision für Käufer
3,0 %
Weitere Preisinformationen
4 Tiefgaragenstellplätze
Lage
Kirchberg in Tirol (6365)
Der Anbieter hat die genaue Adresse nicht freigegeben