

Wohnung zum Kauf - Erstbezug498000 €4.698 €/m²4 Zimmer • 106 m²
498000 €
4.698 €/m²
4 Zimmer • 106 m²
Gute Förderungsprogramme! 4-Zimmer-ETW im Erdgeschoss mit Garten Der nächste NEUBAU in Lindenberg in der Hansenweiherstraße
Merkmale
- Personenaufzug
- Tiefgarage
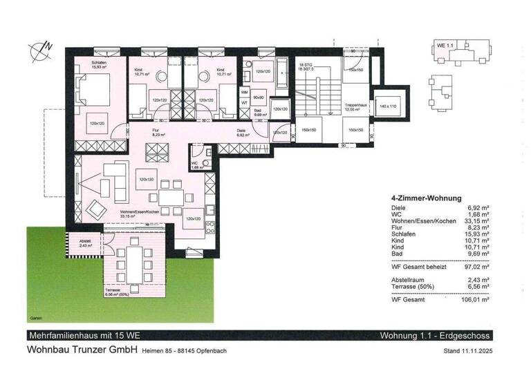
Grundrisse
Grundrisse
1 / 12
Realisiere Dein Projekt
Bausubstanz und Energie
Der Anbieter hat keine Informationen zum Energieverbrauch bereit gestellt.
- Baujahr2026
- Zustand der ImmobilieErstbezug
- HeizungsartFuĂźbodenheizung
Preisdetails
Kaufpreis
498000 €
4.697,67 €/m²
Preis pro Stellplatz
31000 €
Provision für Käufer
2,00% Maklerprovision zzgl. gesetzlicher Mehrwertsteuer vom Kaufpreis
Weitere Preisinformationen
1 Tiefgaragenstellplatz, Kaufpreis: 31.000,00 EUR
Geschätzte Gesamtkosten
535.350 €1
Kaufpreis
498.000 €
Kaufnebenkosten
37.350 €
2Notarkosten (1,5%)
7.470 €
Grunderwerbsteuer (3,5%)
17.430 €
Provision für Käufer (2%)
9.960 €
Grundbucheintrag (0,5%)
2.490 €
1Der angezeigte Wert ist eine automatisch berechnete Schätzung von immowelt.
2Bei den Angaben handelt es sich um ortsübliche Werte. Individuelle Kosten können abweichen.
Lage

Lindenberg (88161)
Der Anbieter hat die genaue Adresse nicht freigegeben
Weitere Informationen
Weitere Services
Lust auf eine Besichtigung?
Eine Frage zur Immobilie?
Ăśber den Anbieter
Hauptstr. 53, 88161 Lindenberg im Allgäu
Partnerschaft
Herr Erich OhmayerDein Kontakt
Online-ID: 2ncnk5m
Referenznummer: 2025-390_1

Immobilien- und Beteiligungsgesellschaft der Volksbank Lindenberg mbH
Bewertung: 3,2 von 5 Sternen
Wie zufrieden bist du mit dieser Seite (nicht mit der Immobilie selbst)?

